Description
Cette magnifique maison à deux étages de style résolument urbain se distingue par sa fenestration abondante, la richesse de ses matériaux extérieurs, des pièces de vie avec des plafonds de 14 pieds de hauteur, ainsi qu’un solarium à l'arrière accessible par la salle à manger et la cuisine. Le garage intégré de 276 pieds carrés peut loger une voiture.
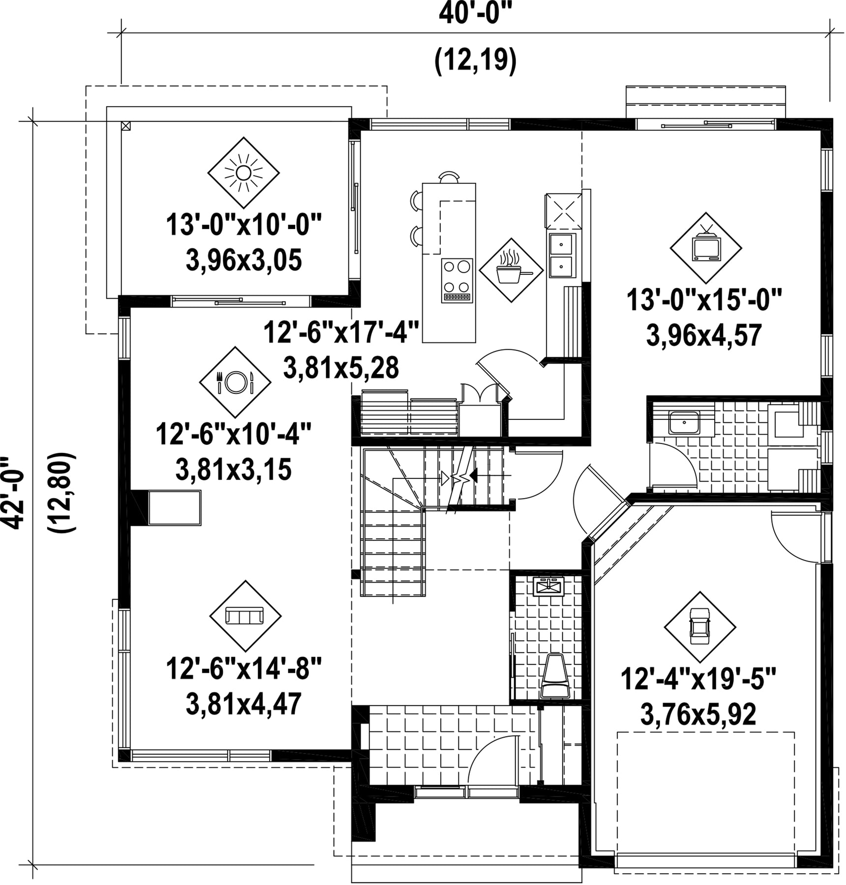
Le rez-de-chaussée à aire ouverte fait 1 152 pieds carrés et comprend une salle d’eau, une grande salle de lavage, un salon et une salle à manger divisés par un foyer au gaz, une salle familiale située à côté de la cuisine avec un accès vers l’extérieur, ainsi qu’une vaste cuisine avec un îlot prêt à recevoir une plaque de cuisson et pouvant accueillir trois personnes, un grand garde-manger permettant de maximiser l’espace de rangement.
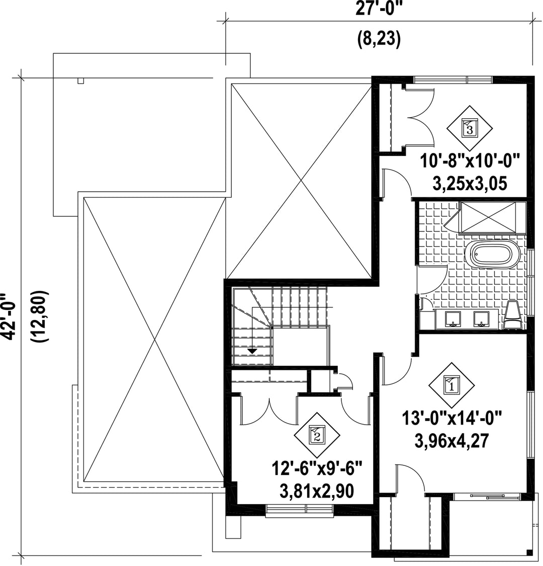
L’étage de 820 pieds carrés comprend une salle de bains avec meuble à deux lavabos et une baignoire autoportante située à côté d’une grande douche vitrée, ainsi que trois chambres, dont la chambre principale qui possède une grande penderie et donne sur un petit balcon privé accessible par une porte-fenêtre.
Le rez-de-chaussée à aire ouverte fait 1 152 pieds carrés et comprend une salle d’eau, une grande salle de lavage, un salon et une salle à manger divisés par un foyer au gaz, une salle familiale située à côté de la cuisine avec un accès vers l’extérieur, ainsi qu’une vaste cuisine avec un îlot prêt à recevoir une plaque de cuisson et pouvant accueillir trois personnes, un grand garde-manger permettant de maximiser l’espace de rangement.
L’étage de 820 pieds carrés comprend une salle de bains avec meuble à deux lavabos et une baignoire autoportante située à côté d’une grande douche vitrée, ainsi que trois chambres, dont la chambre principale qui possède une grande penderie et donne sur un petit balcon privé accessible par une porte-fenêtre.
Caractéristiques
Mesures : Impérial| Style d'architecture | Urbain |
Coût de construction
Montant approximatif équivalent à celui d'un entrepreneur général (région de la Rive-Sud de Montréal) pour une construction clé en main sans terrain ni infrastructures.
|
516191 $ |
|---|---|---|---|
| Façade | 40 pi | Surface habitable totale | 1972 pi² |
| Profondeur | 42 pi | Nombre de salles de bain | 1 |
| Hauteur | 25 pi 6 po | Nombre de chambres | 3 |
| Chambre des maîtres | Penderie | Chambre des maîtres - commentaires | Chambre des maîtres avec penderie walk-in et balcon privé accessible par une porte patio. Salle de bain avec comptoir accueuillant 2 lavabos, une baignoire autoportante placée à l'avant d'une grande douche vitrée. |
| Surface rez-de-chaussée | 1152 pi² | Finition extérieure | Agrégats + Bois + Brique + Pierre |
| Surface étage | 820 pi² | Type de cuisine | Forme en L + Îlot |
| Surface garage | 276 pi² | Garage | 1 |
| Mur garage | 8 pi | Mur rez-de-chaussée | 9 + 10 pi |
| Mur étage | 8 pi | Inclinaison toit avant/arrière | NA |
| Inclinaison toit gauche/droite | NA |
| Style d'architecture | Urbain |
|---|---|
|
Coût de construction
Montant approximatif équivalent à celui d'un entrepreneur général (région de la Rive-Sud de Montréal) pour une construction clé en main sans terrain ni infrastructures.
|
516191 $ |
| Façade | 40 pi |
| Surface habitable totale | 1972 pi² |
| Profondeur | 42 pi |
| Nombre de salles de bain | 1 |
| Hauteur | 25 pi 6 po |
| Nombre de chambres | 3 |
| Chambre des maîtres | Penderie |
| Chambre des maîtres - commentaires | Chambre des maîtres avec penderie walk-in et balcon privé accessible par une porte patio. Salle de bain avec comptoir accueuillant 2 lavabos, une baignoire autoportante placée à l'avant d'une grande douche vitrée. |
| Surface rez-de-chaussée | 1152 pi² |
| Finition extérieure | Agrégats + Bois + Brique + Pierre |
| Surface étage | 820 pi² |
| Type de cuisine | Forme en L + Îlot |
| Surface garage | 276 pi² |
| Garage | 1 |
| Mur garage | 8 pi |
| Mur rez-de-chaussée | 9 + 10 pi |
| Mur étage | 8 pi |
| Inclinaison toit avant/arrière | NA |
| Inclinaison toit gauche/droite | NA |