Description
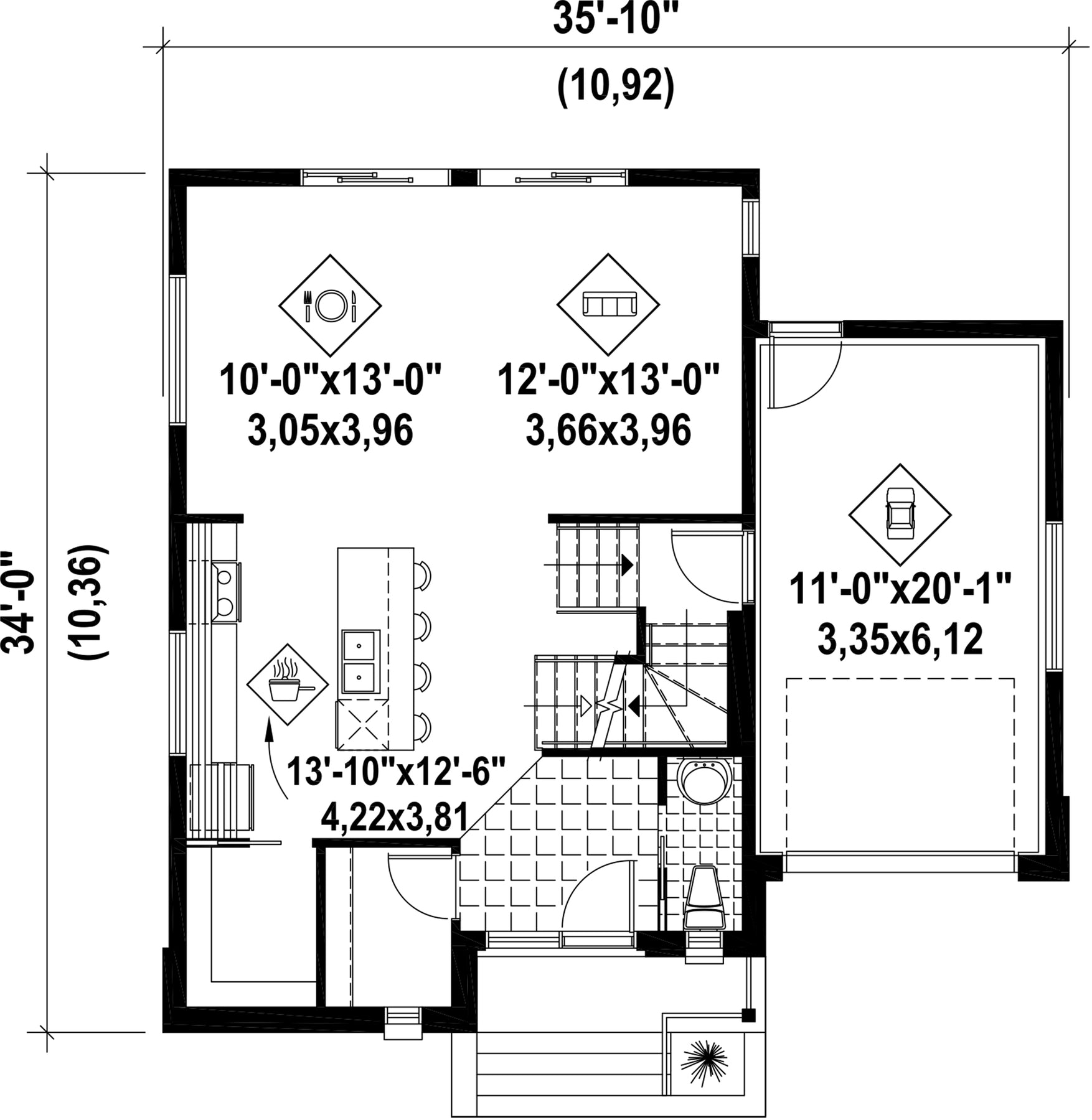
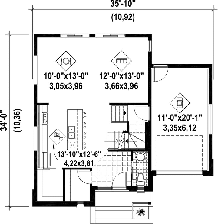
De style urbain, cette imposante maison à deux étages mesure 35 pieds 10 pouces de largeur sur 34 pieds de profondeur. Elle offre une surface habitable de 1 724 pieds carrés et est reliée à un garage simple de 265 pieds carrés qui comprend une fenêtre installée dans le mur latéral.
Le rez-de-chaussée à aire ouverte occupe une surface de 752 pieds carrés et les plafonds sont à neuf pieds de hauteur. Il comporte une entrée avec une grande penderie, une salle d’eau, une cuisine de type laboratoire avec un grand îlot pouvant servir de comptoir repas pour quatre personnes et un vaste garde-manger, un salon et une salle à manger avec portes-fenêtres donnant sur la cour arrière. La cuisine dispose d’une fenêtre en bande horizontale sous les armoires.
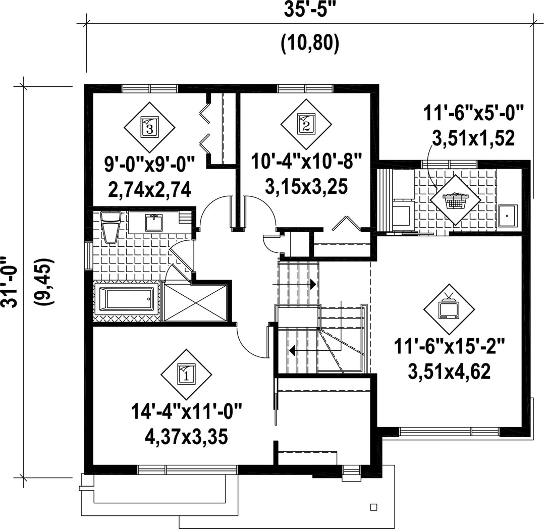
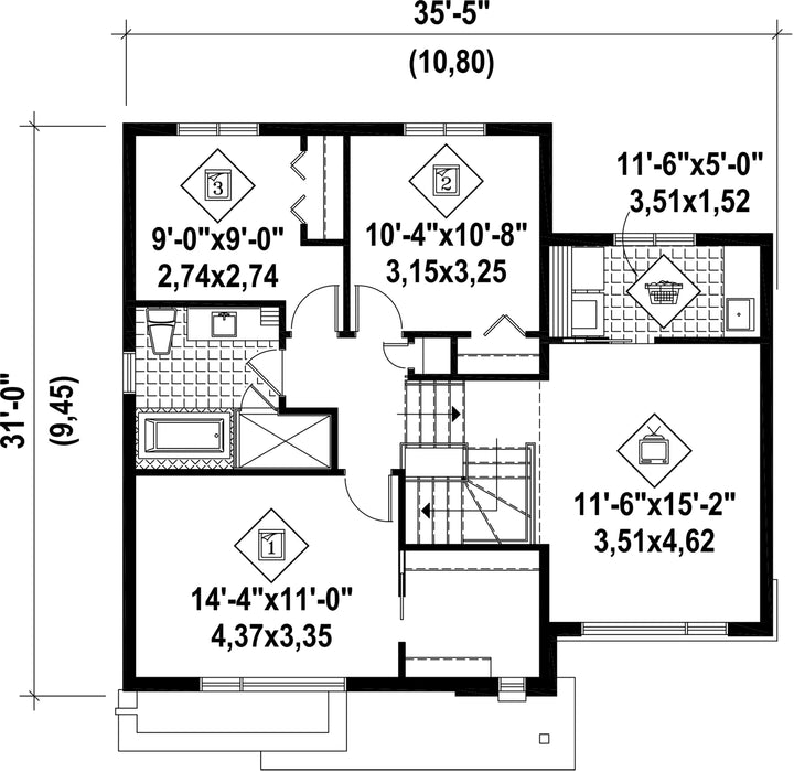
L’étage offre une surface de 972 pieds carrés et comprend une salle familiale et une salle de lavage situées au-dessus du garage, une salle de bains avec baignoire et une douche séparée, ainsi que trois chambres, dont la chambre principale aménagée avec une grande penderie.
Le rez-de-chaussée à aire ouverte occupe une surface de 752 pieds carrés et les plafonds sont à neuf pieds de hauteur. Il comporte une entrée avec une grande penderie, une salle d’eau, une cuisine de type laboratoire avec un grand îlot pouvant servir de comptoir repas pour quatre personnes et un vaste garde-manger, un salon et une salle à manger avec portes-fenêtres donnant sur la cour arrière. La cuisine dispose d’une fenêtre en bande horizontale sous les armoires.
L’étage offre une surface de 972 pieds carrés et comprend une salle familiale et une salle de lavage situées au-dessus du garage, une salle de bains avec baignoire et une douche séparée, ainsi que trois chambres, dont la chambre principale aménagée avec une grande penderie.
Caractéristiques
Mesures : Impérial| Style d'architecture | Urbain |
Coût de construction
Montant approximatif équivalent à celui d'un entrepreneur général (région de la Rive-Sud de Montréal) pour une construction clé en main sans terrain ni infrastructures.
|
395272 $ |
|---|---|---|---|
| Façade | 35 pi 10 po | Surface habitable totale | 1724 pi² |
| Profondeur | 34 pi | Nombre de salles de bain | 1 |
| Hauteur | 25 pi | Nombre de chambres | 3 |
| Chambre des maîtres | Penderie | Chambre des maîtres - commentaires | Chambre des maîtres avec penderie walk-in. Salle de bain avec bain et douche séparés. Salle familiale et de lavage occupe l'espace au-dessus du garage. |
| Surface rez-de-chaussée | 752 pi² | Finition extérieure | Bois + Brique + Pierre |
| Surface étage | 972 pi² | Type de cuisine | Laboratoire + Îlot |
| Surface garage | 265 pi² | Garage | 1 |
| Mur garage | 8 pi | Mur rez-de-chaussée | 9 pi |
| Mur étage | 8 pi | Inclinaison toit avant/arrière | NA |
| Inclinaison toit gauche/droite | NA |
| Style d'architecture | Urbain |
|---|---|
|
Coût de construction
Montant approximatif équivalent à celui d'un entrepreneur général (région de la Rive-Sud de Montréal) pour une construction clé en main sans terrain ni infrastructures.
|
395272 $ |
| Façade | 35 pi 10 po |
| Surface habitable totale | 1724 pi² |
| Profondeur | 34 pi |
| Nombre de salles de bain | 1 |
| Hauteur | 25 pi |
| Nombre de chambres | 3 |
| Chambre des maîtres | Penderie |
| Chambre des maîtres - commentaires | Chambre des maîtres avec penderie walk-in. Salle de bain avec bain et douche séparés. Salle familiale et de lavage occupe l'espace au-dessus du garage. |
| Surface rez-de-chaussée | 752 pi² |
| Finition extérieure | Bois + Brique + Pierre |
| Surface étage | 972 pi² |
| Type de cuisine | Laboratoire + Îlot |
| Surface garage | 265 pi² |
| Garage | 1 |
| Mur garage | 8 pi |
| Mur rez-de-chaussée | 9 pi |
| Mur étage | 8 pi |
| Inclinaison toit avant/arrière | NA |
| Inclinaison toit gauche/droite | NA |