Description
Cette maison à étage au look contemporain offre une surface habitable de 2 145 pieds carrés et mesure 52 pieds 10 pouces de largeur sur 44 pieds de profondeur. Elle possède un garage double de 613 pieds carrés.
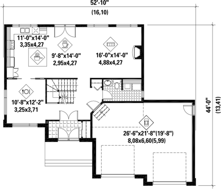
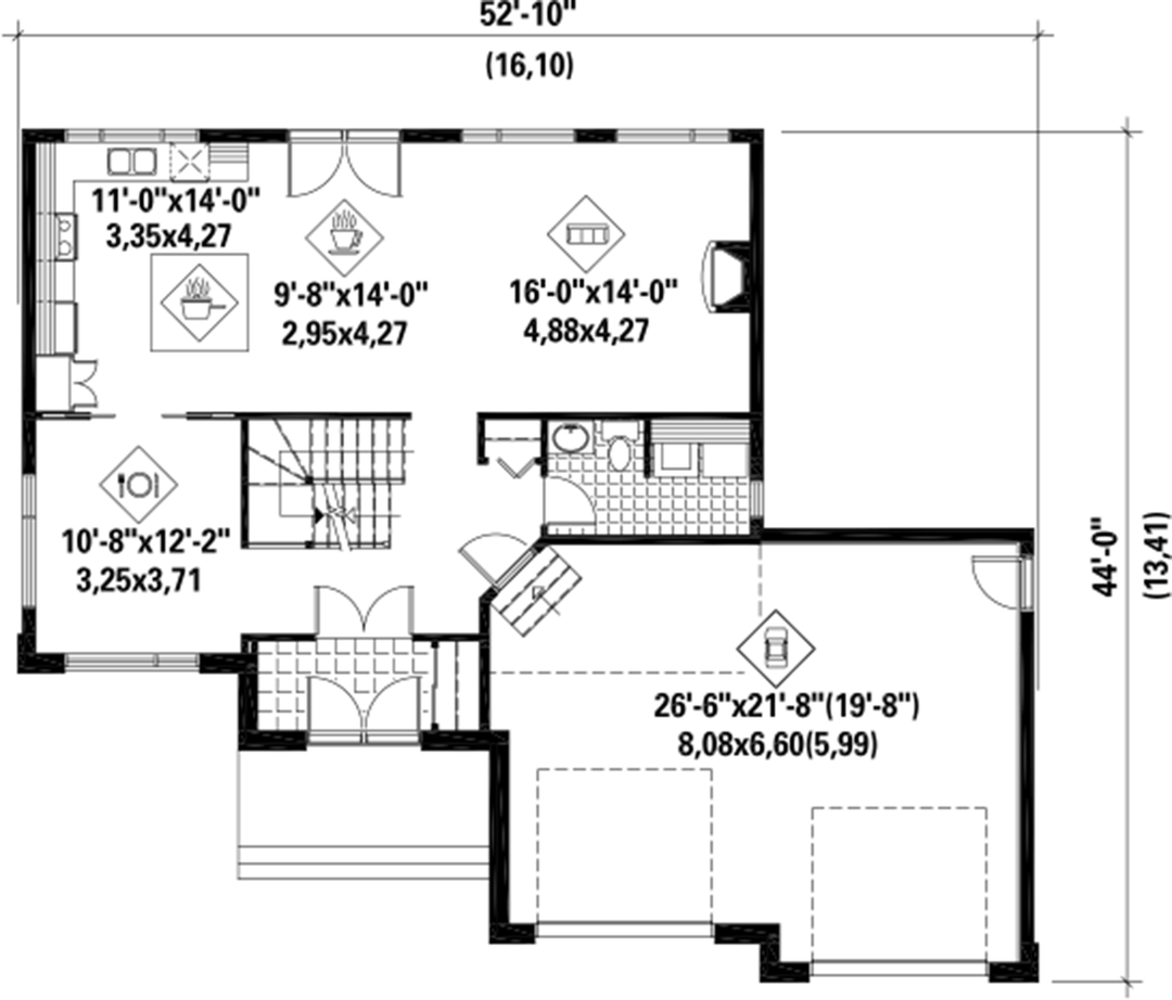
Le rez-de-chaussée fait 1 028 pieds carrés et comprend un vestibule fermé, une salle d'eau avec espace pour la laveuse et la sécheuse, une salle à manger, ainsi qu’une aire ouverte à l’arrière de la maison qui comprend un salon donnant sur la cour arrière avec un foyer au gaz, une dinette et une cuisine avec îlot.
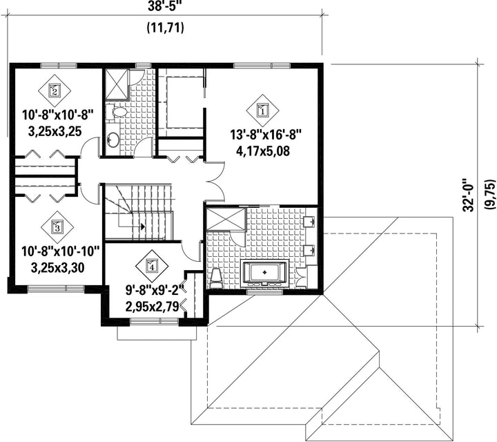
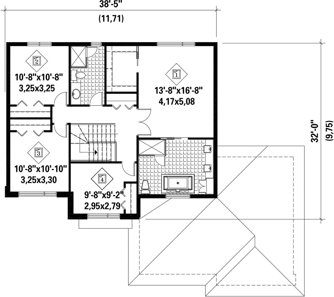
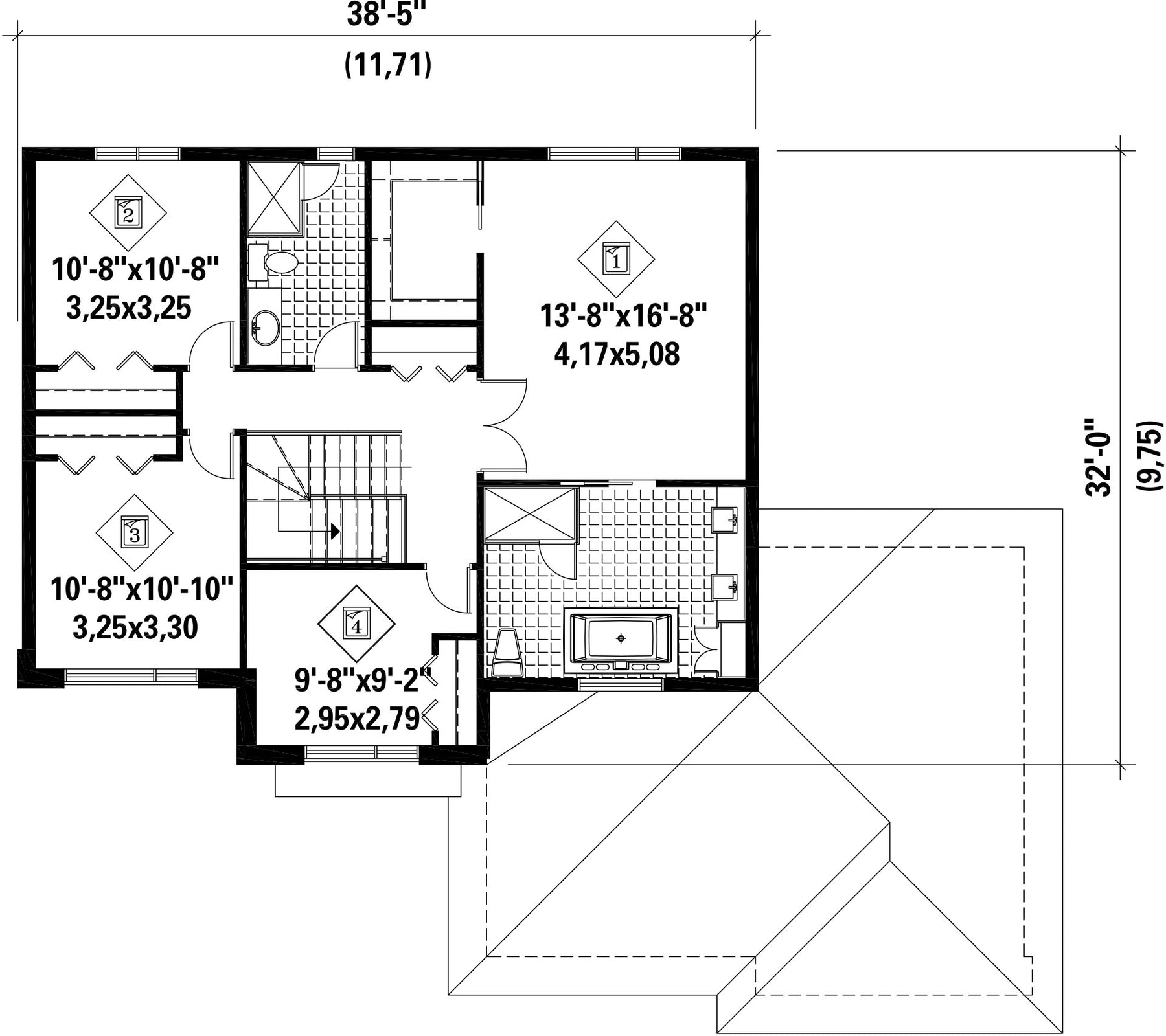
L'étage de 1 117 pieds carrés comprend une salle de bains familiale et quatre chambres, dont la chambre des maîtres qui dispose d'une vaste penderie et d'une grande salle de bains privée.
Le rez-de-chaussée fait 1 028 pieds carrés et comprend un vestibule fermé, une salle d'eau avec espace pour la laveuse et la sécheuse, une salle à manger, ainsi qu’une aire ouverte à l’arrière de la maison qui comprend un salon donnant sur la cour arrière avec un foyer au gaz, une dinette et une cuisine avec îlot.
L'étage de 1 117 pieds carrés comprend une salle de bains familiale et quatre chambres, dont la chambre des maîtres qui dispose d'une vaste penderie et d'une grande salle de bains privée.
Caractéristiques
Mesures : Impérial| Style d'architecture | Urbain |
Coût de construction
Montant approximatif équivalent à celui d'un entrepreneur général (région de la Rive-Sud de Montréal) pour une construction clé en main sans terrain ni infrastructures.
|
522045 $ |
|---|---|---|---|
| Façade | 52 pi 10 po | Surface habitable totale | 2145 pi² |
| Profondeur | 44 pi | Nombre de salles de bain | 2 |
| Hauteur | 31 pi | Nombre de chambres | 4 |
| Chambre des maîtres | Baignoire + Douche + Lavabo double + Penderie + Portes doubles + Toilettes | ||
| Surface rez-de-chaussée | 1028 pi² | Finition extérieure | Agrégats + Bois + Brique + Pierre |
| Surface étage | 1117 pi² | Type de cuisine | Coin repas + Forme en L + Salle à manger + Îlot |
| Surface garage | 613 pi² | Garage | 2 |
| Mur garage | 8 pi | Mur rez-de-chaussée | 9 pi |
| Mur étage | 8 pi | Inclinaison toit avant/arrière | 6/12 |
| Inclinaison toit gauche/droite | 6/12 |
| Style d'architecture | Urbain |
|---|---|
|
Coût de construction
Montant approximatif équivalent à celui d'un entrepreneur général (région de la Rive-Sud de Montréal) pour une construction clé en main sans terrain ni infrastructures.
|
522045 $ |
| Façade | 52 pi 10 po |
| Surface habitable totale | 2145 pi² |
| Profondeur | 44 pi |
| Nombre de salles de bain | 2 |
| Hauteur | 31 pi |
| Nombre de chambres | 4 |
| Chambre des maîtres | Baignoire + Douche + Lavabo double + Penderie + Portes doubles + Toilettes |
| Surface rez-de-chaussée | 1028 pi² |
| Finition extérieure | Agrégats + Bois + Brique + Pierre |
| Surface étage | 1117 pi² |
| Type de cuisine | Coin repas + Forme en L + Salle à manger + Îlot |
| Surface garage | 613 pi² |
| Garage | 2 |
| Mur garage | 8 pi |
| Mur rez-de-chaussée | 9 pi |
| Mur étage | 8 pi |
| Inclinaison toit avant/arrière | 6/12 |
| Inclinaison toit gauche/droite | 6/12 |