DNC000532
DNC000532
DNC000532
DNC000532

DNC000532


Jeux de plans - Sets of plans
Prix régulier$1,740.00
/

Ce site est protégé par hCaptcha, et la Politique de confidentialité et les Conditions de service de hCaptcha s’appliquent.

Description

Vestibule fermé

Caractéristiques

Mesures : Impérial

Style d'architecture Colonial Coût de construction 
Montant approximatif équivalent à celui d'un entrepreneur général (région de la Rive-Sud de Montréal) pour une construction clé en main sans terrain ni infrastructures.
500098 $
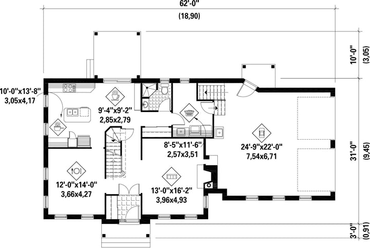
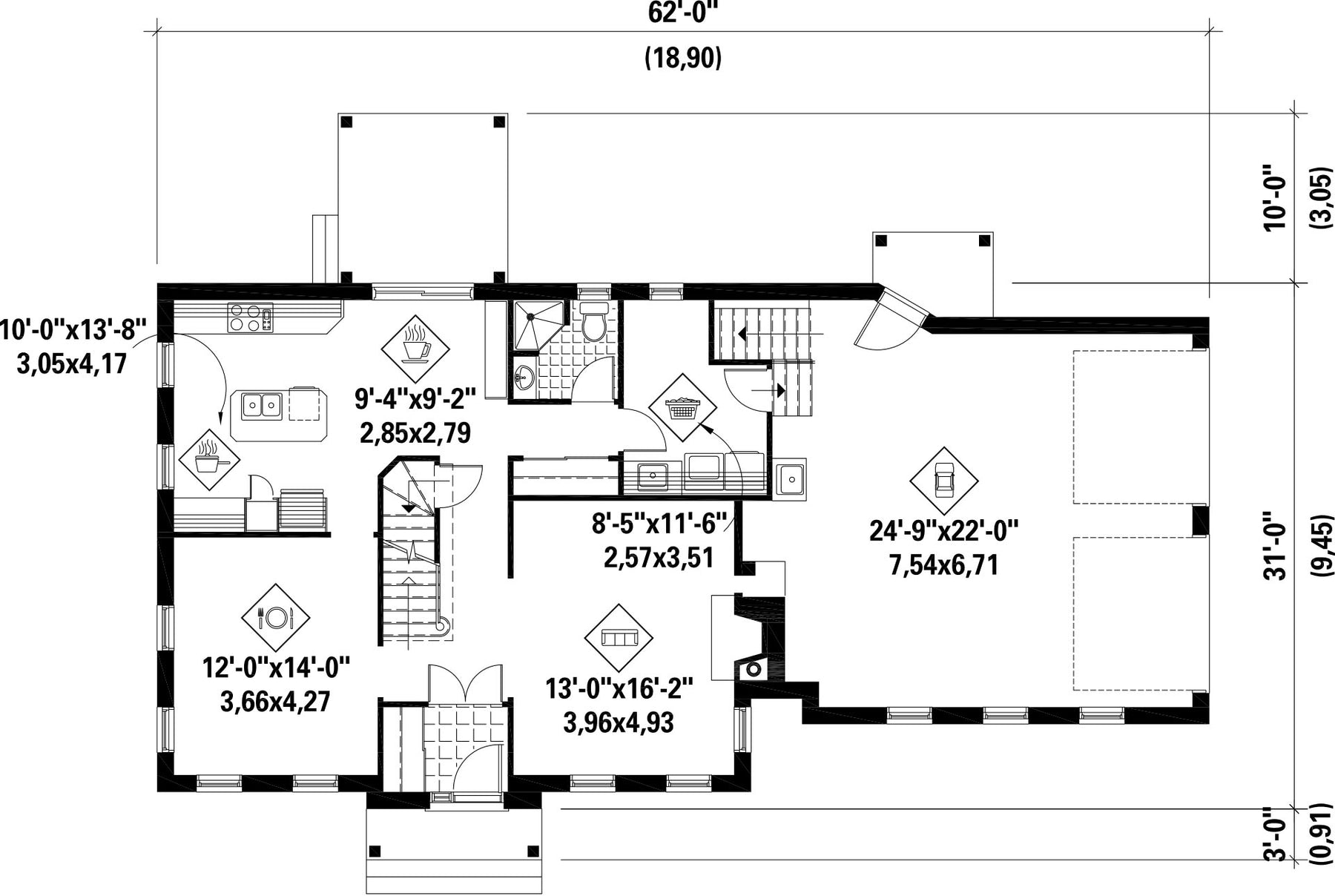
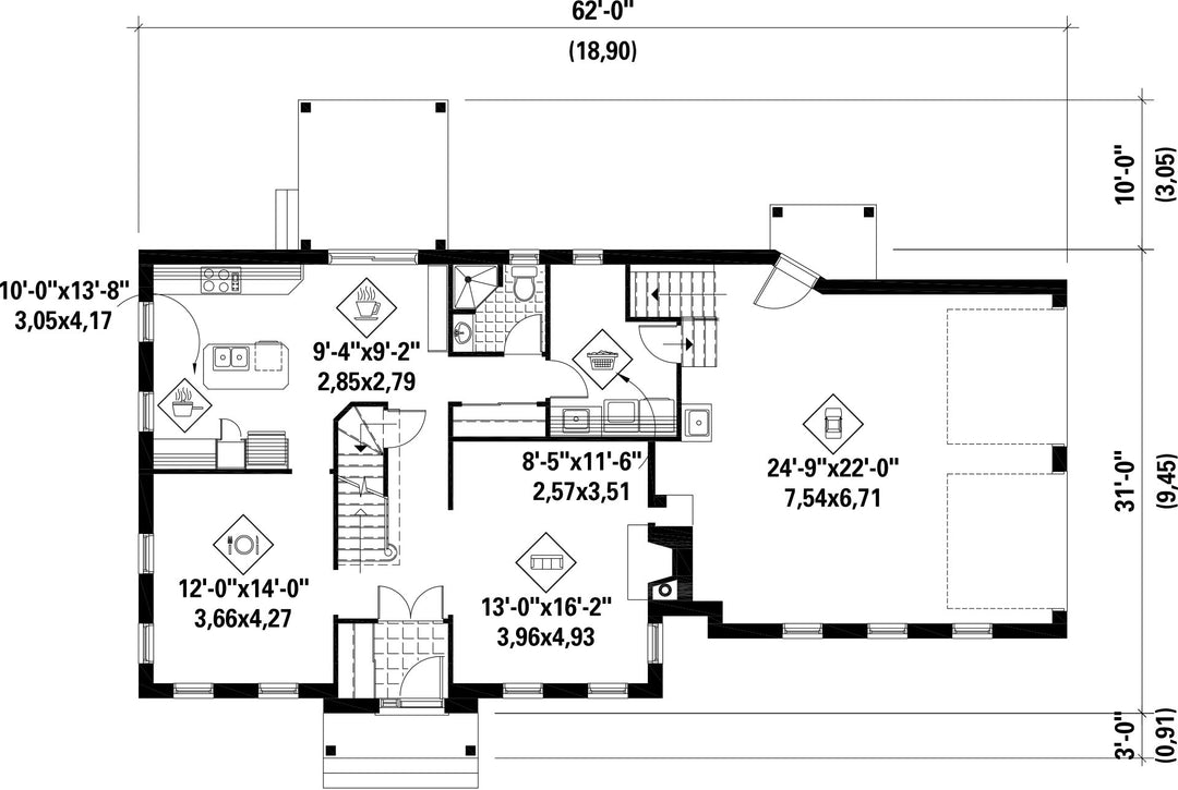
Façade 62 pi Surface habitable totale 2106 pi²
Profondeur 31 piNombre de salles de bain 2
Hauteur 33 pi 11 poNombre de chambres 3
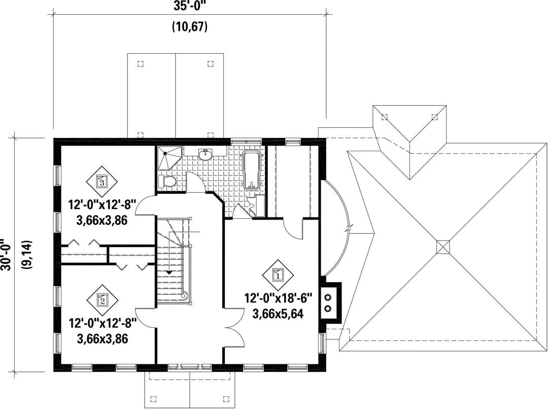
Chambre des maîtres Bain podium + Douche + Lavabo simple + Penderie + Portes doubles + Toilettes Chambre des maîtres - commentaires Bain sur pattes
Surface rez-de-chaussée 1056 pi² Finition extérieure Aluminium + Brique
Surface étage 1050 pi² Type de cuisine Coin repas + Laboratoire + Salle à manger + Îlot
Surface garage 667 pi² Garage 2
Mur garage 8 piMur rez-de-chaussée 8 pi
Mur étage 8 piInclinaison toit avant/arrière 12/12
Inclinaison toit gauche/droite 12/12
Style d'architecture Colonial
Coût de construction 
Montant approximatif équivalent à celui d'un entrepreneur général (région de la Rive-Sud de Montréal) pour une construction clé en main sans terrain ni infrastructures.
500098 $
Façade 62 pi
Surface habitable totale 2106 pi²
Profondeur 31 pi
Nombre de salles de bain 2
Hauteur 33 pi 11 po
Nombre de chambres 3
Chambre des maîtres Bain podium + Douche + Lavabo simple + Penderie + Portes doubles + Toilettes
Chambre des maîtres - commentaires Bain sur pattes
Surface rez-de-chaussée 1056 pi²
Finition extérieure Aluminium + Brique
Surface étage 1050 pi²
Type de cuisine Coin repas + Laboratoire + Salle à manger + Îlot
Surface garage 667 pi²
Garage 2
Mur garage 8 pi
Mur rez-de-chaussée 8 pi
Mur étage 8 pi
Inclinaison toit avant/arrière 12/12
Inclinaison toit gauche/droite 12/12

Ces plans de maison pourraient également vous intéresser


Vu récemment