CCL00059
CCL00059
CCL00059
CCL00059

CCL00059


Jeux de plans - Sets of plans
Prix régulier$2,290.00
/

Ce site est protégé par hCaptcha, et la Politique de confidentialité et les Conditions de service de hCaptcha s’appliquent.

Description

"Séjour au-dessus du garage Balcon moustiquaire à l'arrière Fausses lucarnes"

Caractéristiques

Mesures : Impérial

Style d'architecture Colonial Coût de construction 
Montant approximatif équivalent à celui d'un entrepreneur général (région de la Rive-Sud de Montréal) pour une construction clé en main sans terrain ni infrastructures.
691791 $
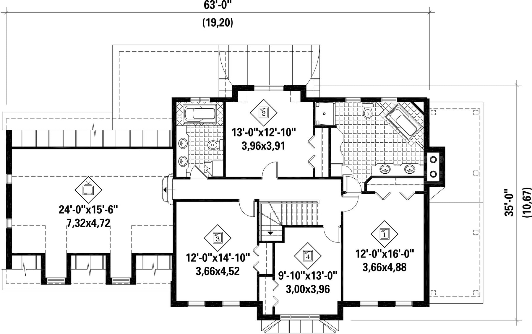
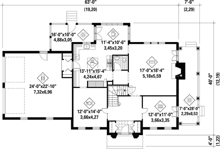
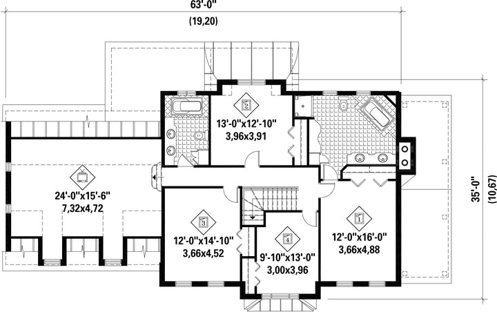
Façade 63 pi Surface habitable totale 2971 pi²
Profondeur 40 piNombre de salles de bain 2
Hauteur 35 pi 1 poNombre de chambres 4
Chambre des maîtres Bain podium + Douche + Lavabo double Chambre des maîtres - commentaires Vaste salle de bain privée
Surface rez-de-chaussée 1302 pi² Finition extérieure Bois + Brique
Surface étage 1669 pi² Type de cuisine Coin repas + Salle à manger + Îlot
Surface garage 608 pi² Garage 2
Mur garage 8 piMur rez-de-chaussée 9 pi
Mur étage 8 piInclinaison toit avant/arrière 10/12
Style d'architecture Colonial
Coût de construction 
Montant approximatif équivalent à celui d'un entrepreneur général (région de la Rive-Sud de Montréal) pour une construction clé en main sans terrain ni infrastructures.
691791 $
Façade 63 pi
Surface habitable totale 2971 pi²
Profondeur 40 pi
Nombre de salles de bain 2
Hauteur 35 pi 1 po
Nombre de chambres 4
Chambre des maîtres Bain podium + Douche + Lavabo double
Chambre des maîtres - commentaires Vaste salle de bain privée
Surface rez-de-chaussée 1302 pi²
Finition extérieure Bois + Brique
Surface étage 1669 pi²
Type de cuisine Coin repas + Salle à manger + Îlot
Surface garage 608 pi²
Garage 2
Mur garage 8 pi
Mur rez-de-chaussée 9 pi
Mur étage 8 pi
Inclinaison toit avant/arrière 10/12

Ces plans de maison pourraient également vous intéresser


Vu récemment