CCL00039
CCL00039
CCL00039
CCL00039

CCL00039


Jeux de plans - Sets of plans
Prix régulier$2,390.00
/

Ce site est protégé par hCaptcha, et la Politique de confidentialité et les Conditions de service de hCaptcha s’appliquent.

Description

"Escalier central en rond et ouvert Rez-de-chaussée avec pièces fermées"

Caractéristiques

Mesures : Impérial

Style d'architecture Colonial Coût de construction 
Montant approximatif équivalent à celui d'un entrepreneur général (région de la Rive-Sud de Montréal) pour une construction clé en main sans terrain ni infrastructures.
858378 $
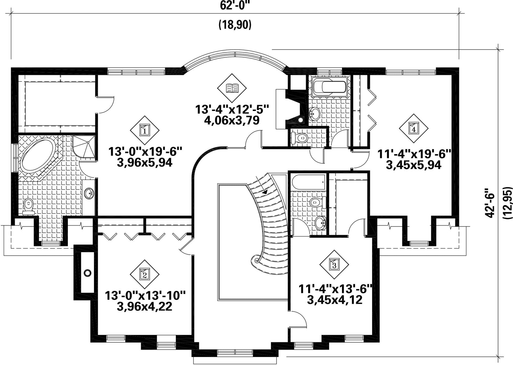
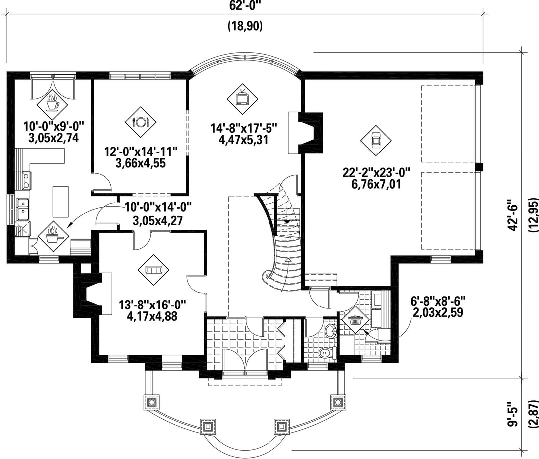
Façade 62 pi Surface habitable totale 3599 pi²
Profondeur 42 pi 6 poNombre de salles de bain 3
Hauteur 39 piNombre de chambres 4
Chambre des maîtres Bain podium + Douche + Foyer + Lavabo simple + Penderie + Portes doubles + Toilettes Chambre des maîtres - commentaires Coin-lecture dans la chambre principale
Surface rez-de-chaussée 1533 pi² Finition extérieure Agrégats + Pierre
Surface étage 2066 pi² Type de cuisine Coin repas + Forme en L + Salle à manger + Îlot
Surface garage 616 pi² Garage 2
Mur garage 8 piMur rez-de-chaussée 10 pi
Mur étage 8 piInclinaison toit avant/arrière 8/12
Inclinaison toit gauche/droite 16/12
Style d'architecture Colonial
Coût de construction 
Montant approximatif équivalent à celui d'un entrepreneur général (région de la Rive-Sud de Montréal) pour une construction clé en main sans terrain ni infrastructures.
858378 $
Façade 62 pi
Surface habitable totale 3599 pi²
Profondeur 42 pi 6 po
Nombre de salles de bain 3
Hauteur 39 pi
Nombre de chambres 4
Chambre des maîtres Bain podium + Douche + Foyer + Lavabo simple + Penderie + Portes doubles + Toilettes
Chambre des maîtres - commentaires Coin-lecture dans la chambre principale
Surface rez-de-chaussée 1533 pi²
Finition extérieure Agrégats + Pierre
Surface étage 2066 pi²
Type de cuisine Coin repas + Forme en L + Salle à manger + Îlot
Surface garage 616 pi²
Garage 2
Mur garage 8 pi
Mur rez-de-chaussée 10 pi
Mur étage 8 pi
Inclinaison toit avant/arrière 8/12
Inclinaison toit gauche/droite 16/12

Ces plans de maison pourraient également vous intéresser


Vu récemment