CCL00038
CCL00038
CCL00038
CCL00038

CCL00038


Jeux de plans - Sets of plans
Prix régulier$1,640.00
/

Ce site est protégé par hCaptcha, et la Politique de confidentialité et les Conditions de service de hCaptcha s’appliquent.

Description

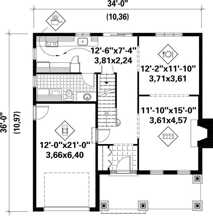
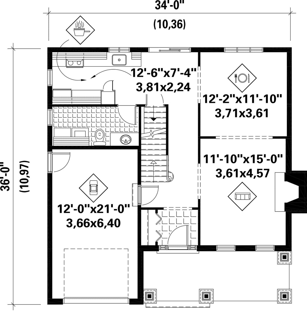
"Escalier central Foyer au salon"

Caractéristiques

Mesures : Impérial

Style d'architecture Colonial Coût de construction 
Montant approximatif équivalent à celui d'un entrepreneur général (région de la Rive-Sud de Montréal) pour une construction clé en main sans terrain ni infrastructures.
377112 $
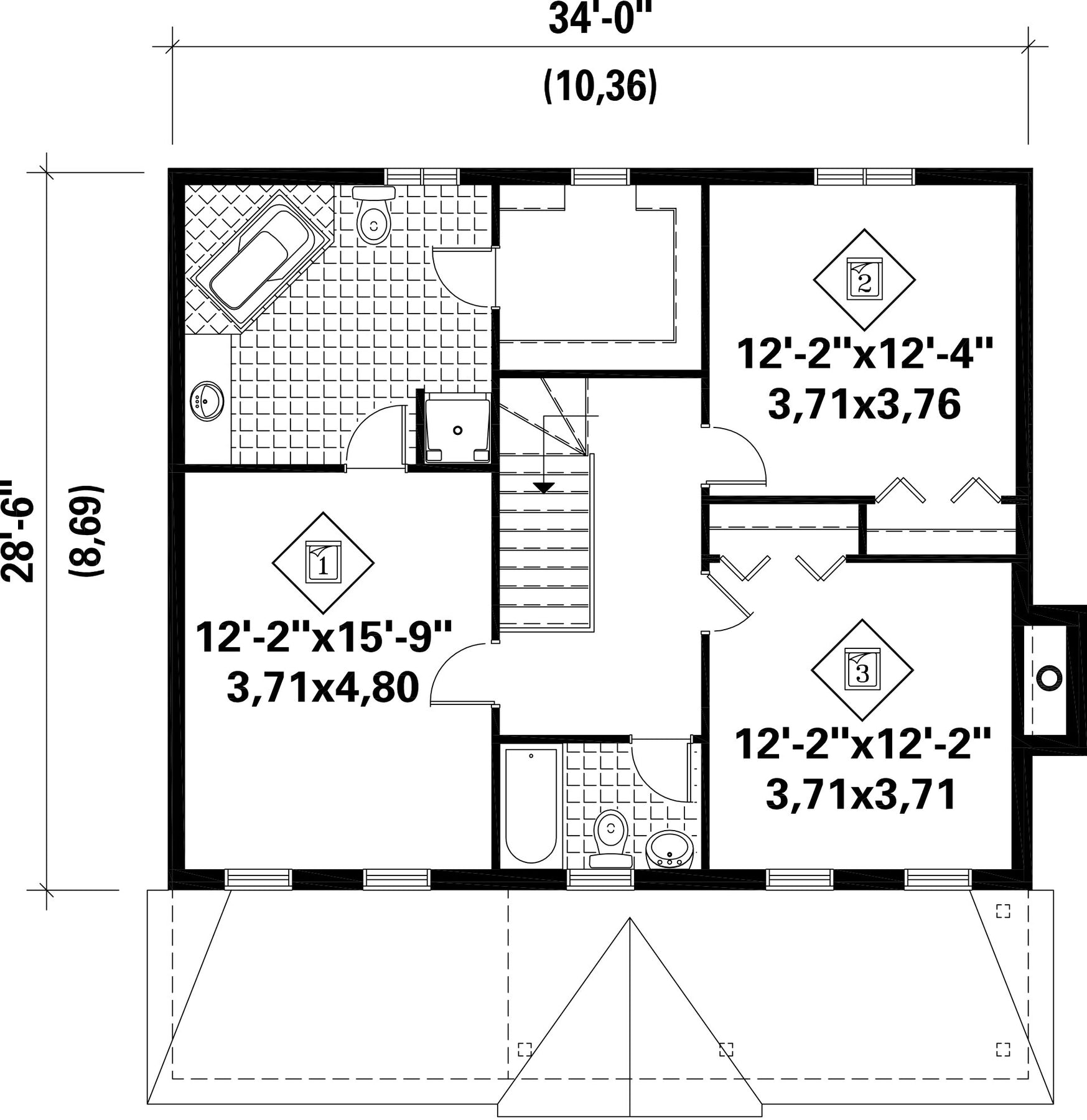
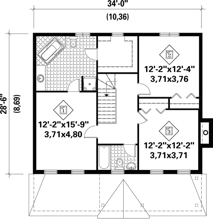
Façade 34 pi Surface habitable totale 1761 pi²
Profondeur 36 piNombre de salles de bain 1
Hauteur 28 pi 5 poNombre de chambres 3
Chambre des maîtres Bain podium + Douche + Lavabo simple + Penderie + Toilettes Chambre des maîtres - commentaires Accès à la penderie par la salle de bain des maîtres
Surface rez-de-chaussée 792 pi² Finition extérieure Aluminium + Brique
Surface étage 969 pi² Type de cuisine Laboratoire + Salle à manger
Surface garage 280 pi² Garage 1
Mur garage 8 piMur rez-de-chaussée 8 pi
Mur étage 8 piInclinaison toit avant/arrière 7/12
Inclinaison toit gauche/droite 8/12
Style d'architecture Colonial
Coût de construction 
Montant approximatif équivalent à celui d'un entrepreneur général (région de la Rive-Sud de Montréal) pour une construction clé en main sans terrain ni infrastructures.
377112 $
Façade 34 pi
Surface habitable totale 1761 pi²
Profondeur 36 pi
Nombre de salles de bain 1
Hauteur 28 pi 5 po
Nombre de chambres 3
Chambre des maîtres Bain podium + Douche + Lavabo simple + Penderie + Toilettes
Chambre des maîtres - commentaires Accès à la penderie par la salle de bain des maîtres
Surface rez-de-chaussée 792 pi²
Finition extérieure Aluminium + Brique
Surface étage 969 pi²
Type de cuisine Laboratoire + Salle à manger
Surface garage 280 pi²
Garage 1
Mur garage 8 pi
Mur rez-de-chaussée 8 pi
Mur étage 8 pi
Inclinaison toit avant/arrière 7/12
Inclinaison toit gauche/droite 8/12

Ces plans de maison pourraient également vous intéresser


Vu récemment