Description
Sobre, classique et imposante, l’architecture de cette demeure s’inspire à la fois des styles colonial et renaissance grecque. Le bâtiment principal est très symétrique, mais le garage et la véranda entourant la façade avant viennent adoucir l’ensemble et rendent la résidence plus accueillante. Un magnifique aménagement paysager ne fera que rehausser cette impression. Cette maison de 56 pieds 4 pouces de largeur sur 31 pieds de profondeur offre une surface habitable de 2 371.
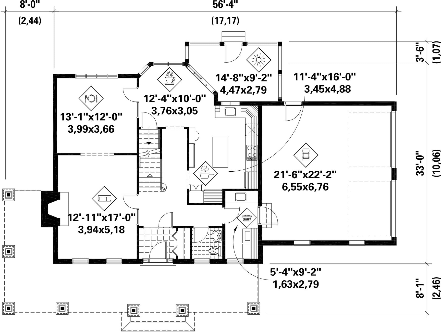
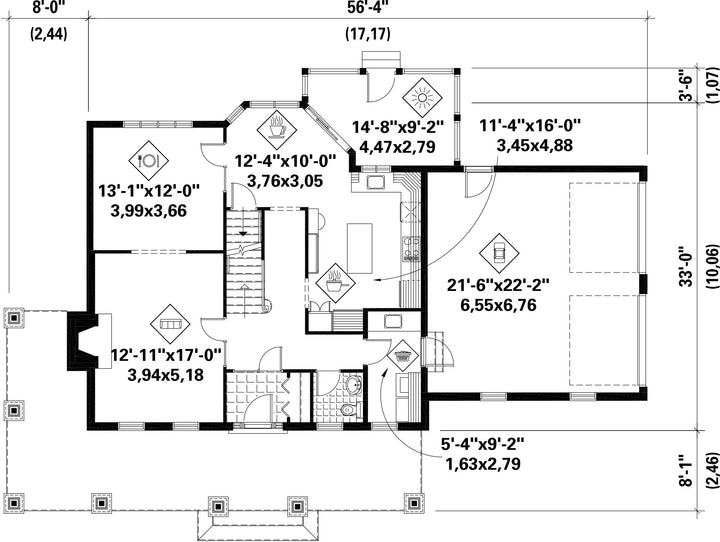
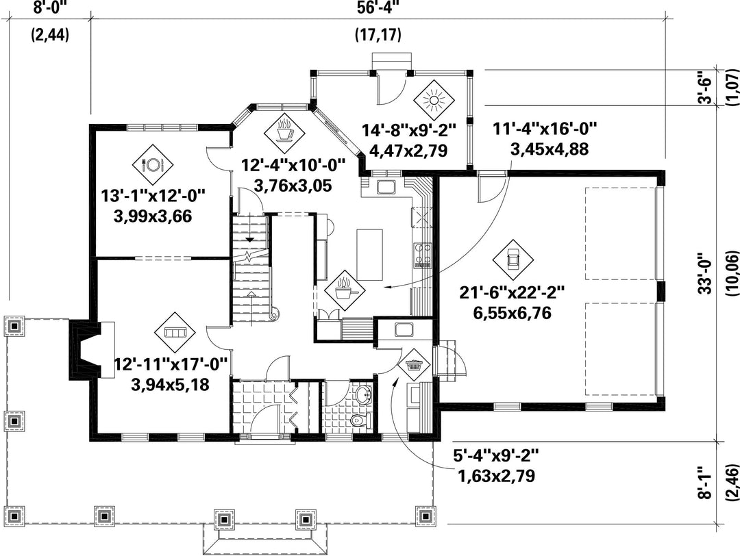
Au rez-de-chaussée, dont la surface habitable s'élève à 1 035 pieds carrés, on retrouve une cuisine, une salle à manger, un coin-repas, un salon, un solarium, une salle d’eau, une salle de lavage et un garage double de 525 pieds carrés.
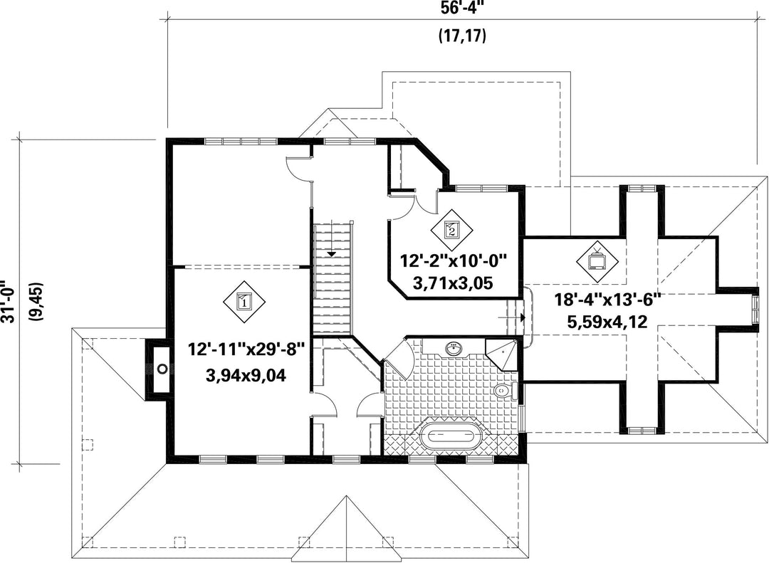
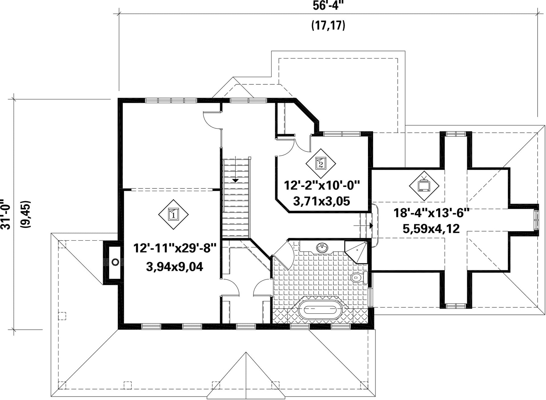
L’étage, qui fait 1 336 pieds carrés, comprend deux chambres, dont une immense chambre principale, une salle de bains, ainsi qu’une salle familiale située au-dessus du garage.
Au rez-de-chaussée, dont la surface habitable s'élève à 1 035 pieds carrés, on retrouve une cuisine, une salle à manger, un coin-repas, un salon, un solarium, une salle d’eau, une salle de lavage et un garage double de 525 pieds carrés.
L’étage, qui fait 1 336 pieds carrés, comprend deux chambres, dont une immense chambre principale, une salle de bains, ainsi qu’une salle familiale située au-dessus du garage.
Caractéristiques
Mesures : Impérial| Style d'architecture | Colonial |
Coût de construction
Montant approximatif équivalent à celui d'un entrepreneur général (région de la Rive-Sud de Montréal) pour une construction clé en main sans terrain ni infrastructures.
|
527149 $ |
|---|---|---|---|
| Façade | 56 pi 4 po | Surface habitable totale | 2371 pi² |
| Profondeur | 31 pi | Nombre de salles de bain | 1 |
| Hauteur | 34 pi 1 po | Nombre de chambres | 2 |
| Chambre des maîtres | Penderie | Chambre des maîtres - commentaires | "Chambre donnant sur la façade avant Grande penderie" |
| Surface rez-de-chaussée | 1035 pi² | Finition extérieure | Aluminium + Brique |
| Surface étage | 1336 pi² | Type de cuisine | Coin repas + Forme en L + Salle à manger + Îlot |
| Surface garage | 525 pi² | Garage | 2 |
| Mur garage | 8 pi | Mur rez-de-chaussée | 9 pi |
| Mur étage | 8 pi | Inclinaison toit avant/arrière | 9/12 |
| Inclinaison toit gauche/droite | 12/12 |
| Style d'architecture | Colonial |
|---|---|
|
Coût de construction
Montant approximatif équivalent à celui d'un entrepreneur général (région de la Rive-Sud de Montréal) pour une construction clé en main sans terrain ni infrastructures.
|
527149 $ |
| Façade | 56 pi 4 po |
| Surface habitable totale | 2371 pi² |
| Profondeur | 31 pi |
| Nombre de salles de bain | 1 |
| Hauteur | 34 pi 1 po |
| Nombre de chambres | 2 |
| Chambre des maîtres | Penderie |
| Chambre des maîtres - commentaires | "Chambre donnant sur la façade avant Grande penderie" |
| Surface rez-de-chaussée | 1035 pi² |
| Finition extérieure | Aluminium + Brique |
| Surface étage | 1336 pi² |
| Type de cuisine | Coin repas + Forme en L + Salle à manger + Îlot |
| Surface garage | 525 pi² |
| Garage | 2 |
| Mur garage | 8 pi |
| Mur rez-de-chaussée | 9 pi |
| Mur étage | 8 pi |
| Inclinaison toit avant/arrière | 9/12 |
| Inclinaison toit gauche/droite | 12/12 |