Description
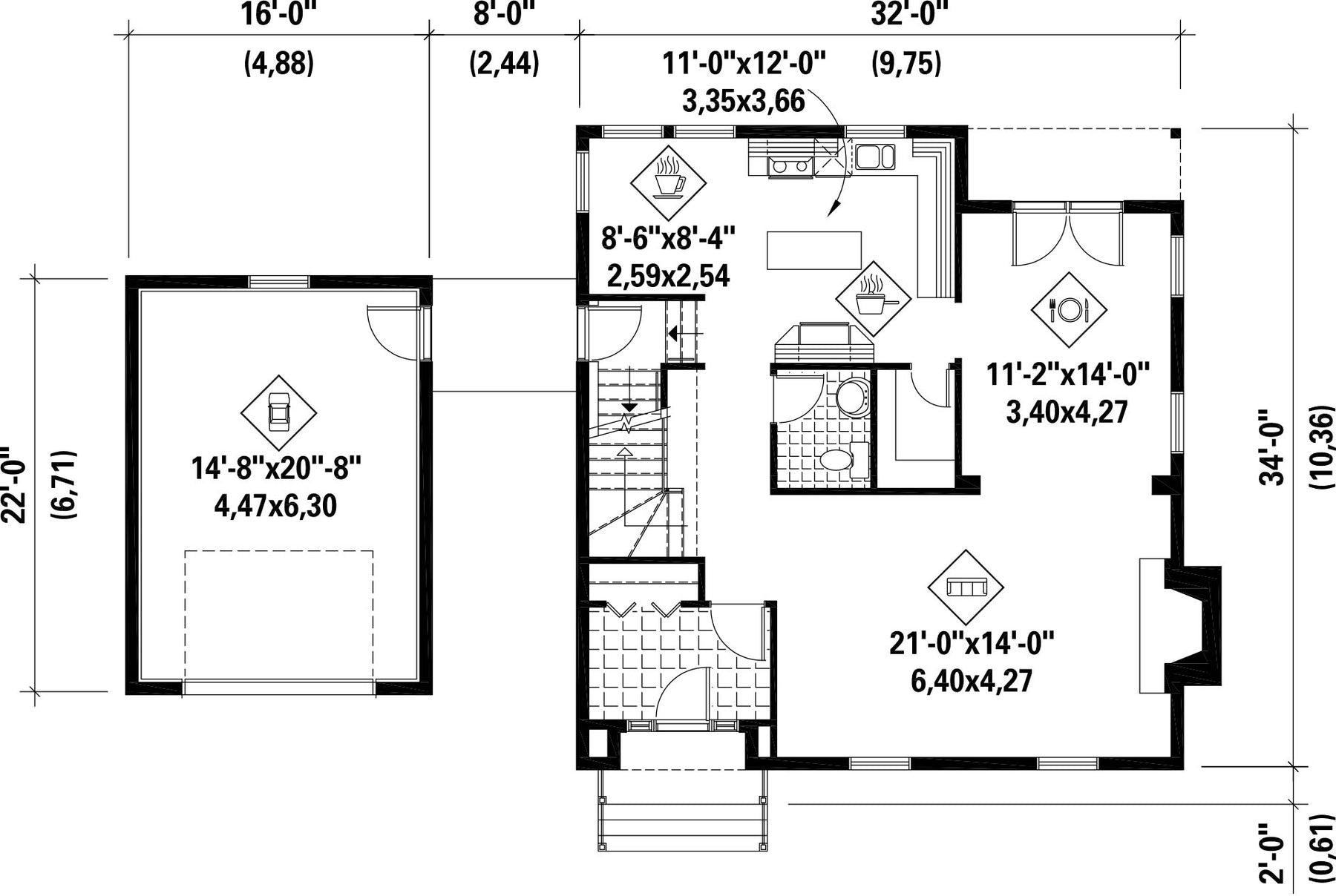
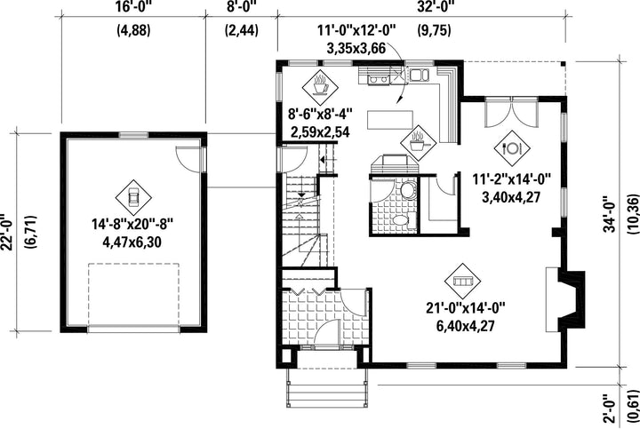
Les quatre côtés de cette jolie maison à étage comprennent un revêtement horizontal. Elle occupe 32 pieds de largeur sur 34 pieds de profondeur et sa surface habitable est de 2 066 pieds carrés. Un garage de 352 pieds carrés pouvant loger une voiture peut être construit à proximité de la demeure.
Le rez-de-chaussée qui couvre 1 024 pieds carrés comprend un vestibule fermé, un salon avec foyer, une cuisine avec coin-repas et un grand garde-manger, une salle à manger et une salle d’eau.
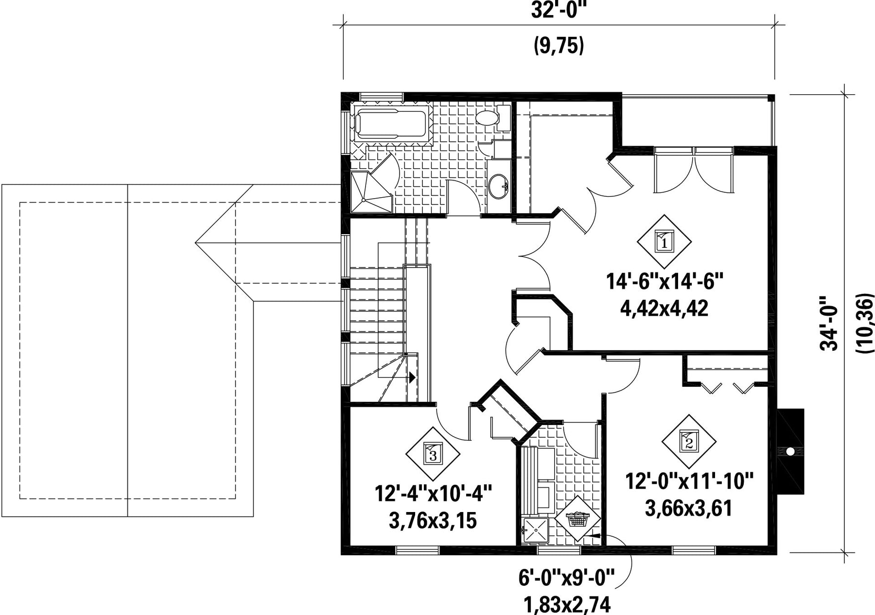
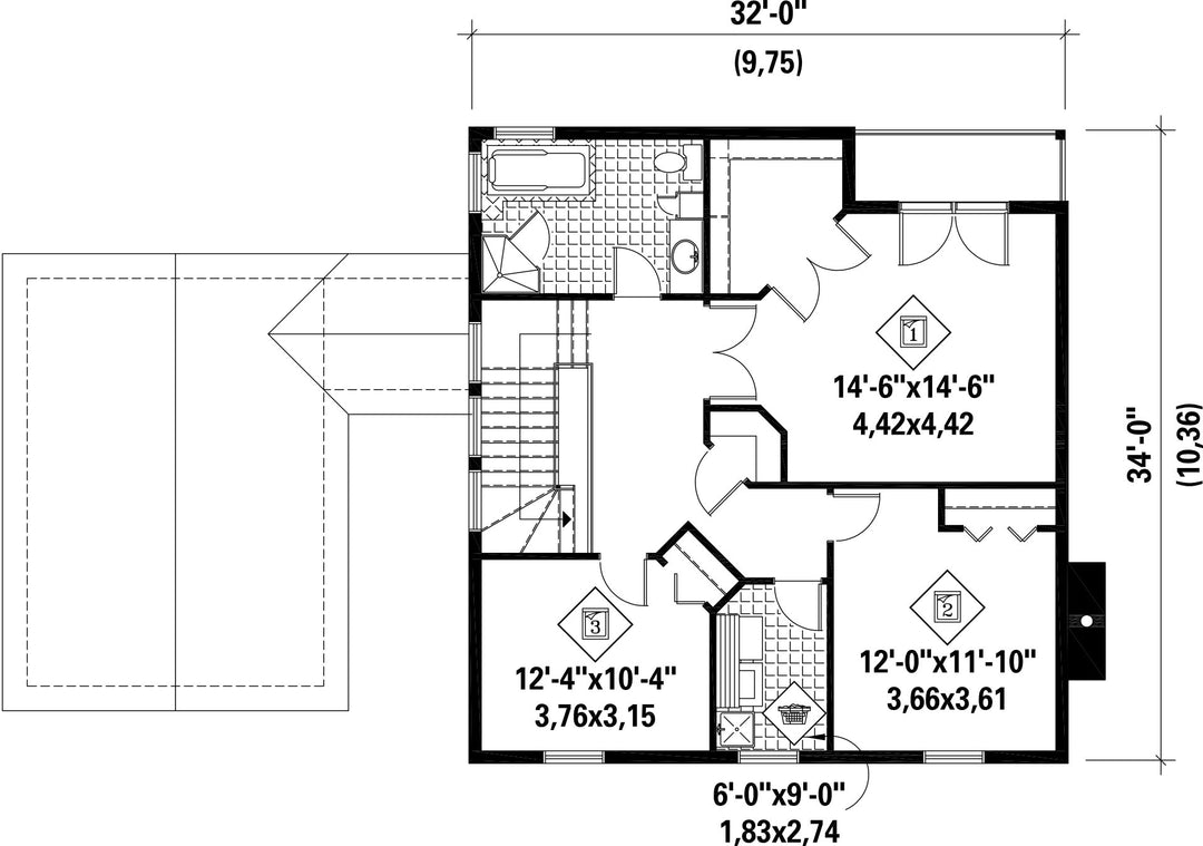
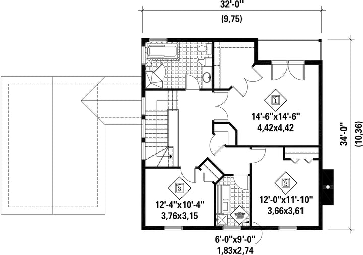
L’étage, dont la surface habitable s’élève à 1 042 pieds carrés, comprend une chambre principale avec penderie et balcon extérieur, deux chambres supplémentaires, une salle de lavage ainsi qu’une salle de bains.
Le rez-de-chaussée qui couvre 1 024 pieds carrés comprend un vestibule fermé, un salon avec foyer, une cuisine avec coin-repas et un grand garde-manger, une salle à manger et une salle d’eau.
L’étage, dont la surface habitable s’élève à 1 042 pieds carrés, comprend une chambre principale avec penderie et balcon extérieur, deux chambres supplémentaires, une salle de lavage ainsi qu’une salle de bains.
Caractéristiques
Mesures : Impérial| Style d'architecture | Colonial |
Coût de construction
Montant approximatif équivalent à celui d'un entrepreneur général (région de la Rive-Sud de Montréal) pour une construction clé en main sans terrain ni infrastructures.
|
414685 $ |
|---|---|---|---|
| Façade | 32 pi | Surface habitable totale | 2066 pi² |
| Profondeur | 34 pi | Nombre de salles de bain | 1 |
| Hauteur | 33 pi 5 po | Nombre de chambres | 3 |
| Chambre des maîtres | Penderie + Portes doubles | Chambre des maîtres - commentaires | Chambre des maîtres avec balcon extérieur |
| Surface rez-de-chaussée | 1024 pi² | Finition extérieure | Aluminium |
| Surface étage | 1042 pi² | Type de cuisine | Salle à manger + Îlot |
| Surface garage | 352 pi² | Garage | 1 |
| Mur garage | 8 pi | Mur rez-de-chaussée | 9 pi |
| Mur étage | 8 pi | ||
| Inclinaison toit gauche/droite | 8/12 |
| Style d'architecture | Colonial |
|---|---|
|
Coût de construction
Montant approximatif équivalent à celui d'un entrepreneur général (région de la Rive-Sud de Montréal) pour une construction clé en main sans terrain ni infrastructures.
|
414685 $ |
| Façade | 32 pi |
| Surface habitable totale | 2066 pi² |
| Profondeur | 34 pi |
| Nombre de salles de bain | 1 |
| Hauteur | 33 pi 5 po |
| Nombre de chambres | 3 |
| Chambre des maîtres | Penderie + Portes doubles |
| Chambre des maîtres - commentaires | Chambre des maîtres avec balcon extérieur |
| Surface rez-de-chaussée | 1024 pi² |
| Finition extérieure | Aluminium |
| Surface étage | 1042 pi² |
| Type de cuisine | Salle à manger + Îlot |
| Surface garage | 352 pi² |
| Garage | 1 |
| Mur garage | 8 pi |
| Mur rez-de-chaussée | 9 pi |
| Mur étage | 8 pi |
| Inclinaison toit gauche/droite | 8/12 |