Description
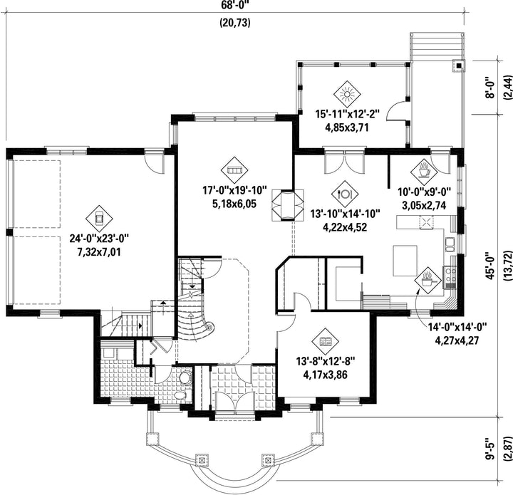
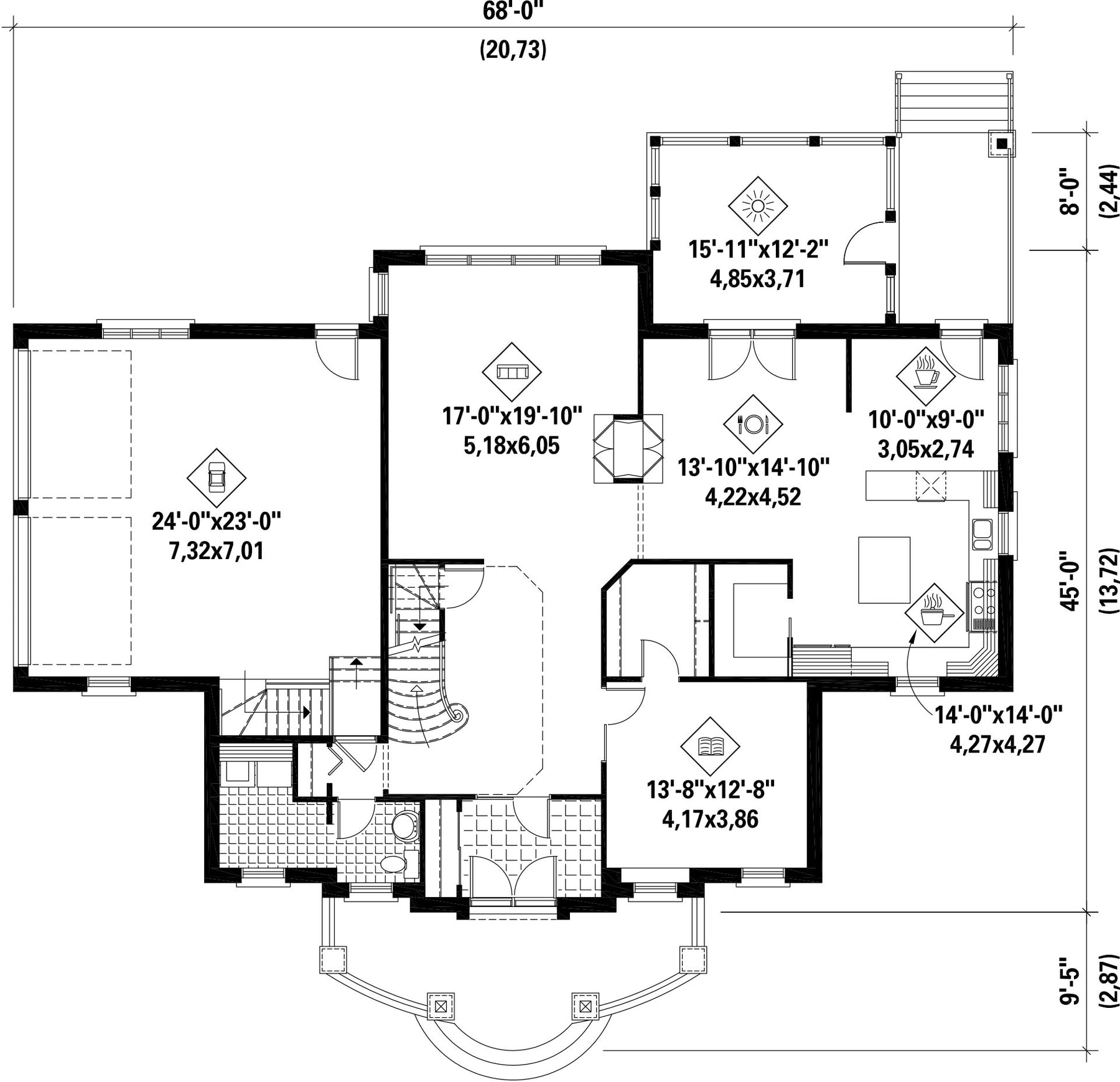
Avec son revêtement de pierres et d’agrégats, ainsi que ses fenêtres agrémentées de volets, cette prestigieuse maison à étage se veut invitante et chaleureuse. Elle mesure 68 pieds de largeur sur 45 pieds de profondeur et offre une surface habitable de 3 932 pieds carrés.
Le rez-de-chaussée occupe 1 721 pieds carrés et comporte un vestibule fermé, un hall ouvert sur deux niveaux, ainsi qu’une immense aire ouverte où se trouvent le salon et la salle à manger, ces deux pièces étant divisées par un magnifique foyer à deux faces. On y retrouve également une cuisine, un coin-repas, un solarium, une salle d’eau et une salle de lecture. Le garage double de 660 pieds carrés est également vaste et dispose d’un accès au sous-sol.
Réparti sur 2 211 pieds carrés, l’étage compte quatre chambres, chacune avec sa propre salle de bains et une grande penderie.
Le rez-de-chaussée occupe 1 721 pieds carrés et comporte un vestibule fermé, un hall ouvert sur deux niveaux, ainsi qu’une immense aire ouverte où se trouvent le salon et la salle à manger, ces deux pièces étant divisées par un magnifique foyer à deux faces. On y retrouve également une cuisine, un coin-repas, un solarium, une salle d’eau et une salle de lecture. Le garage double de 660 pieds carrés est également vaste et dispose d’un accès au sous-sol.
Réparti sur 2 211 pieds carrés, l’étage compte quatre chambres, chacune avec sa propre salle de bains et une grande penderie.
Caractéristiques
Mesures : Impérial| Style d'architecture | Colonial |
Coût de construction
Montant approximatif équivalent à celui d'un entrepreneur général (région de la Rive-Sud de Montréal) pour une construction clé en main sans terrain ni infrastructures.
|
907238 $ |
|---|---|---|---|
| Façade | 68 pi | Surface habitable totale | 3932 pi² |
| Profondeur | 45 pi | Nombre de salles de bain | 4 |
| Hauteur | 38 pi | Nombre de chambres | 4 |
| Chambre des maîtres | Bain podium + Douche + Lavabo simple + Penderie + Portes doubles + Toilettes | Chambre des maîtres - commentaires | Grande chambre des maîtres avec coin lecture Salle de bain des maîtres avec maquilleuse |
| Surface rez-de-chaussée | 1721 pi² | Finition extérieure | Agrégats + Pierre |
| Surface étage | 2211 pi² | Type de cuisine | Coin repas + Forme en U + Salle à manger |
| Surface garage | 660 pi² | Garage | 2 |
| Mur garage | 8 pi | Mur rez-de-chaussée | 9 pi |
| Mur étage | 9 pi | Inclinaison toit avant/arrière | 8/12,10/12 |
| Inclinaison toit gauche/droite | 16/12 |
| Style d'architecture | Colonial |
|---|---|
|
Coût de construction
Montant approximatif équivalent à celui d'un entrepreneur général (région de la Rive-Sud de Montréal) pour une construction clé en main sans terrain ni infrastructures.
|
907238 $ |
| Façade | 68 pi |
| Surface habitable totale | 3932 pi² |
| Profondeur | 45 pi |
| Nombre de salles de bain | 4 |
| Hauteur | 38 pi |
| Nombre de chambres | 4 |
| Chambre des maîtres | Bain podium + Douche + Lavabo simple + Penderie + Portes doubles + Toilettes |
| Chambre des maîtres - commentaires | Grande chambre des maîtres avec coin lecture Salle de bain des maîtres avec maquilleuse |
| Surface rez-de-chaussée | 1721 pi² |
| Finition extérieure | Agrégats + Pierre |
| Surface étage | 2211 pi² |
| Type de cuisine | Coin repas + Forme en U + Salle à manger |
| Surface garage | 660 pi² |
| Garage | 2 |
| Mur garage | 8 pi |
| Mur rez-de-chaussée | 9 pi |
| Mur étage | 9 pi |
| Inclinaison toit avant/arrière | 8/12,10/12 |
| Inclinaison toit gauche/droite | 16/12 |