20652
20652
20652
20652
20652
20652

Jeux de plans - Sets of plans
Prix régulier$2,340.00
/

Ce site est protégé par hCaptcha, et la Politique de confidentialité et les Conditions de service de hCaptcha s’appliquent.

Description

"Entrée abaissée à aire ouverte Très vaste salon 5 chambres à l'étage Salle de lavage au rez-de-chaussée"

Caractéristiques

Mesures : Impérial

Style d'architecture Colonial Coût de construction 
Montant approximatif équivalent à celui d'un entrepreneur général (région de la Rive-Sud de Montréal) pour une construction clé en main sans terrain ni infrastructures.
796325 $
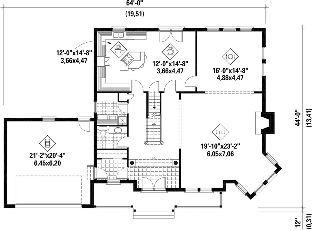
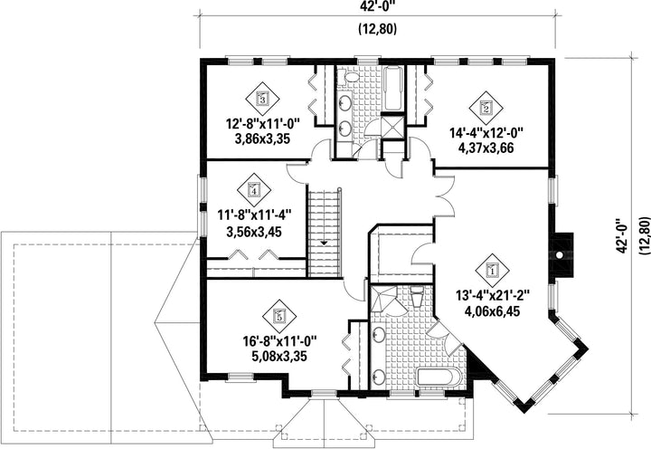
Façade 64 pi Surface habitable totale 3348 pi²
Profondeur 44 piNombre de salles de bain 2
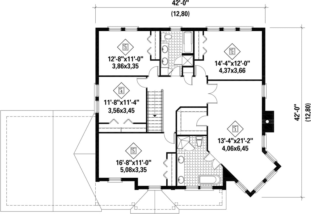
Hauteur 39 pi 4 poNombre de chambres 5
Chambre des maîtres Bain podium + Douche + Lavabo double + Portes doubles + Toilettes Chambre des maîtres - commentaires Très grande chambre
Surface rez-de-chaussée 1674 pi² Finition extérieure Brique + Pierre
Surface étage 1674 pi² Type de cuisine Coin repas + Comptoir repas + Forme en U + Salle à manger + Îlot
Surface garage 484 pi² Garage 2
Mur garage 8 piMur rez-de-chaussée 10 pi
Mur étage 9 piInclinaison toit avant/arrière 8/12
Inclinaison toit gauche/droite 8/12
Style d'architecture Colonial
Coût de construction 
Montant approximatif équivalent à celui d'un entrepreneur général (région de la Rive-Sud de Montréal) pour une construction clé en main sans terrain ni infrastructures.
796325 $
Façade 64 pi
Surface habitable totale 3348 pi²
Profondeur 44 pi
Nombre de salles de bain 2
Hauteur 39 pi 4 po
Nombre de chambres 5
Chambre des maîtres Bain podium + Douche + Lavabo double + Portes doubles + Toilettes
Chambre des maîtres - commentaires Très grande chambre
Surface rez-de-chaussée 1674 pi²
Finition extérieure Brique + Pierre
Surface étage 1674 pi²
Type de cuisine Coin repas + Comptoir repas + Forme en U + Salle à manger + Îlot
Surface garage 484 pi²
Garage 2
Mur garage 8 pi
Mur rez-de-chaussée 10 pi
Mur étage 9 pi
Inclinaison toit avant/arrière 8/12
Inclinaison toit gauche/droite 8/12

Ces plans de maison pourraient également vous intéresser


Vu récemment