Description
Cette prestigieuse maison à étage mesure 52 pieds de largeur sur 40 pieds de profondeur, et offre une surface habitable de 2 616 pieds carrés. Son entrée imposante, ses détails architecturaux, son revêtement de briques et son abondante fenestration lui confèrent une apparence des plus élégantes.
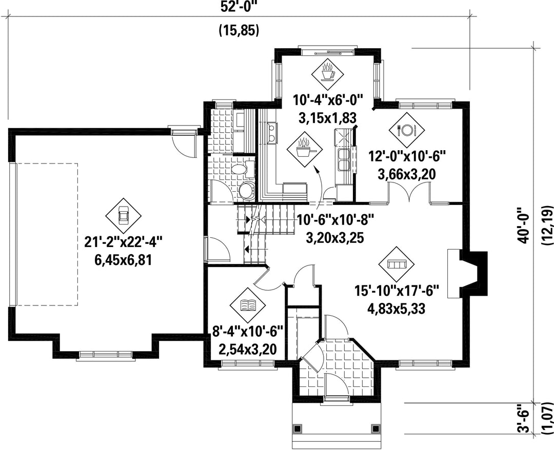
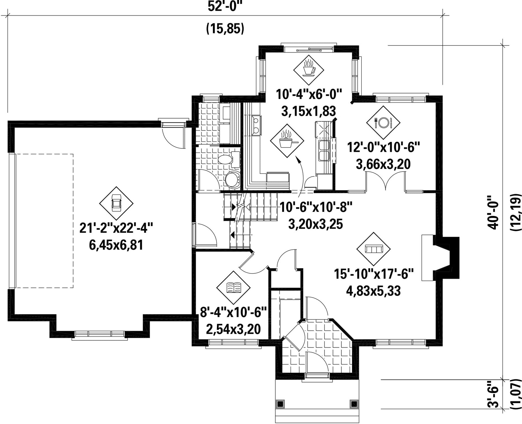
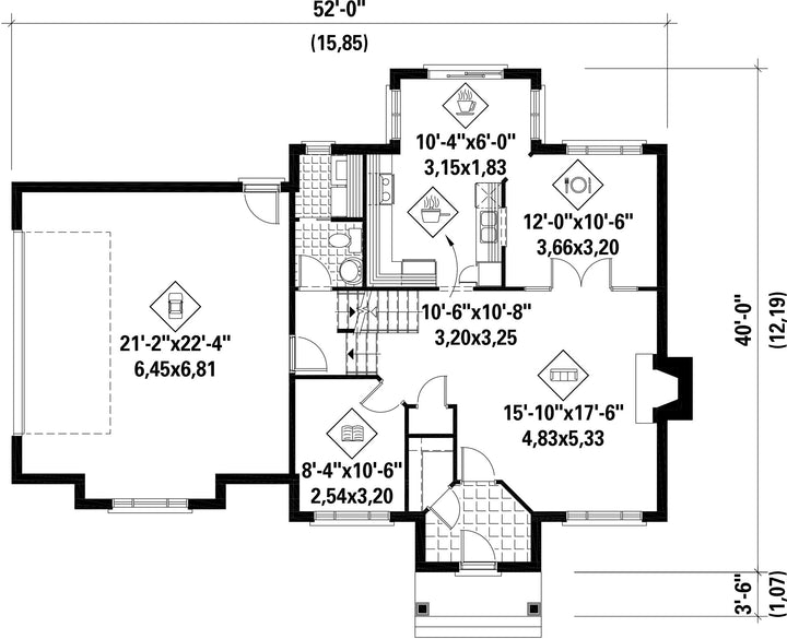
D’une superficie de 1 012 pieds carrés, le rez-de-chaussée compte un salon avec foyer séparé de la salle à manger par des portes françaises, une cuisine avec coin repas, une salle d’eau avec un espace pour la laveuse et la sécheuse, et une autre pièce pouvant servir de bureau ou d’atelier. Un garage double de 552 pieds carrés avec entrée sur le côté vient compléter l’ensemble.
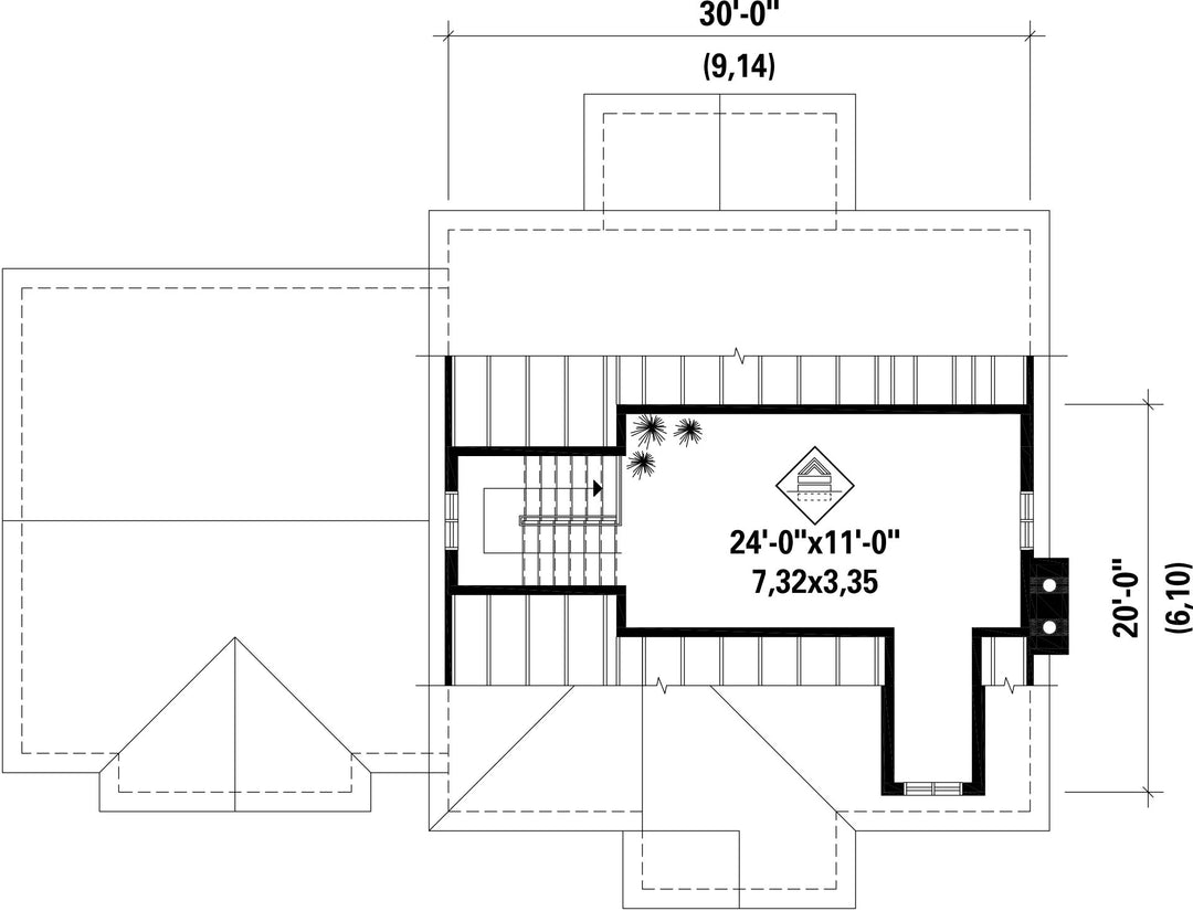
L’étage de 1 241 pieds carrés comprend une salle de bains familiale et trois chambres dont une chambre principale avec coin lecture et chambre de bains privée. Un loft de 361 pieds carrés situé au-dessus des chambres peut être aménagé en cinéma maison.
D’une superficie de 1 012 pieds carrés, le rez-de-chaussée compte un salon avec foyer séparé de la salle à manger par des portes françaises, une cuisine avec coin repas, une salle d’eau avec un espace pour la laveuse et la sécheuse, et une autre pièce pouvant servir de bureau ou d’atelier. Un garage double de 552 pieds carrés avec entrée sur le côté vient compléter l’ensemble.
L’étage de 1 241 pieds carrés comprend une salle de bains familiale et trois chambres dont une chambre principale avec coin lecture et chambre de bains privée. Un loft de 361 pieds carrés situé au-dessus des chambres peut être aménagé en cinéma maison.
Caractéristiques
Mesures : Impérial| Style d'architecture | Colonial |
Coût de construction
Montant approximatif équivalent à celui d'un entrepreneur général (région de la Rive-Sud de Montréal) pour une construction clé en main sans terrain ni infrastructures.
|
555658 $ |
|---|---|---|---|
| Façade | 52 pi | Surface habitable totale | 2616 pi² |
| Profondeur | 40 pi | Nombre de salles de bain | 2 |
| Hauteur | 37 pi 2 po | Nombre de chambres | 3 |
| Chambre des maîtres | Bain podium + Douche + Lavabo double + Penderie + Toilettes | Chambre des maîtres - commentaires | Grande chambre |
| Surface rez-de-chaussée | 1012 pi² | Finition extérieure | Agrégats + Aluminium + Brique |
| Surface étage | 1241 pi² | Type de cuisine | Coin repas + Forme en U + Salle à manger |
| Surface garage | 552 pi² | Garage | 2 |
| Mur garage | 8 pi | Mur rez-de-chaussée | 9 pi |
| Mur étage | 8 pi | Inclinaison toit avant/arrière | 12/12 |
| Style d'architecture | Colonial |
|---|---|
|
Coût de construction
Montant approximatif équivalent à celui d'un entrepreneur général (région de la Rive-Sud de Montréal) pour une construction clé en main sans terrain ni infrastructures.
|
555658 $ |
| Façade | 52 pi |
| Surface habitable totale | 2616 pi² |
| Profondeur | 40 pi |
| Nombre de salles de bain | 2 |
| Hauteur | 37 pi 2 po |
| Nombre de chambres | 3 |
| Chambre des maîtres | Bain podium + Douche + Lavabo double + Penderie + Toilettes |
| Chambre des maîtres - commentaires | Grande chambre |
| Surface rez-de-chaussée | 1012 pi² |
| Finition extérieure | Agrégats + Aluminium + Brique |
| Surface étage | 1241 pi² |
| Type de cuisine | Coin repas + Forme en U + Salle à manger |
| Surface garage | 552 pi² |
| Garage | 2 |
| Mur garage | 8 pi |
| Mur rez-de-chaussée | 9 pi |
| Mur étage | 8 pi |
| Inclinaison toit avant/arrière | 12/12 |