Description
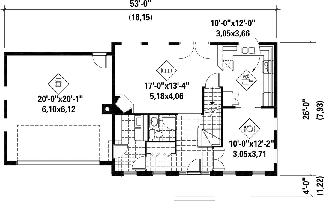
Cette prestigieuse maison à étage possède plusieurs attributs, dont un vaste salon avec foyer. La demeure, qui occupe 53 pieds de largeur sur 26 pieds de profondeur, a une surface habitable de 1 664 pieds carrés.
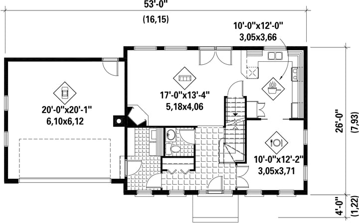
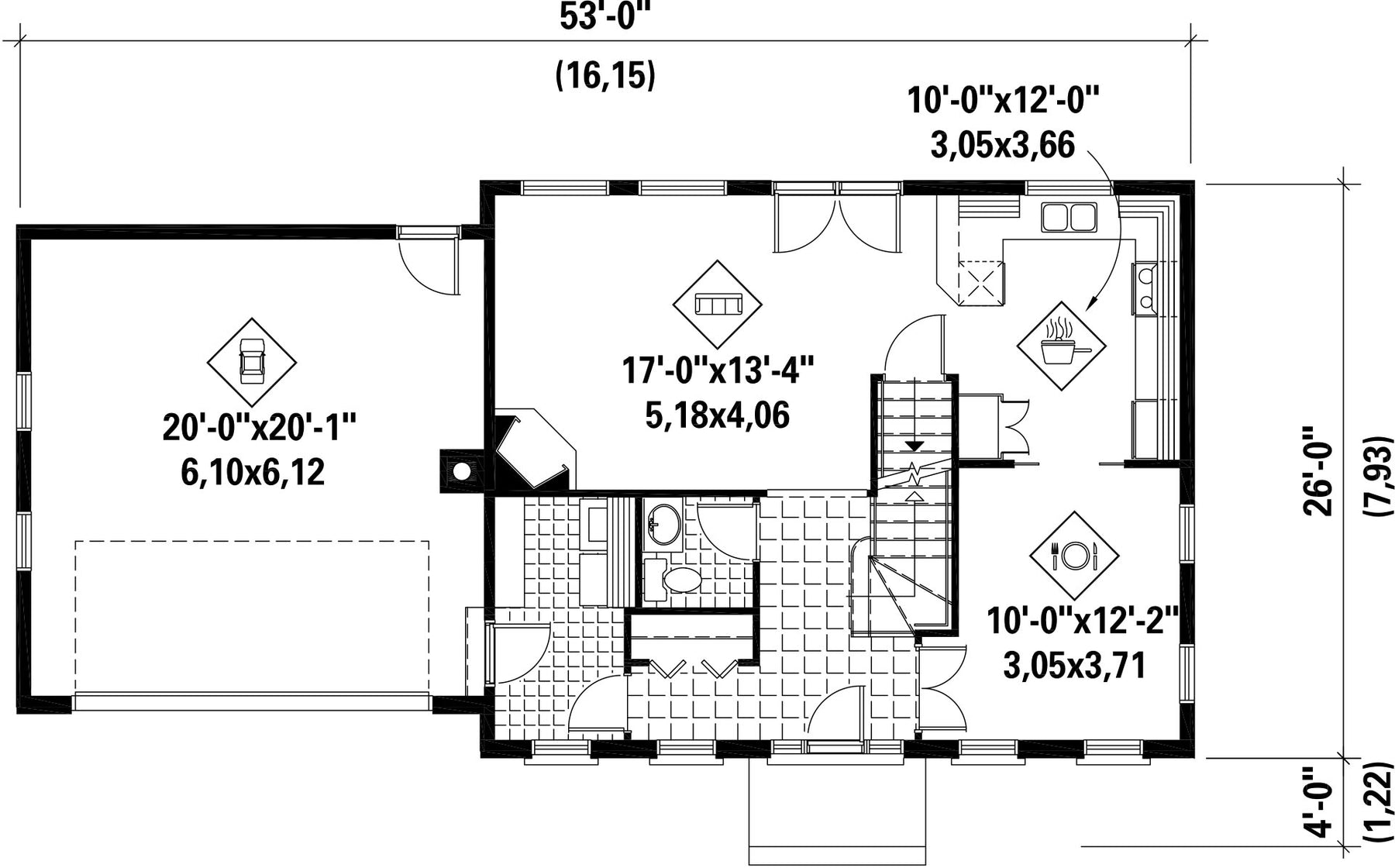
Le rez-de-chaussée qui occupe 832 pieds carrés comprend une cuisine, une salle à manger, un salon avec foyer, une salle d’eau, une salle de lavage et un garage double.
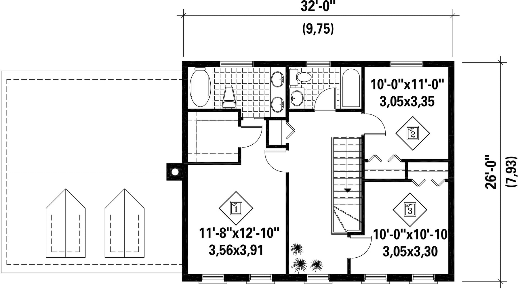
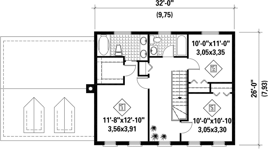
Quant à l’étage, dont la surface habitable s’élève à 832 pieds carrés, il comprend une chambre principale avec penderie et salle de bains attenante, deux chambres supplémentaires ainsi qu’une salle de bains.
Le rez-de-chaussée qui occupe 832 pieds carrés comprend une cuisine, une salle à manger, un salon avec foyer, une salle d’eau, une salle de lavage et un garage double.
Quant à l’étage, dont la surface habitable s’élève à 832 pieds carrés, il comprend une chambre principale avec penderie et salle de bains attenante, deux chambres supplémentaires ainsi qu’une salle de bains.
Caractéristiques
Mesures : Impérial| Style d'architecture | Colonial |
Coût de construction
Montant approximatif équivalent à celui d'un entrepreneur général (région de la Rive-Sud de Montréal) pour une construction clé en main sans terrain ni infrastructures.
|
368994 $ |
|---|---|---|---|
| Façade | 53 pi | Surface habitable totale | 1664 pi² |
| Profondeur | 26 pi | Nombre de salles de bain | 2 |
| Hauteur | 34 pi 6 po | Nombre de chambres | 3 |
| Chambre des maîtres | Bain podium + Lavabo double + Penderie + Toilettes | Chambre des maîtres - commentaires | --- |
| Surface rez-de-chaussée | 832 pi² | Finition extérieure | Aluminium + Brique |
| Surface étage | 832 pi² | Type de cuisine | Comptoir repas + Forme en U + Salle à manger |
| Surface garage | 462 pi² | Garage | 2 |
| Mur garage | 8 pi | Mur rez-de-chaussée | 9 pi |
| Mur étage | 8 pi | Inclinaison toit avant/arrière | 12/12 |
| Style d'architecture | Colonial |
|---|---|
|
Coût de construction
Montant approximatif équivalent à celui d'un entrepreneur général (région de la Rive-Sud de Montréal) pour une construction clé en main sans terrain ni infrastructures.
|
368994 $ |
| Façade | 53 pi |
| Surface habitable totale | 1664 pi² |
| Profondeur | 26 pi |
| Nombre de salles de bain | 2 |
| Hauteur | 34 pi 6 po |
| Nombre de chambres | 3 |
| Chambre des maîtres | Bain podium + Lavabo double + Penderie + Toilettes |
| Chambre des maîtres - commentaires | --- |
| Surface rez-de-chaussée | 832 pi² |
| Finition extérieure | Aluminium + Brique |
| Surface étage | 832 pi² |
| Type de cuisine | Comptoir repas + Forme en U + Salle à manger |
| Surface garage | 462 pi² |
| Garage | 2 |
| Mur garage | 8 pi |
| Mur rez-de-chaussée | 9 pi |
| Mur étage | 8 pi |
| Inclinaison toit avant/arrière | 12/12 |