Description
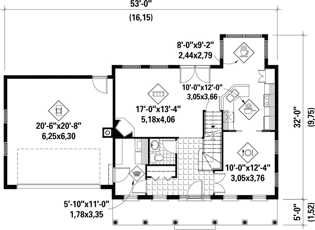
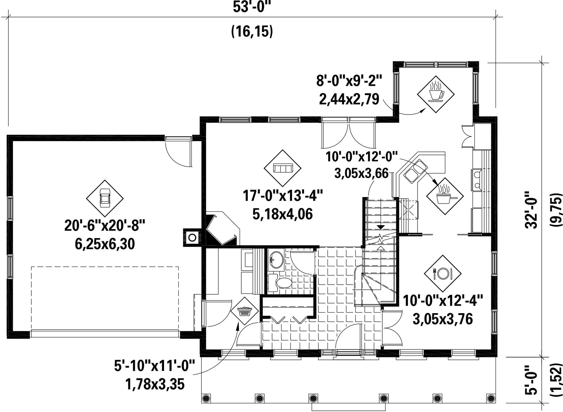
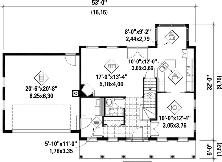
Le style de cette vaste maison à étage est rehaussé par ses lucarnes, ses volets décoratifs et son grand porche avec colonnade. Elle mesure 53 pieds de largeur sur 32 pieds de profondeur et offre une surface habitable de 1 718 pieds carrés.
Le rez-de-chaussée de 886 pieds carrés comprend une cuisine avec coin repas, une salle à manger, un salon avec foyer, une salle d’eau avec espace pour une laveuse et une sécheuse, ainsi qu’un garage double de 462 pieds carrés.
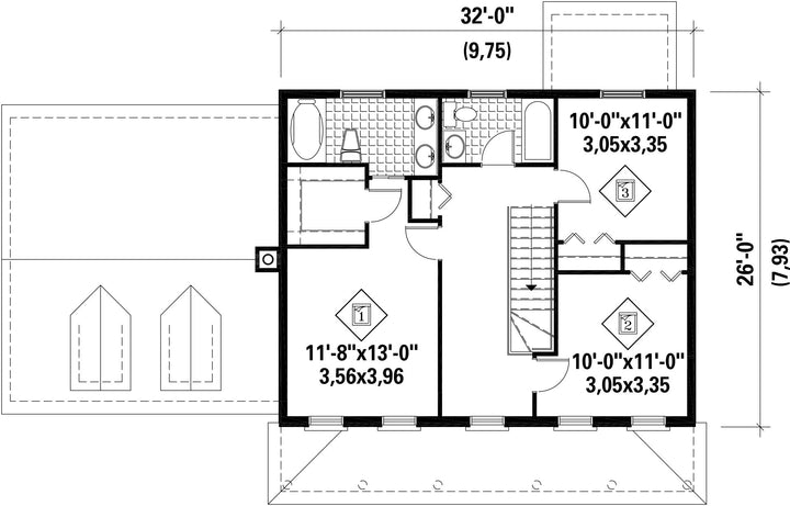
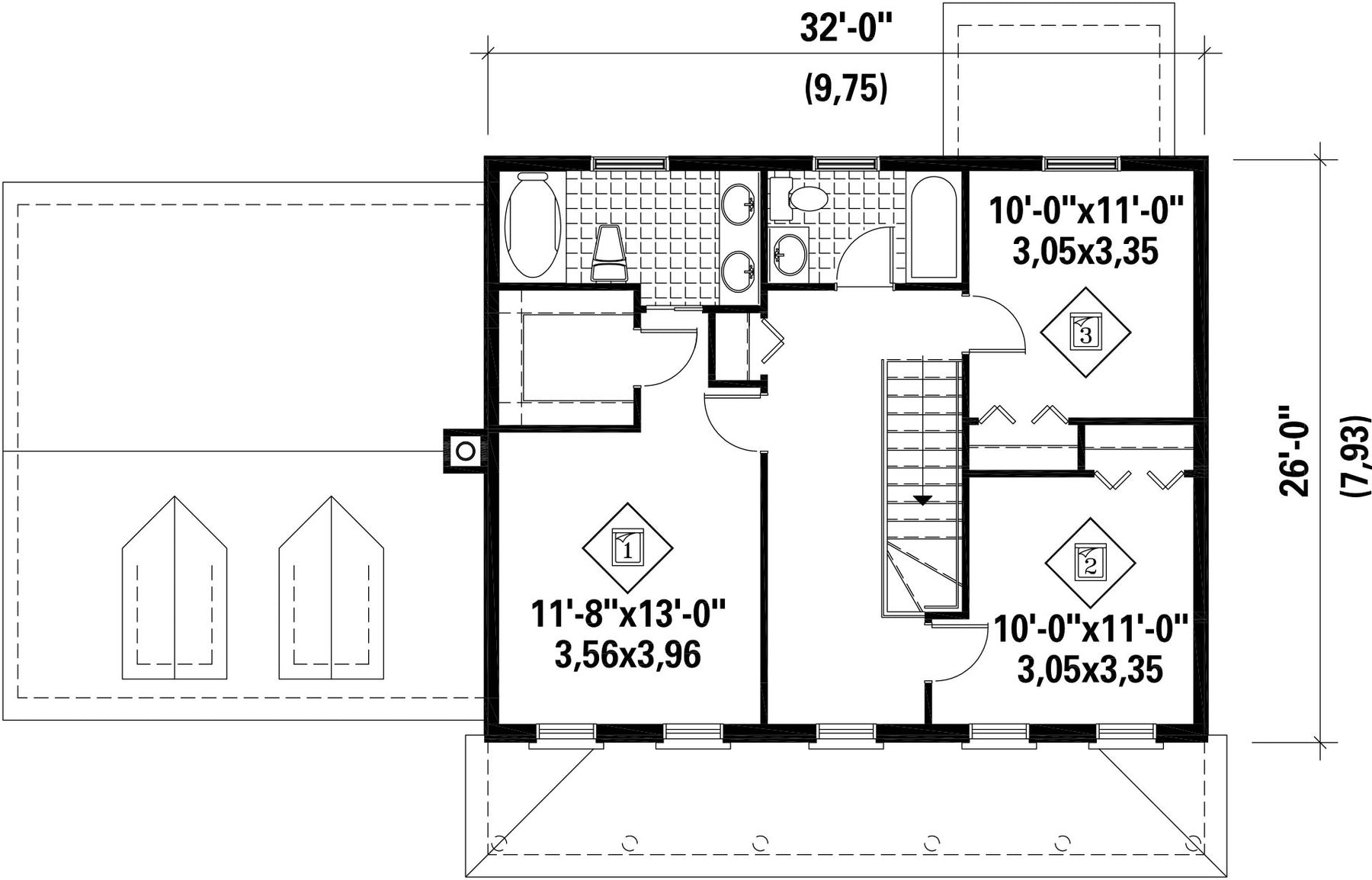
L’étage occupe une superficie de 832 pieds carrés et comprend trois chambres, dont une chambre principale disposant d’une vaste penderie et d’une salle de bains privée.
Le rez-de-chaussée de 886 pieds carrés comprend une cuisine avec coin repas, une salle à manger, un salon avec foyer, une salle d’eau avec espace pour une laveuse et une sécheuse, ainsi qu’un garage double de 462 pieds carrés.
L’étage occupe une superficie de 832 pieds carrés et comprend trois chambres, dont une chambre principale disposant d’une vaste penderie et d’une salle de bains privée.
Caractéristiques
Mesures : Impérial| Style d'architecture | Colonial |
Coût de construction
Montant approximatif équivalent à celui d'un entrepreneur général (région de la Rive-Sud de Montréal) pour une construction clé en main sans terrain ni infrastructures.
|
384478 $ |
|---|---|---|---|
| Façade | 53 pi | Surface habitable totale | 1718 pi² |
| Profondeur | 32 pi | Nombre de salles de bain | 2 |
| Hauteur | 34 pi 6 po | Nombre de chambres | 3 |
| Chambre des maîtres | Bain podium + Lavabo double + Penderie + Toilettes | Chambre des maîtres - commentaires | SALLE DE BAIN PRIVÉE ATTENANTE À LA CHAMBRE PRINCIPALE |
| Surface rez-de-chaussée | 886 pi² | Finition extérieure | Aluminium + Brique |
| Surface étage | 832 pi² | Type de cuisine | Coin repas + Laboratoire + Salle à manger |
| Surface garage | 462 pi² | Garage | 2 |
| Mur garage | 8 pi | Mur rez-de-chaussée | 9 pi |
| Mur étage | 8 pi | Inclinaison toit avant/arrière | 12/12 |
| Style d'architecture | Colonial |
|---|---|
|
Coût de construction
Montant approximatif équivalent à celui d'un entrepreneur général (région de la Rive-Sud de Montréal) pour une construction clé en main sans terrain ni infrastructures.
|
384478 $ |
| Façade | 53 pi |
| Surface habitable totale | 1718 pi² |
| Profondeur | 32 pi |
| Nombre de salles de bain | 2 |
| Hauteur | 34 pi 6 po |
| Nombre de chambres | 3 |
| Chambre des maîtres | Bain podium + Lavabo double + Penderie + Toilettes |
| Chambre des maîtres - commentaires | SALLE DE BAIN PRIVÉE ATTENANTE À LA CHAMBRE PRINCIPALE |
| Surface rez-de-chaussée | 886 pi² |
| Finition extérieure | Aluminium + Brique |
| Surface étage | 832 pi² |
| Type de cuisine | Coin repas + Laboratoire + Salle à manger |
| Surface garage | 462 pi² |
| Garage | 2 |
| Mur garage | 8 pi |
| Mur rez-de-chaussée | 9 pi |
| Mur étage | 8 pi |
| Inclinaison toit avant/arrière | 12/12 |