20003
20003
20003
20003
20003
20003
20003
20003

Jeux de plans - Sets of plans
Prix régulier$2,440.00
/

Ce site est protégé par hCaptcha, et la Politique de confidentialité et les Conditions de service de hCaptcha s’appliquent.

Description

"Mezzanine / coin lecture à l'étage Sous-sol aménagé Plafond du rez-de-chaussée à 9'-2"""

Caractéristiques

Mesures : Impérial

Style d'architecture Colonial Coût de construction 
Montant approximatif équivalent à celui d'un entrepreneur général (région de la Rive-Sud de Montréal) pour une construction clé en main sans terrain ni infrastructures.
728335 $
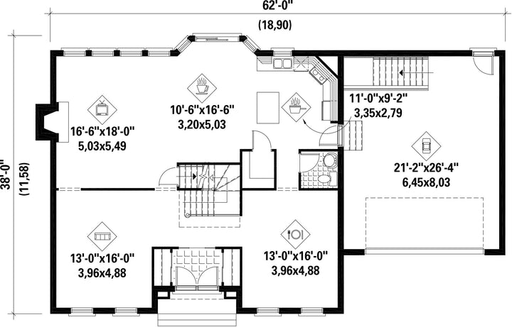
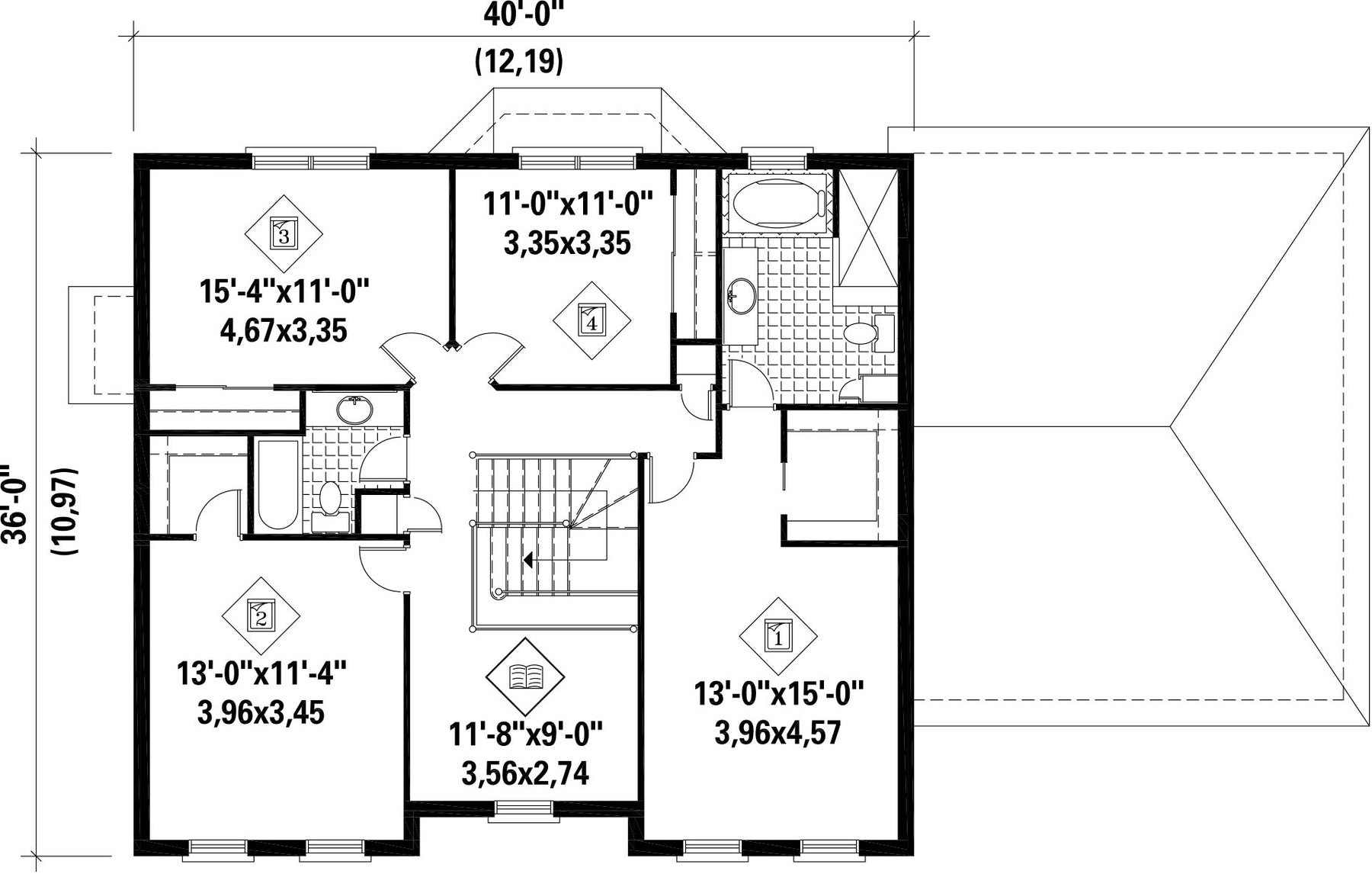
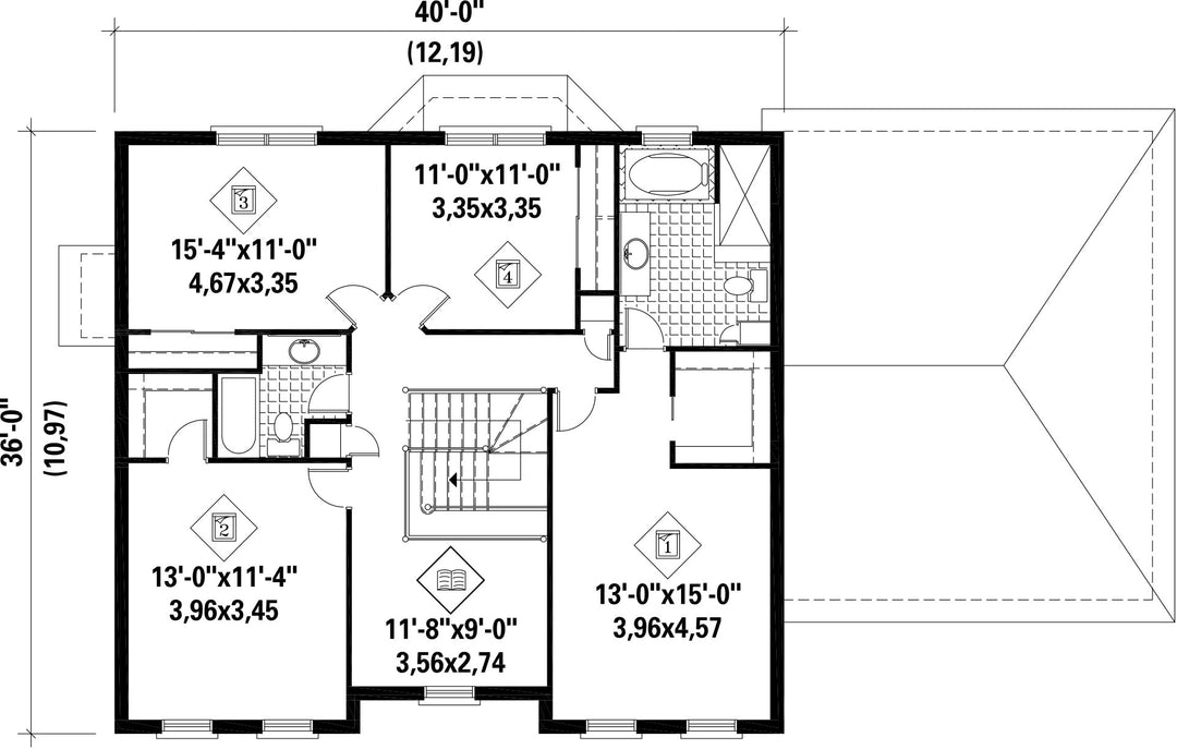
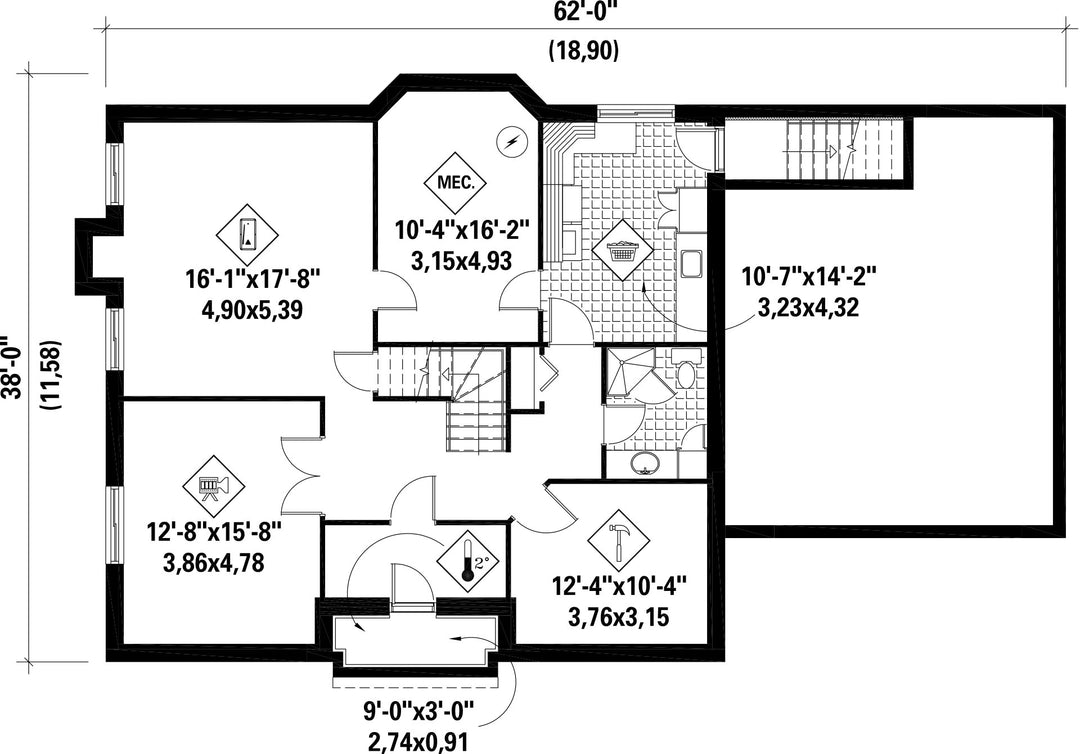
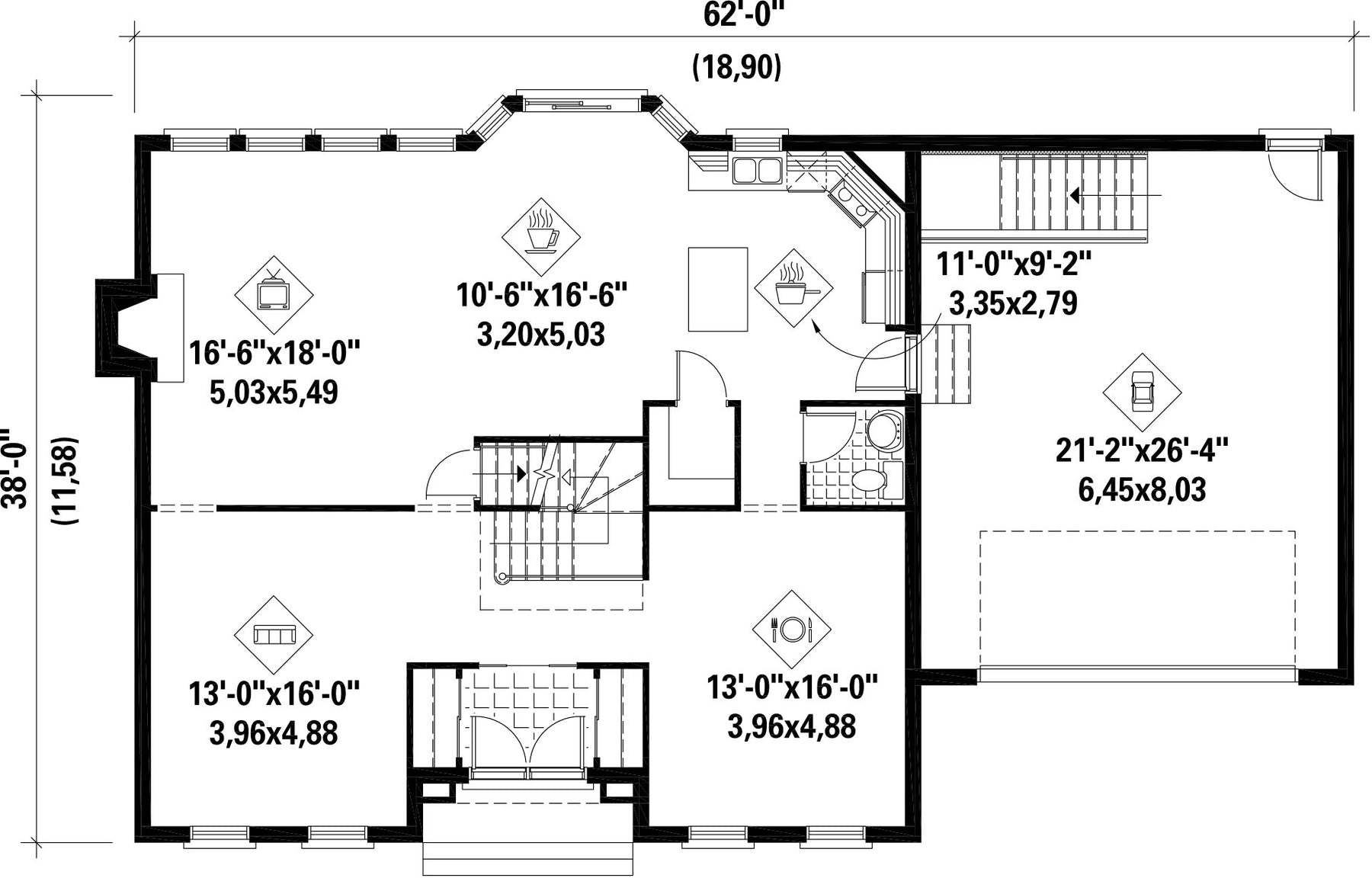
Façade 62 pi Surface habitable totale 4273 pi²
Profondeur 38 piNombre de salles de bain 3
Hauteur 33 pi 7 poNombre de chambres 4
Chambre des maîtres Bain podium + Douche + Lavabo simple + Penderie + Toilettes Chambre des maîtres - commentaires Grande douche
Surface rez-de-chaussée 1427 pi² Finition extérieure Pierre
Surface étage 1419 pi² Type de cuisine Coin repas + Forme en L + Salle à manger + Îlot
Surface garage 616 pi² Garage 2
Mur garage 8 piMur rez-de-chaussée 9 pi
Mur étage 8 piInclinaison toit avant/arrière 8/12
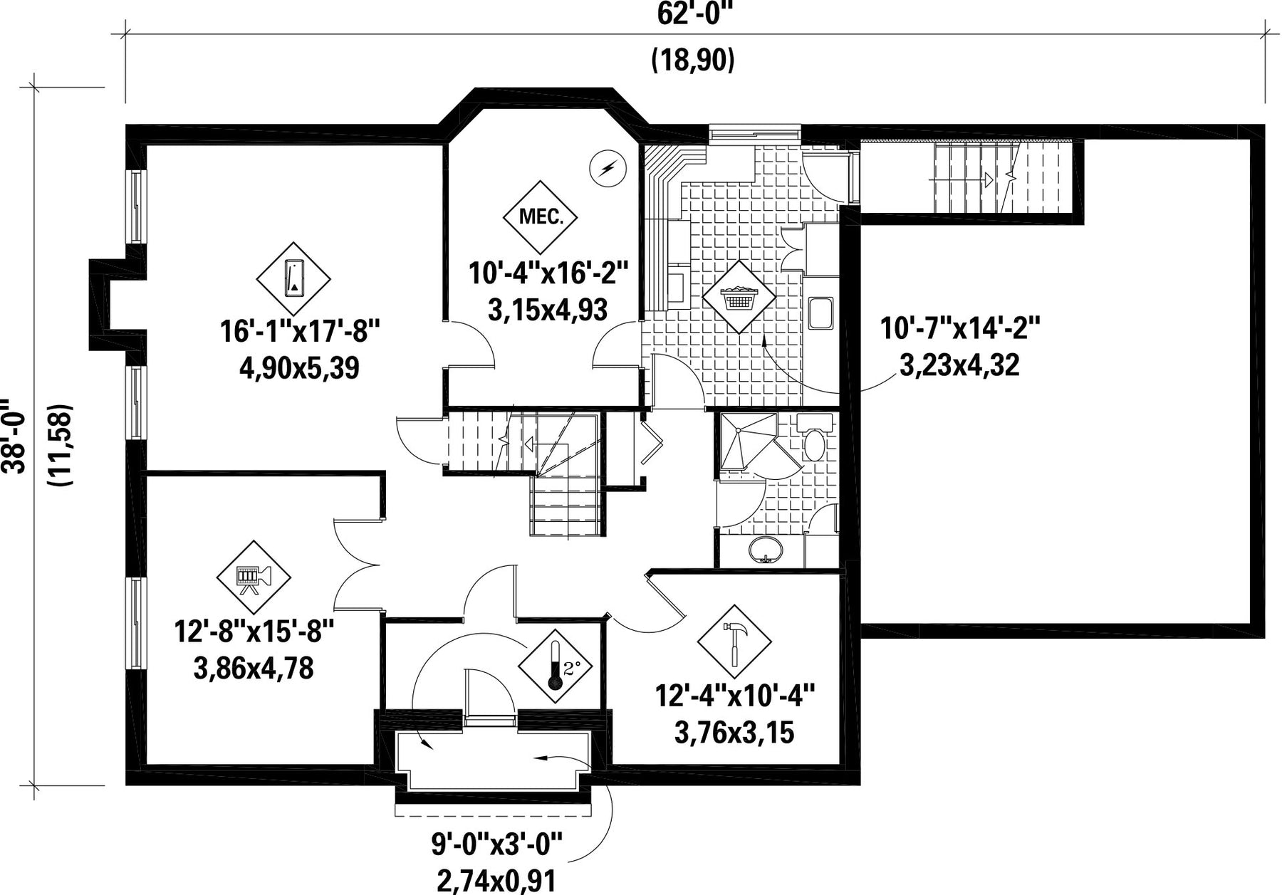
Inclinaison toit gauche/droite 12/12Surface sous-sol 1427 pi²
Style d'architecture Colonial
Coût de construction 
Montant approximatif équivalent à celui d'un entrepreneur général (région de la Rive-Sud de Montréal) pour une construction clé en main sans terrain ni infrastructures.
728335 $
Façade 62 pi
Surface habitable totale 4273 pi²
Profondeur 38 pi
Nombre de salles de bain 3
Hauteur 33 pi 7 po
Nombre de chambres 4
Chambre des maîtres Bain podium + Douche + Lavabo simple + Penderie + Toilettes
Chambre des maîtres - commentaires Grande douche
Surface rez-de-chaussée 1427 pi²
Finition extérieure Pierre
Surface étage 1419 pi²
Type de cuisine Coin repas + Forme en L + Salle à manger + Îlot
Surface garage 616 pi²
Garage 2
Mur garage 8 pi
Mur rez-de-chaussée 9 pi
Mur étage 8 pi
Inclinaison toit avant/arrière 8/12
Inclinaison toit gauche/droite 12/12
Surface sous-sol 1427 pi²

Ces plans de maison pourraient également vous intéresser


Vu récemment