Description
Pour profiter du grand air, quoi de mieux que ce chalet d’allure très contemporaine aménagé avec une grande terrasse. La maison mesure 22 pieds de largeur sur 32 pieds de profondeur, et offre une surface habitable de 1 080 pieds carrés.
Le rez-de-chaussée, qui fait 638 pieds carrés, est à aire ouverte et on y retrouve un salon avec un foyer, une salle à manger, une cuisine avec îlot et comptoir repas, ainsi qu’une salle d’eau avec espace pour la laveuse et la sécheuse.
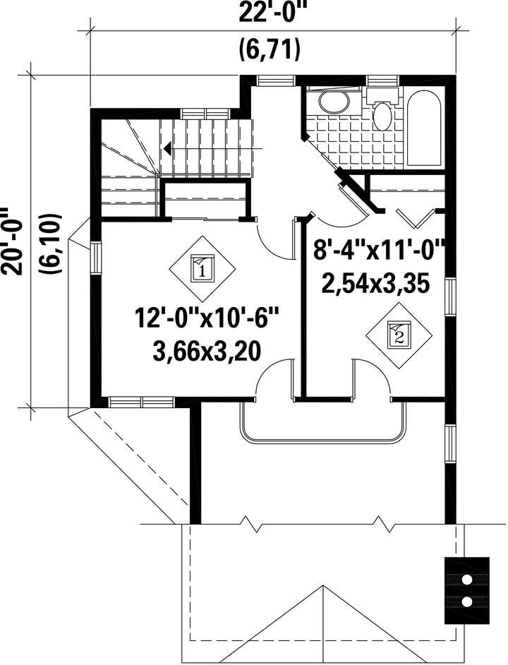
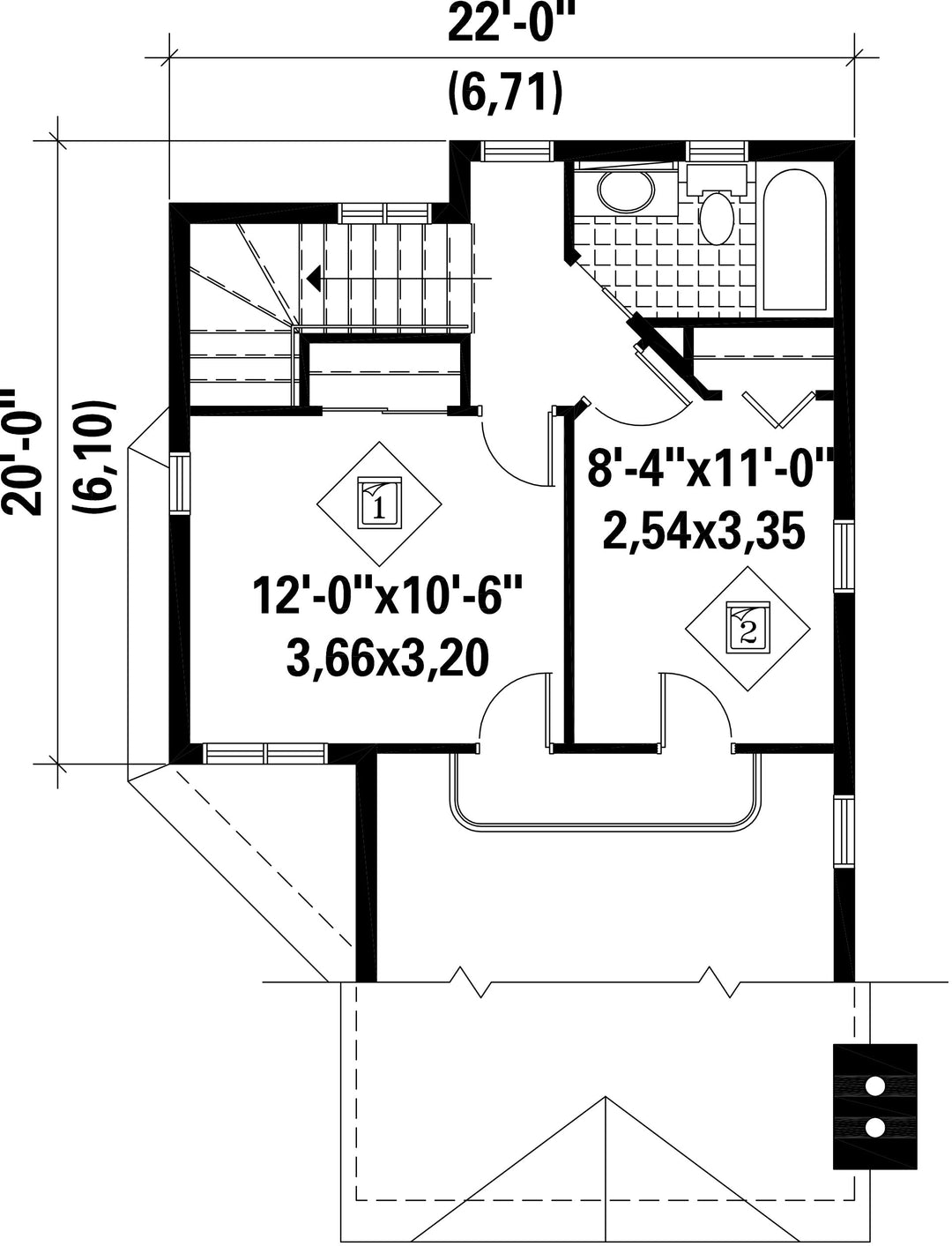
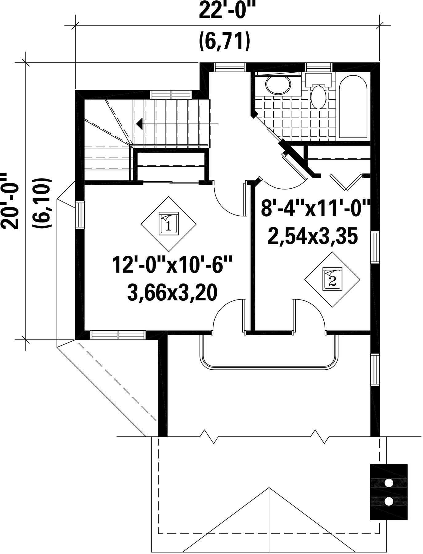
L’étage de 442 pieds carré comprend une salle de bains et deux chambres.
Le rez-de-chaussée, qui fait 638 pieds carrés, est à aire ouverte et on y retrouve un salon avec un foyer, une salle à manger, une cuisine avec îlot et comptoir repas, ainsi qu’une salle d’eau avec espace pour la laveuse et la sécheuse.
L’étage de 442 pieds carré comprend une salle de bains et deux chambres.
Caractéristiques
Mesures : Impérial| Style d'architecture | Champêtre |
Coût de construction
Montant approximatif équivalent à celui d'un entrepreneur général (région de la Rive-Sud de Montréal) pour une construction clé en main sans terrain ni infrastructures.
|
220141 $ |
|---|---|---|---|
| Façade | 22 pi | Surface habitable totale | 1080 pi² |
| Profondeur | 32 pi | Nombre de salles de bain | 1 |
| Hauteur | 34 pi 6 po | Nombre de chambres | 2 |
| Chambre des maîtres - commentaires | VUE SUR LE BAS | ||
| Surface rez-de-chaussée | 638 pi² | ||
| Surface étage | 442 pi² | Type de cuisine | Comptoir repas + Forme en L + Salle à manger + Îlot |
| Garage | 0 | ||
| Mur rez-de-chaussée | 8 pi | ||
| Mur étage | 8 pi | Inclinaison toit avant/arrière | 8/12 |
| Style d'architecture | Champêtre |
|---|---|
|
Coût de construction
Montant approximatif équivalent à celui d'un entrepreneur général (région de la Rive-Sud de Montréal) pour une construction clé en main sans terrain ni infrastructures.
|
220141 $ |
| Façade | 22 pi |
| Surface habitable totale | 1080 pi² |
| Profondeur | 32 pi |
| Nombre de salles de bain | 1 |
| Hauteur | 34 pi 6 po |
| Nombre de chambres | 2 |
| Chambre des maîtres - commentaires | VUE SUR LE BAS |
| Surface rez-de-chaussée | 638 pi² |
| Surface étage | 442 pi² |
| Type de cuisine | Comptoir repas + Forme en L + Salle à manger + Îlot |
| Garage | 0 |
| Mur rez-de-chaussée | 8 pi |
| Mur étage | 8 pi |
| Inclinaison toit avant/arrière | 8/12 |