00604F
00604F
00604F

Ce plan est offert en plusieurs variations. Vous pouvez consulter les variations en choissant un numéro de plan dans le menu ci-dessous. Les plans techniques dans les images ainsi que le tableau des caractéristiques et dimensions se mettront automatiquement à jour.


Jeux de plans - Sets of plans
Prix régulier$1,240.00
/

Ce site est protégé par hCaptcha, et la Politique de confidentialité et les Conditions de service de hCaptcha s’appliquent.

Description

Niveau de plancher abaissé au salon

Caractéristiques

Mesures : Impérial

Style d'architecture Champêtre Coût de construction 
Montant approximatif équivalent à celui d'un entrepreneur général (région de la Rive-Sud de Montréal) pour une construction clé en main sans terrain ni infrastructures.
277200 $
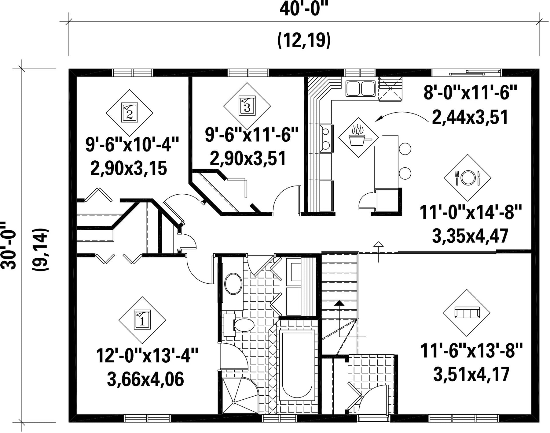
Façade 40 pi Surface habitable totale 1200 pi²
Profondeur 30 piNombre de salles de bain 1
Hauteur 17 piNombre de chambres 3
Chambre des maîtres Penderie Chambre des maîtres - commentaires ACCÈS DIRECT À LA SALLE DE BAIN
Surface rez-de-chaussée 1200 pi² Finition extérieure Aluminium
Type de cuisine Forme en U + Salle à manger
Garage 0
Mur rez-de-chaussée 8 pi
Inclinaison toit avant/arrière 5/12
Style d'architecture Champêtre
Coût de construction 
Montant approximatif équivalent à celui d'un entrepreneur général (région de la Rive-Sud de Montréal) pour une construction clé en main sans terrain ni infrastructures.
277200 $
Façade 40 pi
Surface habitable totale 1200 pi²
Profondeur 30 pi
Nombre de salles de bain 1
Hauteur 17 pi
Nombre de chambres 3
Chambre des maîtres Penderie
Chambre des maîtres - commentaires ACCÈS DIRECT À LA SALLE DE BAIN
Surface rez-de-chaussée 1200 pi²
Finition extérieure Aluminium
Type de cuisine Forme en U + Salle à manger
Garage 0
Mur rez-de-chaussée 8 pi
Inclinaison toit avant/arrière 5/12

Ces plans de maison pourraient également vous intéresser


Vu récemment