Description
Synonyme de détente et de confort, ce chalet moderne au toit pentu et à la fenestration abondante est idéal pour admirer la nature environnante. Il mesure 26 pieds de largeur sur 28 pieds de profondeur et offre une surface habitable de 1 376 pieds carrés. Le revêtement extérieur vertical est présent sur les quatre façades.
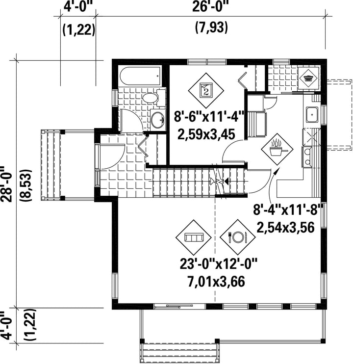
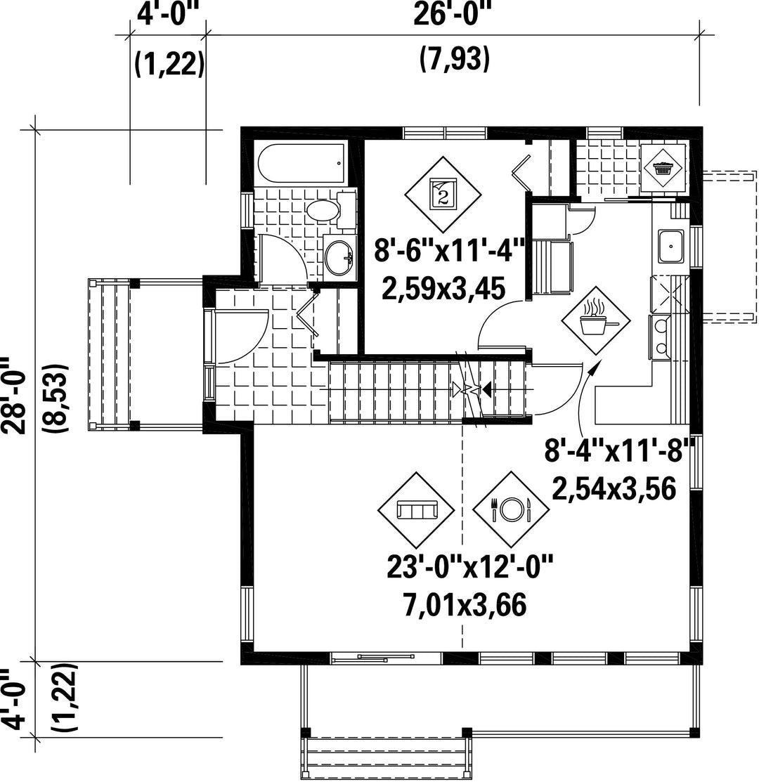
Au rez-de-chaussée, dont la surface habitable s'élève à 688 pieds carrés, on retrouve un petit vestibule, une salle de bains, une chambre, une cuisine, ainsi qu’une salle à manger et un salon convivial à aire ouverte. Une large porte-fenêtre donne accès au jardin.
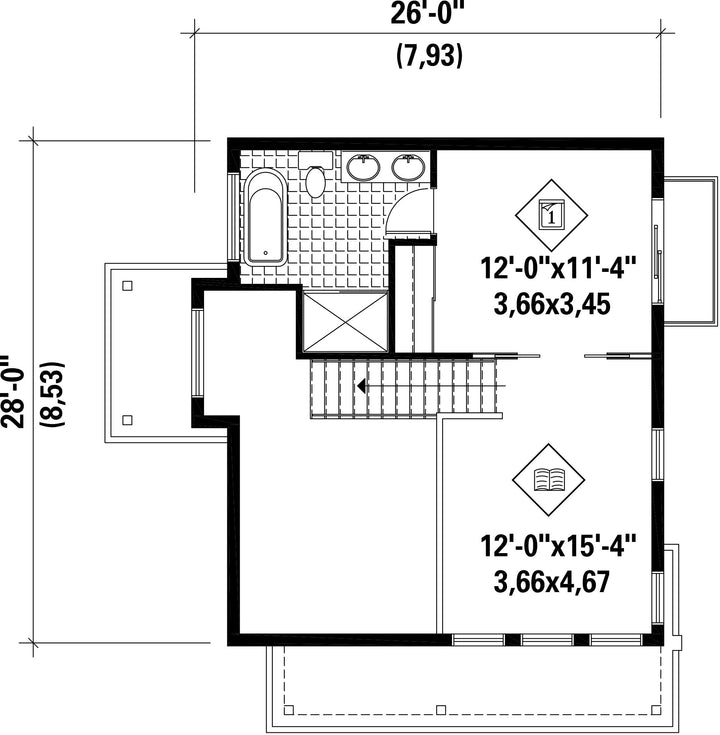
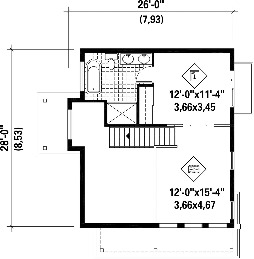
L'étage de 688 pieds carrés abrite un espace qui peut être utilisé pour la lecture ou le bricolage, ainsi qu’une chambre des maitres avec salle de bains privée et une double porte escamotable.
Au rez-de-chaussée, dont la surface habitable s'élève à 688 pieds carrés, on retrouve un petit vestibule, une salle de bains, une chambre, une cuisine, ainsi qu’une salle à manger et un salon convivial à aire ouverte. Une large porte-fenêtre donne accès au jardin.
L'étage de 688 pieds carrés abrite un espace qui peut être utilisé pour la lecture ou le bricolage, ainsi qu’une chambre des maitres avec salle de bains privée et une double porte escamotable.
Caractéristiques
Mesures : Impérial| Style d'architecture | Urbain |
Coût de construction
Montant approximatif équivalent à celui d'un entrepreneur général (région de la Rive-Sud de Montréal) pour une construction clé en main sans terrain ni infrastructures.
|
248436 $ |
|---|---|---|---|
| Façade | 26 pi | Surface habitable totale | 1165 pi² |
| Profondeur | 28 pi | Nombre de salles de bain | 2 |
| Hauteur | 29 pi 5 po | Nombre de chambres | 2 |
| Chambre des maîtres | Baignoire + Douche + Lavabo double + Portes doubles + Toilettes | Chambre des maîtres - commentaires | Chambre des maîtres avec salle de bain privée et double porte escamotable |
| Surface rez-de-chaussée | 688 pi² | Finition extérieure | Aluminium |
| Surface étage | 477 pi² | Type de cuisine | Forme en L + Laboratoire |
| Garage | 0 | ||
| Mur rez-de-chaussée | 8 pi | ||
| Mur étage | 10 pi | Inclinaison toit avant/arrière | 0 |
| Inclinaison toit gauche/droite | 4/12 |
| Style d'architecture | Urbain |
|---|---|
|
Coût de construction
Montant approximatif équivalent à celui d'un entrepreneur général (région de la Rive-Sud de Montréal) pour une construction clé en main sans terrain ni infrastructures.
|
248436 $ |
| Façade | 26 pi |
| Surface habitable totale | 1165 pi² |
| Profondeur | 28 pi |
| Nombre de salles de bain | 2 |
| Hauteur | 29 pi 5 po |
| Nombre de chambres | 2 |
| Chambre des maîtres | Baignoire + Douche + Lavabo double + Portes doubles + Toilettes |
| Chambre des maîtres - commentaires | Chambre des maîtres avec salle de bain privée et double porte escamotable |
| Surface rez-de-chaussée | 688 pi² |
| Finition extérieure | Aluminium |
| Surface étage | 477 pi² |
| Type de cuisine | Forme en L + Laboratoire |
| Garage | 0 |
| Mur rez-de-chaussée | 8 pi |
| Mur étage | 10 pi |
| Inclinaison toit avant/arrière | 0 |
| Inclinaison toit gauche/droite | 4/12 |