Description
Cette prestigieuse résidence possède des pièces de bonne dimension et une fenestration des plus abondantes. Elle mesure 50 pieds de largeur sur 38 pieds de profondeur et offre une surface habitable de 4 662 pieds carrés.
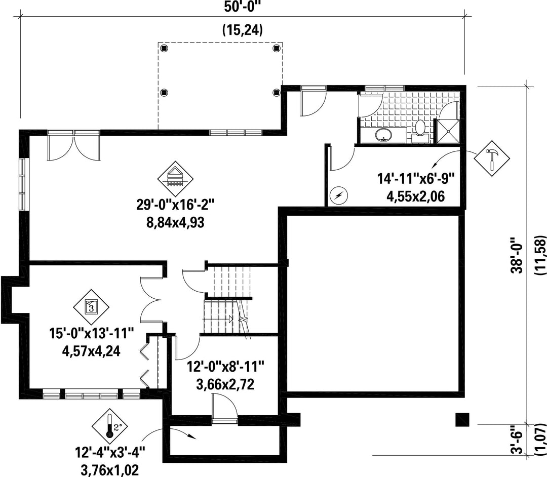
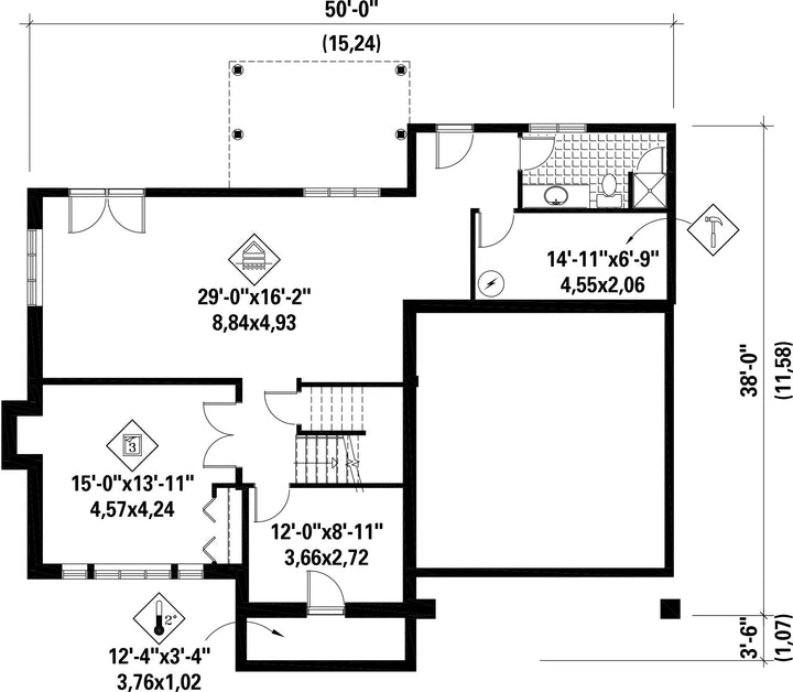
Avec 1 235 pieds carrés de surface habitable, le sous-sol comporte une salle de bains, un atelier, une chambre froide, une chambre et deux autres pièces qui peuvent servir de studio ou d’atelier.
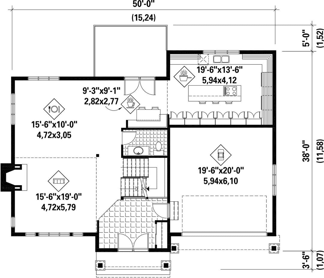
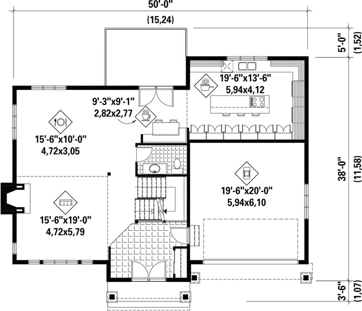
Le rez-de-chaussée couvre également 1 235 pieds carrés et compte une vaste cuisine avec de grandes surfaces de travail et un coin-repas, une salle à manger, une salle d’eau, ainsi qu’un salon avec foyer. Le garage, qui occupe une surface de 410 pieds carrés, peut loger deux voitures et donne accès au vestibule.
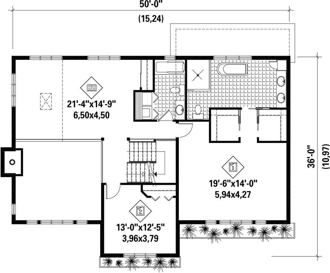
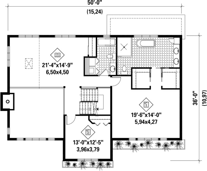
L’étage, dont la superficie est de 1 348 pieds carrés, comprend un coin lecture, une salle de bains familiale, ainsi que deux chambres, dont une grande chambre principale située au-dessus du garage avec une salle de bains privée et deux penderies.
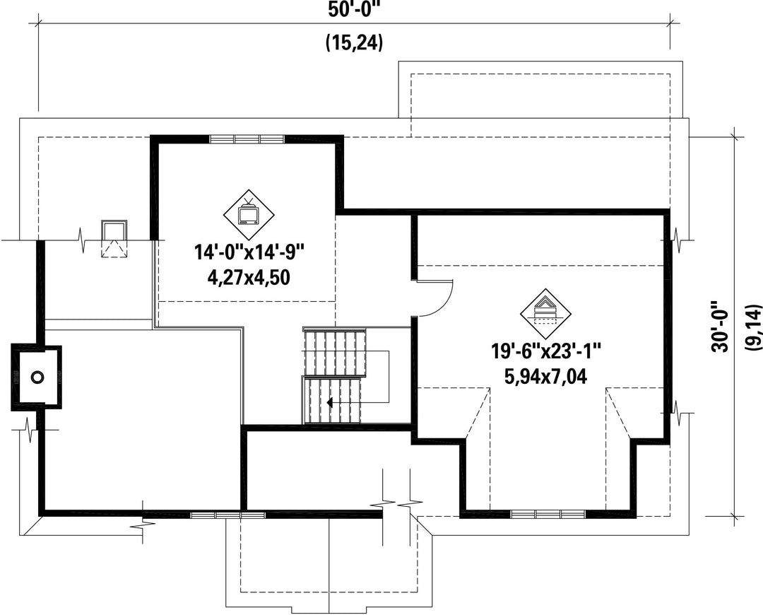
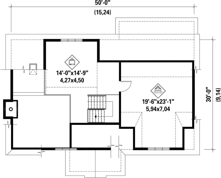
Le loft occupe 844 pieds carrés et abrite une salle familiale ainsi qu’une pièce pouvant servir d’atelier.
Avec 1 235 pieds carrés de surface habitable, le sous-sol comporte une salle de bains, un atelier, une chambre froide, une chambre et deux autres pièces qui peuvent servir de studio ou d’atelier.
Le rez-de-chaussée couvre également 1 235 pieds carrés et compte une vaste cuisine avec de grandes surfaces de travail et un coin-repas, une salle à manger, une salle d’eau, ainsi qu’un salon avec foyer. Le garage, qui occupe une surface de 410 pieds carrés, peut loger deux voitures et donne accès au vestibule.
L’étage, dont la superficie est de 1 348 pieds carrés, comprend un coin lecture, une salle de bains familiale, ainsi que deux chambres, dont une grande chambre principale située au-dessus du garage avec une salle de bains privée et deux penderies.
Le loft occupe 844 pieds carrés et abrite une salle familiale ainsi qu’une pièce pouvant servir d’atelier.
Caractéristiques
Mesures : Impérial| Style d'architecture | Champêtre |
Coût de construction
Montant approximatif équivalent à celui d'un entrepreneur général (région de la Rive-Sud de Montréal) pour une construction clé en main sans terrain ni infrastructures.
|
698758 $ |
|---|---|---|---|
| Façade | 50 pi | Surface habitable totale | 4662 pi² |
| Profondeur | 38 pi | Nombre de salles de bain | 3 |
| Hauteur | 39 pi 5 po | Nombre de chambres | 3 |
| Chambre des maîtres | Bain podium + Douche + Lavabo double + Penderie + Toilettes | Chambre des maîtres - commentaires | Grande chambre des maîtres avec deux penderies |
| Surface rez-de-chaussée | 1235 pi² | Finition extérieure | Aluminium + Bardeau de cèdre + Brique |
| Surface étage | 1348 pi² | Type de cuisine | Coin repas + Comptoir repas + Forme en U + Îlot |
| Surface garage | 410 pi² | Garage | 2 |
| Mur garage | 8 pi | Mur rez-de-chaussée | 8 pi |
| Mur étage | 8 pi | Inclinaison toit avant/arrière | 11/12 |
| Surface sous-sol | 1235 pi² |
| Style d'architecture | Champêtre |
|---|---|
|
Coût de construction
Montant approximatif équivalent à celui d'un entrepreneur général (région de la Rive-Sud de Montréal) pour une construction clé en main sans terrain ni infrastructures.
|
698758 $ |
| Façade | 50 pi |
| Surface habitable totale | 4662 pi² |
| Profondeur | 38 pi |
| Nombre de salles de bain | 3 |
| Hauteur | 39 pi 5 po |
| Nombre de chambres | 3 |
| Chambre des maîtres | Bain podium + Douche + Lavabo double + Penderie + Toilettes |
| Chambre des maîtres - commentaires | Grande chambre des maîtres avec deux penderies |
| Surface rez-de-chaussée | 1235 pi² |
| Finition extérieure | Aluminium + Bardeau de cèdre + Brique |
| Surface étage | 1348 pi² |
| Type de cuisine | Coin repas + Comptoir repas + Forme en U + Îlot |
| Surface garage | 410 pi² |
| Garage | 2 |
| Mur garage | 8 pi |
| Mur rez-de-chaussée | 8 pi |
| Mur étage | 8 pi |
| Inclinaison toit avant/arrière | 11/12 |
| Surface sous-sol | 1235 pi² |