Description
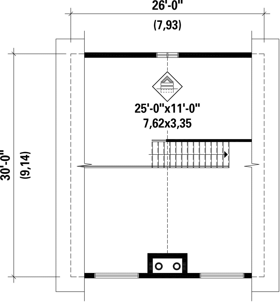
Ce magnifique chalet de 26 pieds de largeur sur 30 pieds de profondeur sera parfait près de l'eau ou entouré de montagnes. Il possède une superficie habitable de 1 906 pieds carrés.
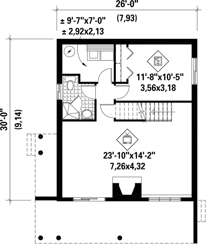
Le sous-sol, qui fait 780 pieds carrés, comprend une vaste salle familiale avec foyer, une chambre, une salle de bains et une salle de lavage.
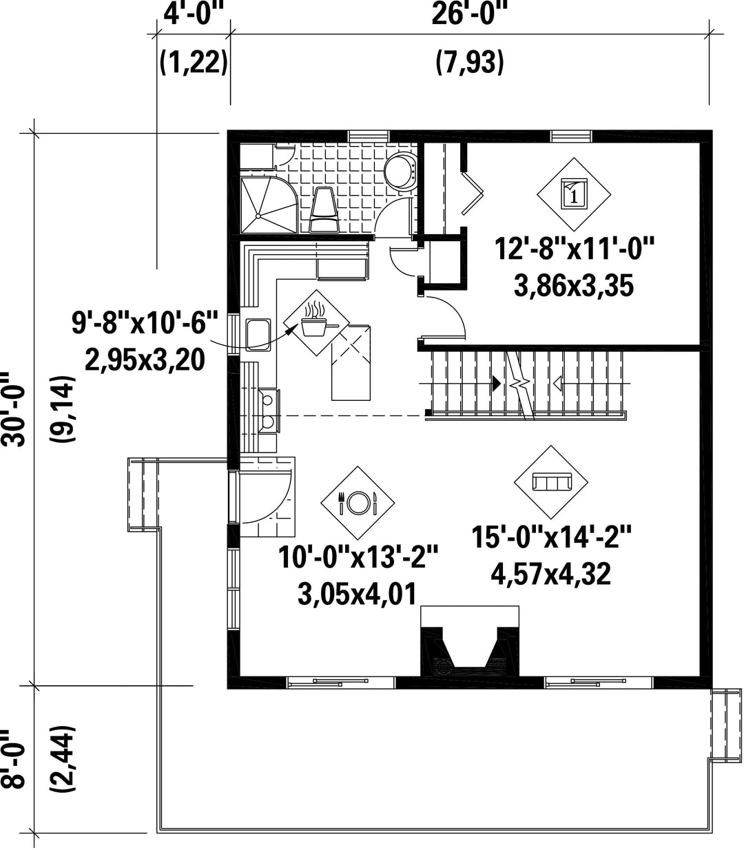
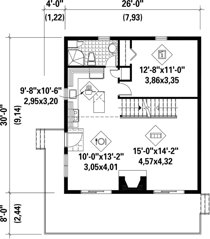
Le rez-de-chaussée de 780 pieds carrés inclut une pièce à aire ouverte donnant sur la terrasse arrière et où se trouvent la salle à manger et le salon avec foyer à deux faces au centre, une cuisine avec ilot, une salle de bains et une chambre des maitres.
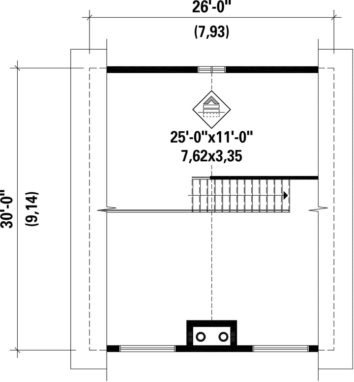
La mezzanine de 346 pieds carrés est une pièce versatile qui peut servir à la fois de chambre, de pièce de lecture ou de salle familiale.
Le sous-sol, qui fait 780 pieds carrés, comprend une vaste salle familiale avec foyer, une chambre, une salle de bains et une salle de lavage.
Le rez-de-chaussée de 780 pieds carrés inclut une pièce à aire ouverte donnant sur la terrasse arrière et où se trouvent la salle à manger et le salon avec foyer à deux faces au centre, une cuisine avec ilot, une salle de bains et une chambre des maitres.
La mezzanine de 346 pieds carrés est une pièce versatile qui peut servir à la fois de chambre, de pièce de lecture ou de salle familiale.
Caractéristiques
Mesures : Impérial| Style d'architecture | Suisse |
Coût de construction
Montant approximatif équivalent à celui d'un entrepreneur général (région de la Rive-Sud de Montréal) pour une construction clé en main sans terrain ni infrastructures.
|
295596 $ |
|---|---|---|---|
| Façade | 26 pi | Surface habitable totale | 1906 pi² |
| Profondeur | 30 pi | Nombre de salles de bain | 2 |
| Hauteur | 35 pi 8 po | Nombre de chambres | 2 |
| Chambre des maîtres - commentaires | Chambre principale au rez-de-chausée | ||
| Surface rez-de-chaussée | 780 pi² | Finition extérieure | Aluminium + Brique |
| Surface étage | 346 pi² | Type de cuisine | Forme en L + Îlot |
| Garage | 0 | ||
| Mur rez-de-chaussée | 8 pi | ||
| Mur étage | 8 pi | ||
| Inclinaison toit gauche/droite | 12/12 | Surface sous-sol | 780 pi² |
| Style d'architecture | Suisse |
|---|---|
|
Coût de construction
Montant approximatif équivalent à celui d'un entrepreneur général (région de la Rive-Sud de Montréal) pour une construction clé en main sans terrain ni infrastructures.
|
295596 $ |
| Façade | 26 pi |
| Surface habitable totale | 1906 pi² |
| Profondeur | 30 pi |
| Nombre de salles de bain | 2 |
| Hauteur | 35 pi 8 po |
| Nombre de chambres | 2 |
| Chambre des maîtres - commentaires | Chambre principale au rez-de-chausée |
| Surface rez-de-chaussée | 780 pi² |
| Finition extérieure | Aluminium + Brique |
| Surface étage | 346 pi² |
| Type de cuisine | Forme en L + Îlot |
| Garage | 0 |
| Mur rez-de-chaussée | 8 pi |
| Mur étage | 8 pi |
| Inclinaison toit gauche/droite | 12/12 |
| Surface sous-sol | 780 pi² |