20794
20794
20794
20794
20794
20794

Jeux de plans - Sets of plans
Prix régulier$1,188.00
/

Ce site est protégé par hCaptcha, et la Politique de confidentialité et les Conditions de service de hCaptcha s’appliquent.

Description

"Chambres de grandes dimensions Coin-repas Grande penderie avec lucarne dans la chambre principale Descente au sous-sol par le garage Salle de lavage au rez-de-chaussée"

Caractéristiques

Mesures : Impérial

Style d'architecture Cape Cod Coût de construction 
Montant approximatif équivalent à celui d'un entrepreneur général (région de la Rive-Sud de Montréal) pour une construction clé en main sans terrain ni infrastructures.
433326 $
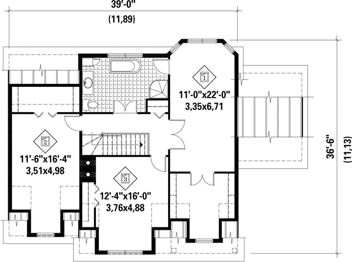
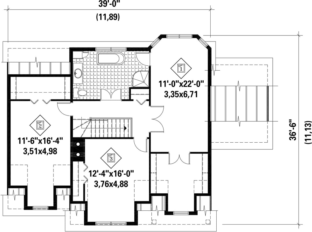
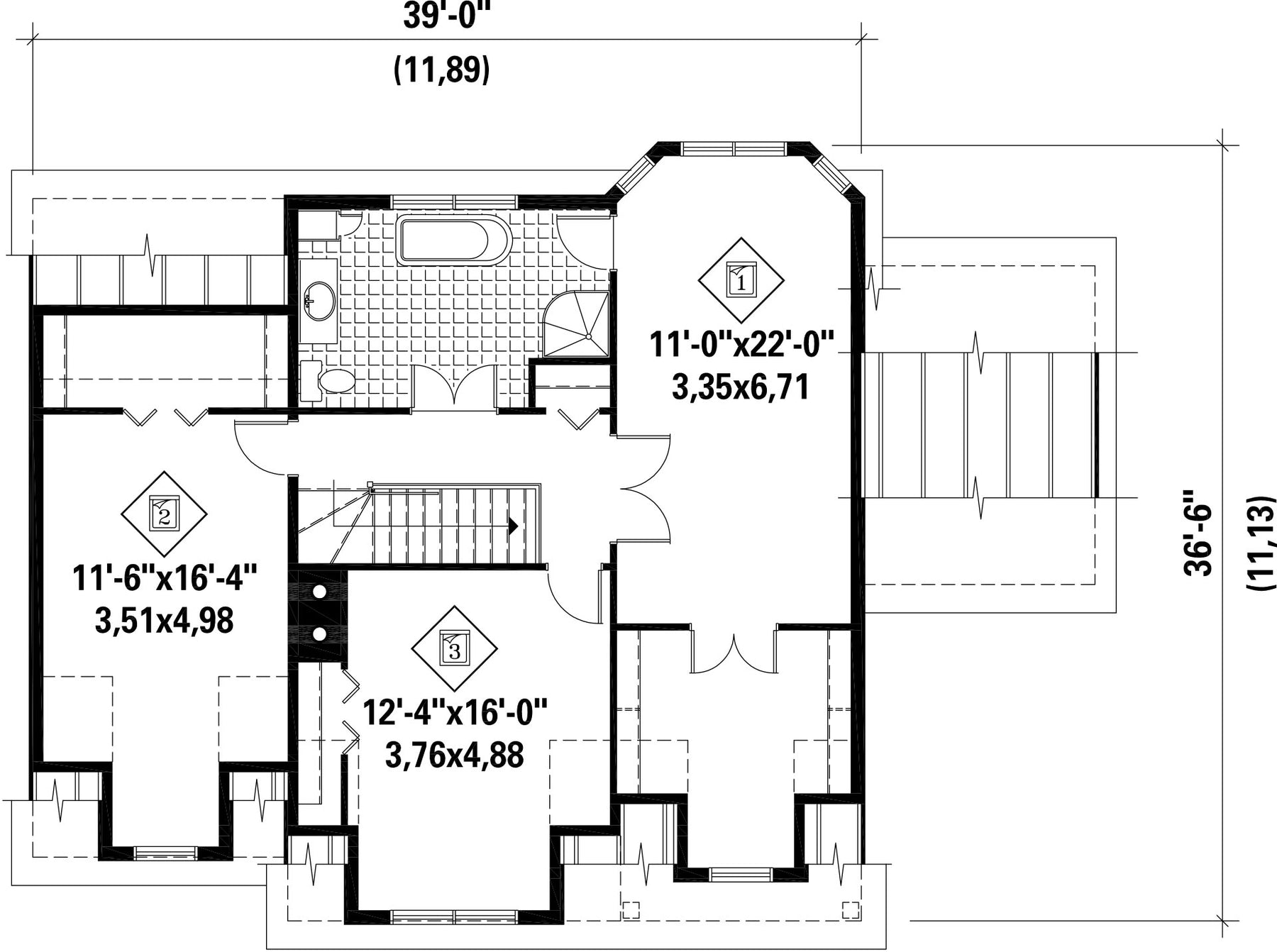
Façade 50 pi Surface habitable totale 2249 pi²
Profondeur 36 pi 6 poNombre de salles de bain 2
Hauteur 30 pi 3 poNombre de chambres 3
Chambre des maîtres Bain podium + Douche + Lavabo simple + Penderie + Portes doubles + Toilettes Chambre des maîtres - commentaires ---
Surface rez-de-chaussée 1083 pi² Finition extérieure Aluminium
Surface étage 1166 pi² Type de cuisine Comptoir repas + Salle à manger
Surface garage 334 pi² Garage 1
Mur garage 8 piMur rez-de-chaussée 8 pi
Mur étage 8 piInclinaison toit avant/arrière 12/12
Style d'architecture Cape Cod
Coût de construction 
Montant approximatif équivalent à celui d'un entrepreneur général (région de la Rive-Sud de Montréal) pour une construction clé en main sans terrain ni infrastructures.
433326 $
Façade 50 pi
Surface habitable totale 2249 pi²
Profondeur 36 pi 6 po
Nombre de salles de bain 2
Hauteur 30 pi 3 po
Nombre de chambres 3
Chambre des maîtres Bain podium + Douche + Lavabo simple + Penderie + Portes doubles + Toilettes
Chambre des maîtres - commentaires ---
Surface rez-de-chaussée 1083 pi²
Finition extérieure Aluminium
Surface étage 1166 pi²
Type de cuisine Comptoir repas + Salle à manger
Surface garage 334 pi²
Garage 1
Mur garage 8 pi
Mur rez-de-chaussée 8 pi
Mur étage 8 pi
Inclinaison toit avant/arrière 12/12

Ces plans de maison pourraient également vous intéresser


Vu récemment