Description
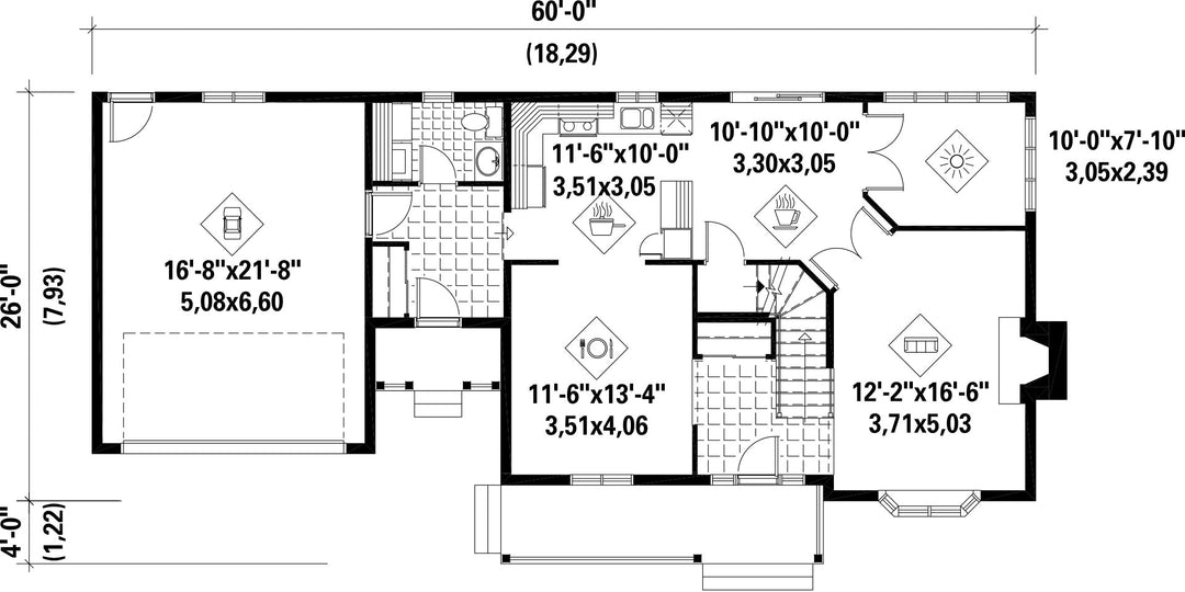
Cette magnifique demeure qui mesure 60 pieds de largeur sur 26 pieds de profondeur et offre une surface habitable de 1 751 pieds carrés, semble sortie tout droit d’une autre époque. Les lignes de sa structure générale lui donnent un air plus contemporain, mais les détails des lucarnes, l’avant-toit recourbé au-dessus du balcon de l’entrée et le petit toit courbé en cuivre au-dessus de la fenêtre en baie du salon ajoutent une touche nostalgique.
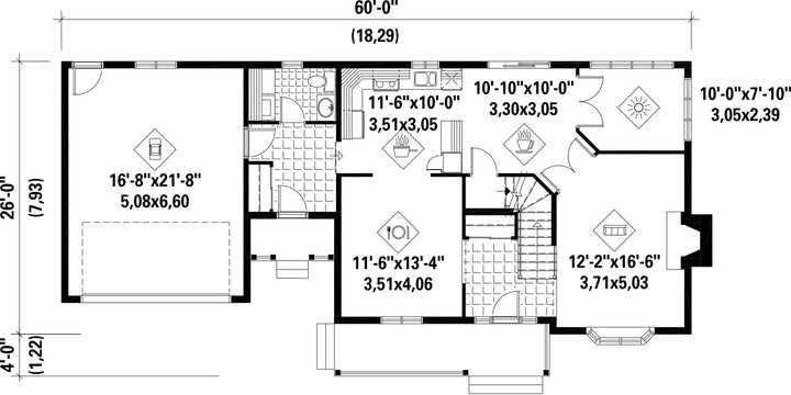
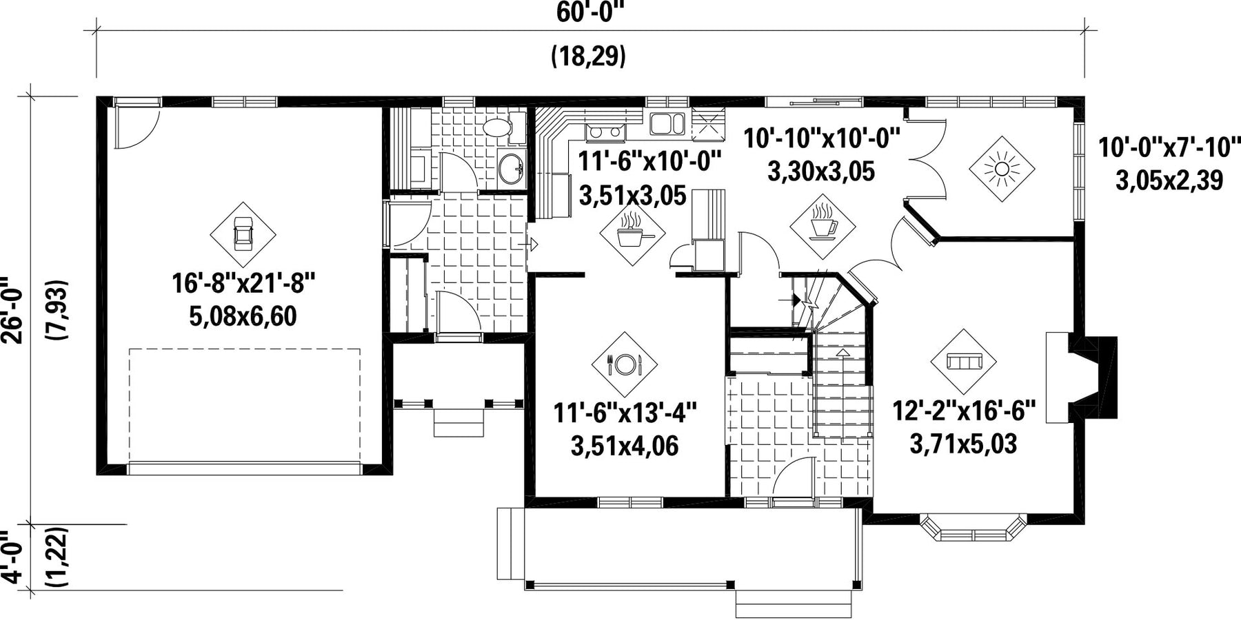
Offrant une surface habitable de 994 pieds carrés, le rez-de-chaussée compte une salle à manger, une cuisine, un coin-repas, un solarium, un salon avec foyer, une salle d’eau, ainsi qu’un garage simple de 404 pieds carrés.
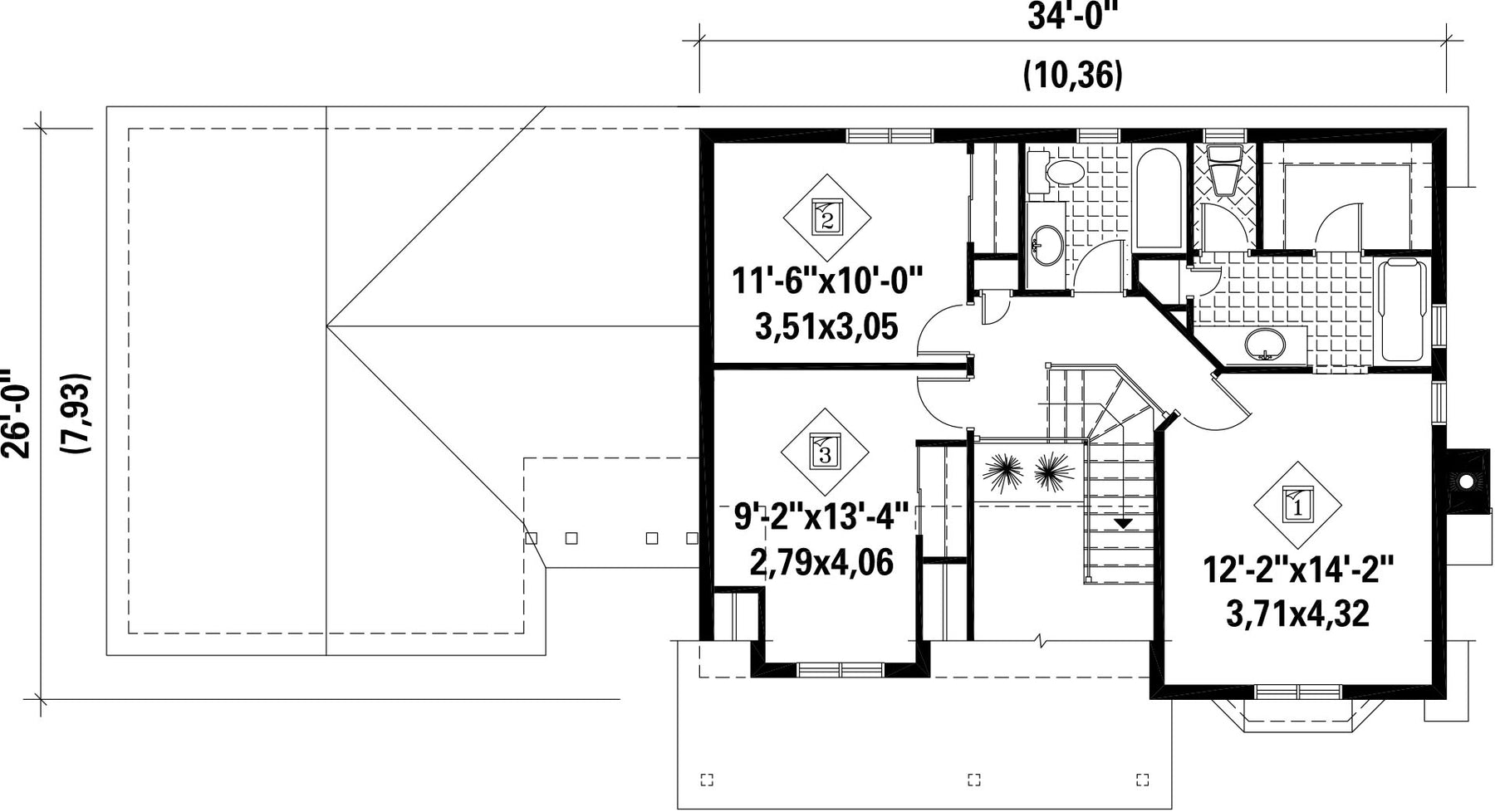
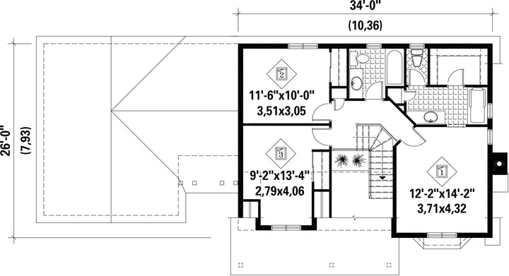
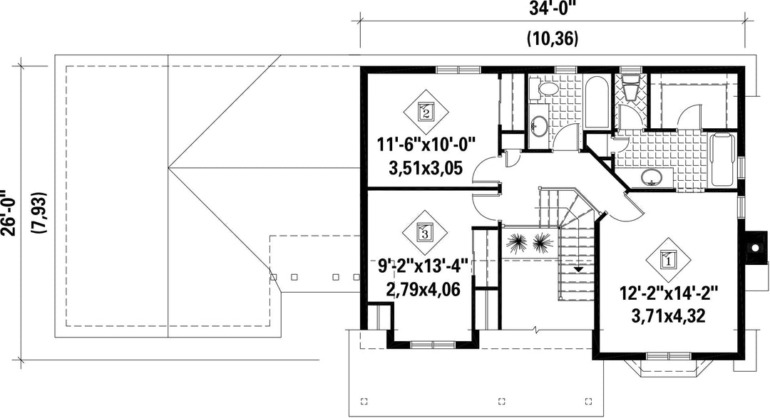
L’étage de 757 pieds carrés comprend une salle de bains familiale et trois chambres dont une chambre principale avec salle de bains privée.
Offrant une surface habitable de 994 pieds carrés, le rez-de-chaussée compte une salle à manger, une cuisine, un coin-repas, un solarium, un salon avec foyer, une salle d’eau, ainsi qu’un garage simple de 404 pieds carrés.
L’étage de 757 pieds carrés comprend une salle de bains familiale et trois chambres dont une chambre principale avec salle de bains privée.
Caractéristiques
Mesures : Impérial| Style d'architecture | Canadienne |
Coût de construction
Montant approximatif équivalent à celui d'un entrepreneur général (région de la Rive-Sud de Montréal) pour une construction clé en main sans terrain ni infrastructures.
|
371535 $ |
|---|---|---|---|
| Façade | 60 pi | Surface habitable totale | 1751 pi² |
| Profondeur | 26 pi | Nombre de salles de bain | 2 |
| Hauteur | 27 pi 9 po | Nombre de chambres | 3 |
| Chambre des maîtres | Baignoire + Lavabo simple + Penderie + Toilettes | Chambre des maîtres - commentaires | Toilette seule |
| Surface rez-de-chaussée | 994 pi² | Finition extérieure | Aluminium |
| Surface étage | 757 pi² | Type de cuisine | Coin repas + Forme en U |
| Surface garage | 404 pi² | Garage | 1 |
| Mur garage | 8 pi | Mur rez-de-chaussée | 8 pi |
| Mur étage | 8 pi | Inclinaison toit avant/arrière | 12/12 |
| Inclinaison toit gauche/droite | 12/12 |
| Style d'architecture | Canadienne |
|---|---|
|
Coût de construction
Montant approximatif équivalent à celui d'un entrepreneur général (région de la Rive-Sud de Montréal) pour une construction clé en main sans terrain ni infrastructures.
|
371535 $ |
| Façade | 60 pi |
| Surface habitable totale | 1751 pi² |
| Profondeur | 26 pi |
| Nombre de salles de bain | 2 |
| Hauteur | 27 pi 9 po |
| Nombre de chambres | 3 |
| Chambre des maîtres | Baignoire + Lavabo simple + Penderie + Toilettes |
| Chambre des maîtres - commentaires | Toilette seule |
| Surface rez-de-chaussée | 994 pi² |
| Finition extérieure | Aluminium |
| Surface étage | 757 pi² |
| Type de cuisine | Coin repas + Forme en U |
| Surface garage | 404 pi² |
| Garage | 1 |
| Mur garage | 8 pi |
| Mur rez-de-chaussée | 8 pi |
| Mur étage | 8 pi |
| Inclinaison toit avant/arrière | 12/12 |
| Inclinaison toit gauche/droite | 12/12 |