20551
20551
20551
20551

Jeux de plans - Sets of plans
Prix régulier$1,134.00
/

Ce site est protégé par hCaptcha, et la Politique de confidentialité et les Conditions de service de hCaptcha s’appliquent.

Description

"2 entrées sur la façade Solarium Salon avec foyer Grande penderie dans la chambre principale Salle de lavage au rez-de-chaussée"

Caractéristiques

Mesures : Impérial

Style d'architecture Canadienne Coût de construction 
Montant approximatif équivalent à celui d'un entrepreneur général (région de la Rive-Sud de Montréal) pour une construction clé en main sans terrain ni infrastructures.
371535 $
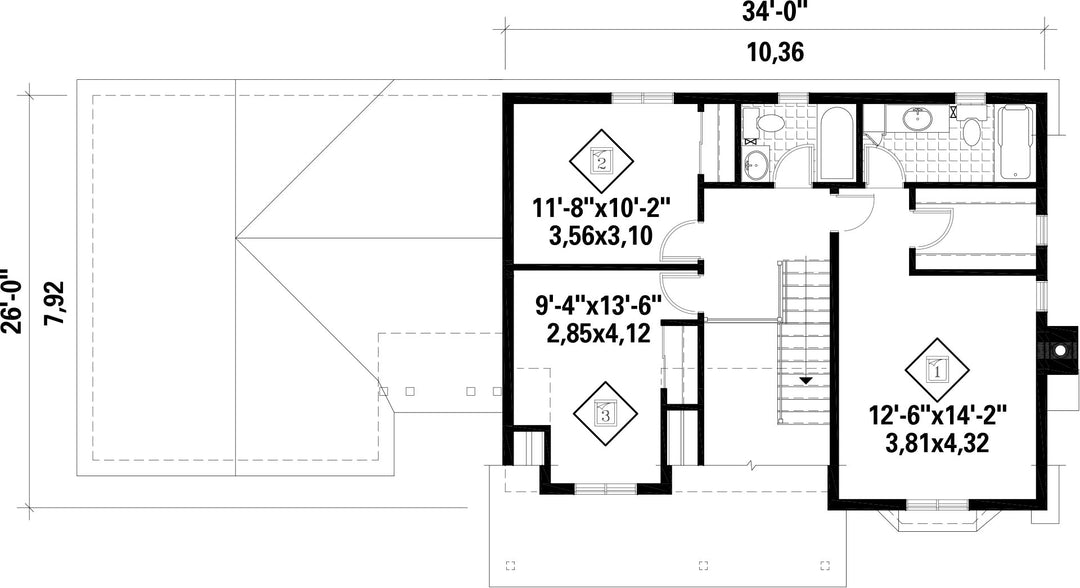
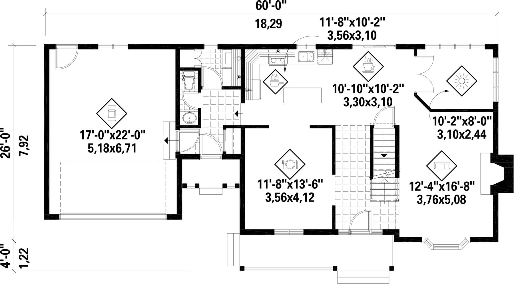
Façade 60 pi Surface habitable totale 1751 pi²
Profondeur 26 piNombre de salles de bain 2
Hauteur 27 pi 9 poNombre de chambres 3
Chambre des maîtres Baignoire + Penderie + Toilettes Chambre des maîtres - commentaires ---
Surface rez-de-chaussée 994 pi² Finition extérieure Aluminium
Surface étage 757 pi² Type de cuisine Coin repas + Forme en L + Salle à manger + Îlot
Surface garage 404 pi² Garage 1
Mur garage 8 piMur rez-de-chaussée 8 pi
Mur étage 8 piInclinaison toit avant/arrière 12/12
Inclinaison toit gauche/droite 12/12
Style d'architecture Canadienne
Coût de construction 
Montant approximatif équivalent à celui d'un entrepreneur général (région de la Rive-Sud de Montréal) pour une construction clé en main sans terrain ni infrastructures.
371535 $
Façade 60 pi
Surface habitable totale 1751 pi²
Profondeur 26 pi
Nombre de salles de bain 2
Hauteur 27 pi 9 po
Nombre de chambres 3
Chambre des maîtres Baignoire + Penderie + Toilettes
Chambre des maîtres - commentaires ---
Surface rez-de-chaussée 994 pi²
Finition extérieure Aluminium
Surface étage 757 pi²
Type de cuisine Coin repas + Forme en L + Salle à manger + Îlot
Surface garage 404 pi²
Garage 1
Mur garage 8 pi
Mur rez-de-chaussée 8 pi
Mur étage 8 pi
Inclinaison toit avant/arrière 12/12
Inclinaison toit gauche/droite 12/12

Ces plans de maison pourraient également vous intéresser


Vu récemment