20440
20440
20440
20440
20440
20440

Jeux de plans - Sets of plans
Prix régulier$1,565.00
/

Ce site est protégé par hCaptcha, et la Politique de confidentialité et les Conditions de service de hCaptcha s’appliquent.

Description

"Salle de lecture au rez-de-chaussée Grand balcon couvert en façade 2 entrées sur la façade Foyer au salon Laveuse et sécheuse au rez-de-chaussée"

Caractéristiques

Mesures : Impérial

Style d'architecture Canadienne Coût de construction 
Montant approximatif équivalent à celui d'un entrepreneur général (région de la Rive-Sud de Montréal) pour une construction clé en main sans terrain ni infrastructures.
403307 $
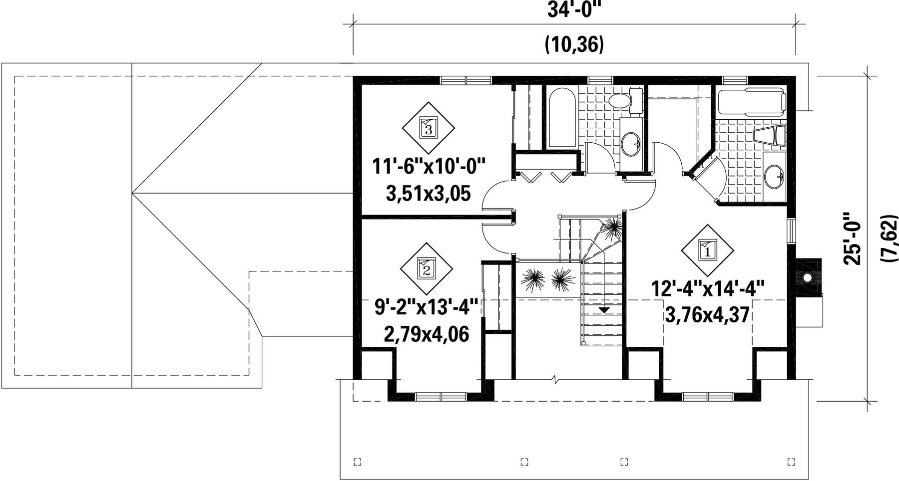
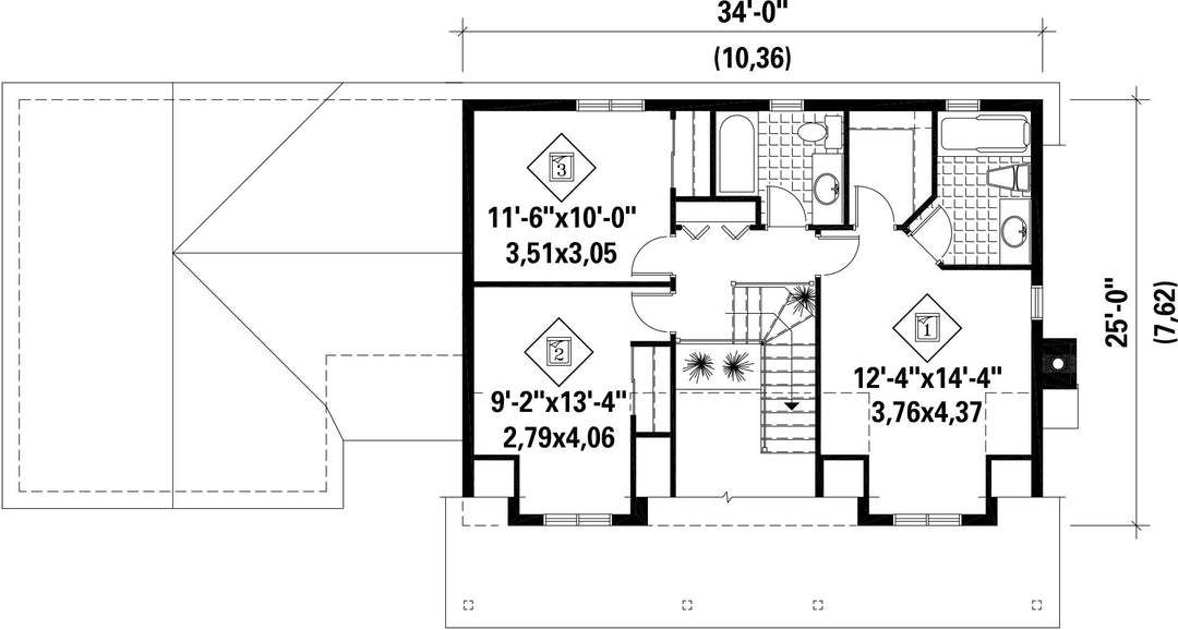
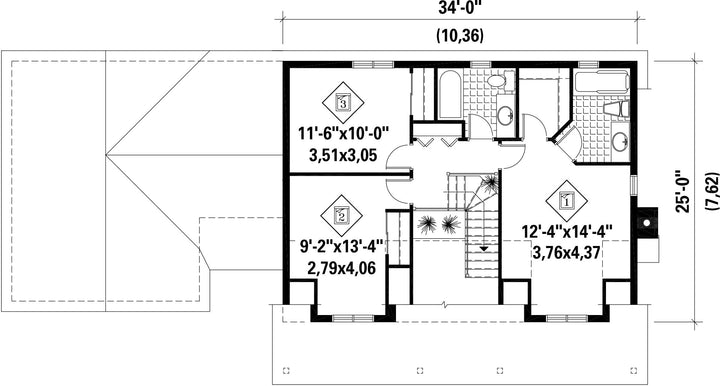
Façade 60 pi Surface habitable totale 1706 pi²
Profondeur 25 piNombre de salles de bain 2
Hauteur 26 pi 3 poNombre de chambres 3
Chambre des maîtres Bain podium + Lavabo simple + Penderie + Toilettes Chambre des maîtres - commentaires Plafond en pente dans la chambre
Surface rez-de-chaussée 983 pi² Finition extérieure Aluminium + Pierre
Surface étage 723 pi² Type de cuisine Coin repas + Comptoir repas + Forme en L + Salle à manger + Îlot
Surface garage 402 pi² Garage 1
Mur garage 8 piMur rez-de-chaussée 8 pi
Mur étage 8 piInclinaison toit avant/arrière 12/12
Inclinaison toit gauche/droite 12/12
Style d'architecture Canadienne
Coût de construction 
Montant approximatif équivalent à celui d'un entrepreneur général (région de la Rive-Sud de Montréal) pour une construction clé en main sans terrain ni infrastructures.
403307 $
Façade 60 pi
Surface habitable totale 1706 pi²
Profondeur 25 pi
Nombre de salles de bain 2
Hauteur 26 pi 3 po
Nombre de chambres 3
Chambre des maîtres Bain podium + Lavabo simple + Penderie + Toilettes
Chambre des maîtres - commentaires Plafond en pente dans la chambre
Surface rez-de-chaussée 983 pi²
Finition extérieure Aluminium + Pierre
Surface étage 723 pi²
Type de cuisine Coin repas + Comptoir repas + Forme en L + Salle à manger + Îlot
Surface garage 402 pi²
Garage 1
Mur garage 8 pi
Mur rez-de-chaussée 8 pi
Mur étage 8 pi
Inclinaison toit avant/arrière 12/12
Inclinaison toit gauche/droite 12/12

Ces plans de maison pourraient également vous intéresser


Vu récemment