Description
    
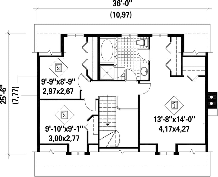
    	"Grandes pièces
Escalier ouvert"
     
    
  
Caractéristiques
Mesures : Impérial| Style d'architecture | Canadienne | 
                        
                            Coût de construction 
                             
                                
                                Montant approximatif équivalent à celui d'un entrepreneur général (région de la Rive-Sud de Montréal) pour une construction clé en main sans terrain ni infrastructures.
                             
                        
                        
                     | 
                    384825 $ | 
|---|---|---|---|
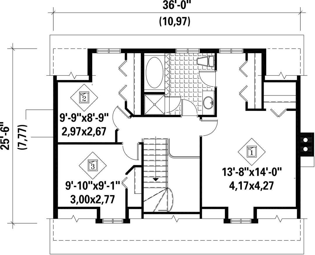
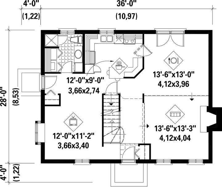
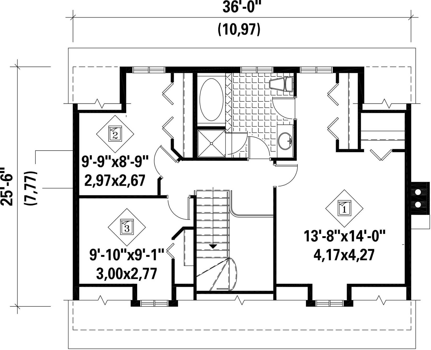
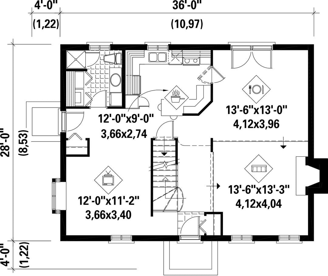
| Façade | 37 pi | Surface habitable totale | 1833 pi² | 
| Profondeur | 28 pi | Nombre de salles de bain | 2 | 
| Hauteur | 33 pi 4 po | Nombre de chambres | 3 | 
| Chambre des maîtres - commentaires | BEAUCOUP DE RANGEMENT, ACCÈS DIRECT À LA SALLE DE BAIN | ||
| Surface rez-de-chaussée | 1008 pi² | Finition extérieure | Pierre | 
| Surface étage | 825 pi² | Type de cuisine | Comptoir repas + Laboratoire + Salle à manger | 
| Garage | 0 | ||
| Mur rez-de-chaussée | 8 pi | ||
| Mur étage | 8 pi | Inclinaison toit avant/arrière | 12/12+4/12 | 
| Style d'architecture | Canadienne | 
|---|---|
| 
                        
                            Coût de construction 
                             
                                
                                Montant approximatif équivalent à celui d'un entrepreneur général (région de la Rive-Sud de Montréal) pour une construction clé en main sans terrain ni infrastructures.
                             
                        
                        
                     | 
                    384825 $ | 
| Façade | 37 pi | 
| Surface habitable totale | 1833 pi² | 
| Profondeur | 28 pi | 
| Nombre de salles de bain | 2 | 
| Hauteur | 33 pi 4 po | 
| Nombre de chambres | 3 | 
| Chambre des maîtres - commentaires | BEAUCOUP DE RANGEMENT, ACCÈS DIRECT À LA SALLE DE BAIN | 
| Surface rez-de-chaussée | 1008 pi² | 
| Finition extérieure | Pierre | 
| Surface étage | 825 pi² | 
| Type de cuisine | Comptoir repas + Laboratoire + Salle à manger | 
| Garage | 0 | 
| Mur rez-de-chaussée | 8 pi | 
| Mur étage | 8 pi | 
| Inclinaison toit avant/arrière | 12/12+4/12 |