Description
Avec son revêtement d’aluminium, de pierres et de bois, cette maison intergénérationnelle s’intègre discrètement dans les zones résidentielles et permet à un couple de cohabiter avec ses parents vieillissants. Composée de deux logements indépendants, cette demeure mesure 36 pieds de largeur sur 38 pieds de profondeur, et offre une superficie totale de 2 051 pieds carrés.
Chaque unité possède sa propre entrée, une à l’avant de la maison, et l’autre, sur le côté. De plus, les deux unités sont reliées à l’intérieur par une porte communicante. Le rez-de-chaussée occupe une surface totale de 1 328 pieds carrés. Le logement principal à aire ouverte a des plafonds de 9 pieds de hauteur et dispose d’une salle d’eau avec espace pour la laveuse et la sécheuse, d’un salon, d’une salle à manger et d’une cuisine avec un grand îlot doté d’un évier. Plus petit, l’autre logement compte une chambre à l’arrière avec une grande penderie, une salle de bains complète, un placard pour la laveuse et la sécheuse, ainsi qu’un salon, une salle à manger et une cuisine avec un îlot pouvant asseoir trois personnes.
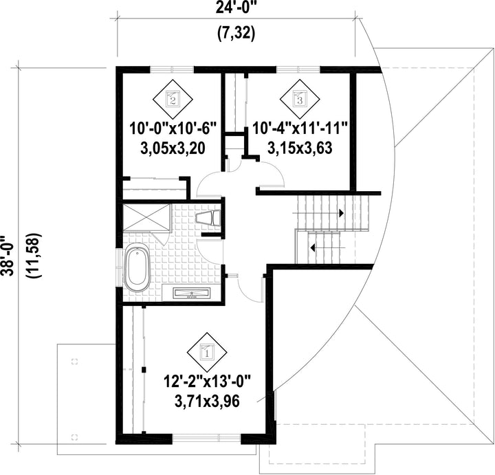
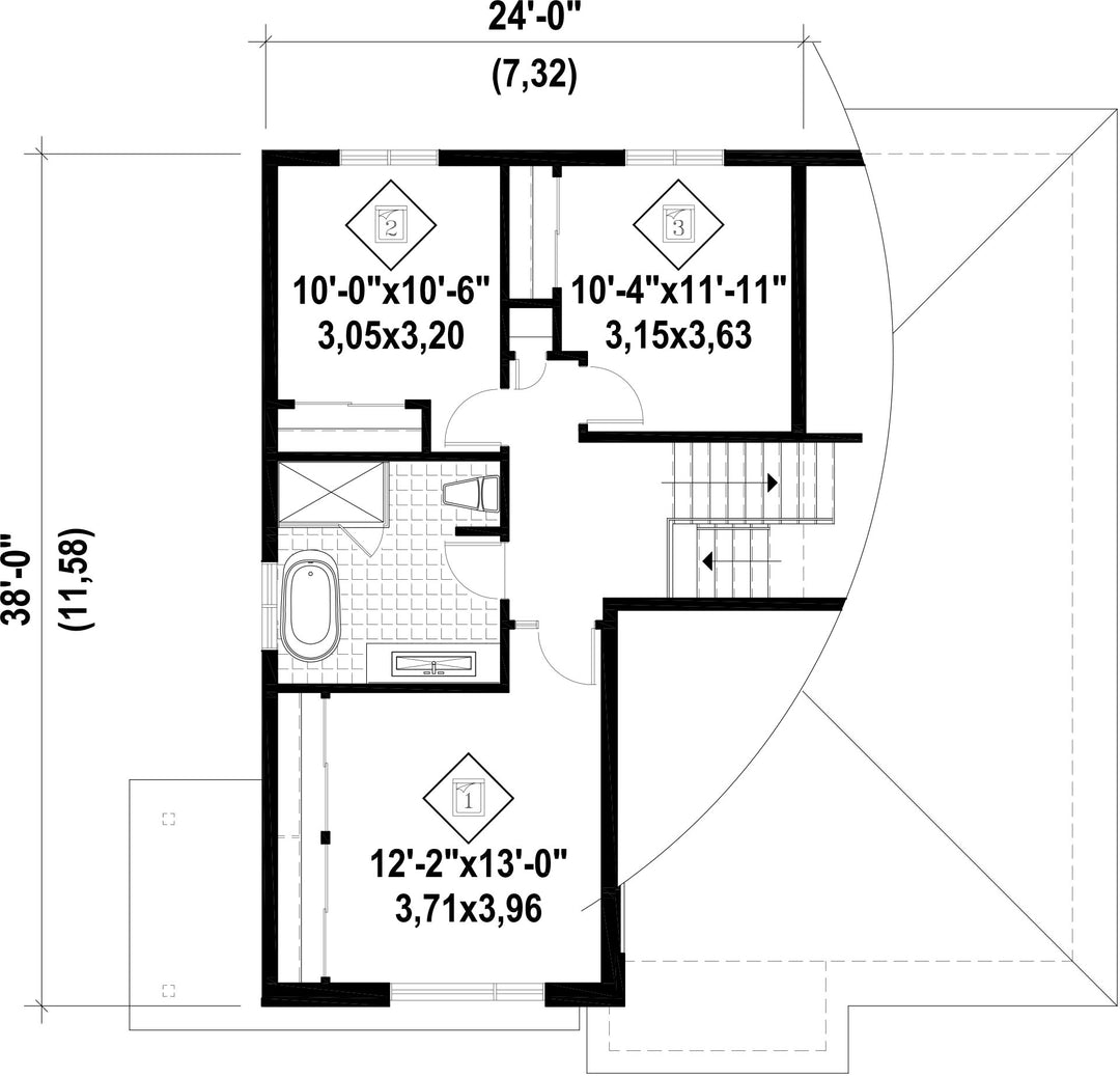
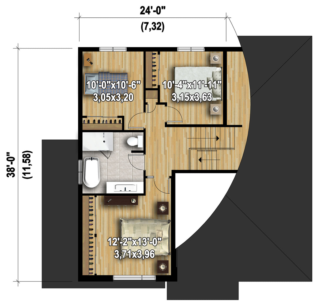
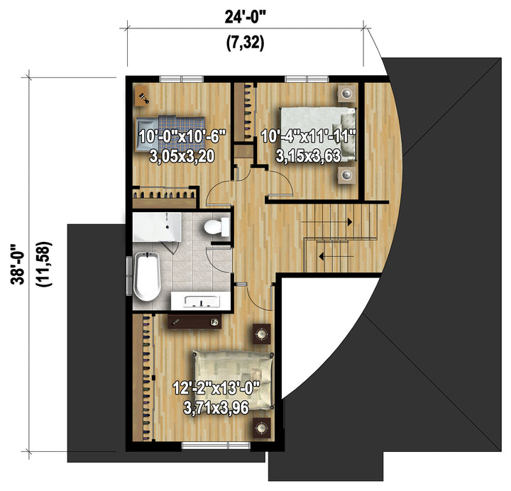
Le logement principal dispose d’un étage de 723 pieds carrés qui comprend une salle de bains avec une baignoire autoportante et une douche séparée, ainsi que trois chambres, dont une chambre principale avec un placard mur à mur.
Chaque unité possède sa propre entrée, une à l’avant de la maison, et l’autre, sur le côté. De plus, les deux unités sont reliées à l’intérieur par une porte communicante. Le rez-de-chaussée occupe une surface totale de 1 328 pieds carrés. Le logement principal à aire ouverte a des plafonds de 9 pieds de hauteur et dispose d’une salle d’eau avec espace pour la laveuse et la sécheuse, d’un salon, d’une salle à manger et d’une cuisine avec un grand îlot doté d’un évier. Plus petit, l’autre logement compte une chambre à l’arrière avec une grande penderie, une salle de bains complète, un placard pour la laveuse et la sécheuse, ainsi qu’un salon, une salle à manger et une cuisine avec un îlot pouvant asseoir trois personnes.
Le logement principal dispose d’un étage de 723 pieds carrés qui comprend une salle de bains avec une baignoire autoportante et une douche séparée, ainsi que trois chambres, dont une chambre principale avec un placard mur à mur.
Caractéristiques
Mesures : Impérial| Style d'architecture | Urbain |
Coût de construction
Montant approximatif équivalent à celui d'un entrepreneur général (région de la Rive-Sud de Montréal) pour une construction clé en main sans terrain ni infrastructures.
|
472941 $ |
|---|---|---|---|
| Façade | 36 pi | Surface habitable totale | 2051 pi² |
| Profondeur | 38 pi | Nombre de salles de bain | 2 |
| Hauteur | 26 pi 8 po | Nombre de chambres | 4 |
| Chambre des maîtres - commentaires | logement principal : garde-robe mur-à-mur logement : walk-in | ||
| Surface rez-de-chaussée | 1328 pi² | Finition extérieure | Aluminium + Bois + Pierre |
| Surface étage | 723 pi² | Type de cuisine | Laboratoire + Îlot |
| Garage | 0 | ||
| Mur rez-de-chaussée | 9 pi | ||
| Mur étage | 8 pi | Inclinaison toit avant/arrière | 6/12 |
| Inclinaison toit gauche/droite | 6/12 |
| Style d'architecture | Urbain |
|---|---|
|
Coût de construction
Montant approximatif équivalent à celui d'un entrepreneur général (région de la Rive-Sud de Montréal) pour une construction clé en main sans terrain ni infrastructures.
|
472941 $ |
| Façade | 36 pi |
| Surface habitable totale | 2051 pi² |
| Profondeur | 38 pi |
| Nombre de salles de bain | 2 |
| Hauteur | 26 pi 8 po |
| Nombre de chambres | 4 |
| Chambre des maîtres - commentaires | logement principal : garde-robe mur-à-mur logement : walk-in |
| Surface rez-de-chaussée | 1328 pi² |
| Finition extérieure | Aluminium + Bois + Pierre |
| Surface étage | 723 pi² |
| Type de cuisine | Laboratoire + Îlot |
| Garage | 0 |
| Mur rez-de-chaussée | 9 pi |
| Mur étage | 8 pi |
| Inclinaison toit avant/arrière | 6/12 |
| Inclinaison toit gauche/droite | 6/12 |