Description
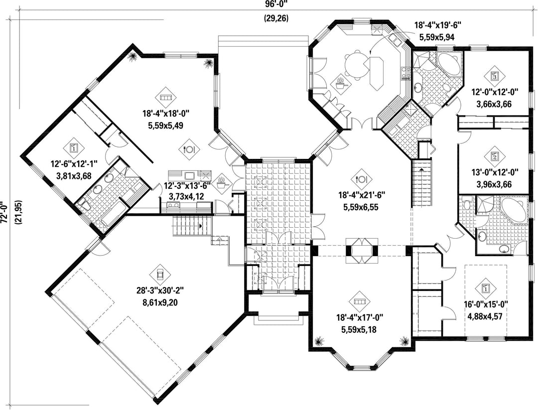
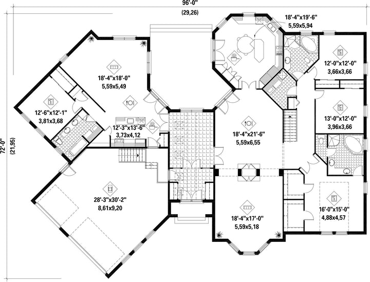
Cette prestigieuse demeure bigénérationnelle mesure 96 pieds de largeur sur 72 pieds de profondeur. L’élégante maison de plain pied offre une surface habitable de 3 701 pieds carrés en plus d’un garage de 864 pieds carrés pouvant accommoder trois voitures et disposant d’un escalier menant au sous-sol.
La maison comprend un vaste atrium commun avec d’immenses fenêtres et un plafond cathédrale doté de plusieurs puits de lumière.
Un des logements comprend un salon et une salle à manger à aire ouverte avec un foyer à deux faces situé au milieu de la pièce, une grande cuisine avec un îlot et un comptoir repas, une salle de lavage, une salle de bains, ainsi que trois chambres, dont une chambre principale dotée de deux penderies et d’une grande salle de bains privée.
L’autre logement dispose d’une grande pièce à aire ouverte où se trouvent un salon, une salle à manger et une cuisine, et comprend également une chambre et une salle de bains.
La maison comprend un vaste atrium commun avec d’immenses fenêtres et un plafond cathédrale doté de plusieurs puits de lumière.
Un des logements comprend un salon et une salle à manger à aire ouverte avec un foyer à deux faces situé au milieu de la pièce, une grande cuisine avec un îlot et un comptoir repas, une salle de lavage, une salle de bains, ainsi que trois chambres, dont une chambre principale dotée de deux penderies et d’une grande salle de bains privée.
L’autre logement dispose d’une grande pièce à aire ouverte où se trouvent un salon, une salle à manger et une cuisine, et comprend également une chambre et une salle de bains.
Caractéristiques
Mesures : Impérial| Style d'architecture | Européen |
Coût de construction
Montant approximatif équivalent à celui d'un entrepreneur général (région de la Rive-Sud de Montréal) pour une construction clé en main sans terrain ni infrastructures.
|
1074184 $ |
|---|---|---|---|
| Façade | 96 pi | Surface habitable totale | 3701 pi² |
| Profondeur | 72 pi | Nombre de salles de bain | 3 |
| Hauteur | 36 pi 6 po | Nombre de chambres | 4 |
| Chambre des maîtres | Bain podium + Douche + Lavabo double + Penderie + Portes doubles + Toilettes | Chambre des maîtres - commentaires | Toilette fermée |
| Surface rez-de-chaussée | 3701 pi² | Finition extérieure | Pierre |
| Type de cuisine | Comptoir repas + Laboratoire + Îlot | ||
| Surface garage | 864 pi² | Garage | 3 et plus |
| Mur garage | 8 pi | Mur rez-de-chaussée | 8 pi |
| Inclinaison toit avant/arrière | 8/12 | ||
| Inclinaison toit gauche/droite | 18/12 |
| Style d'architecture | Européen |
|---|---|
|
Coût de construction
Montant approximatif équivalent à celui d'un entrepreneur général (région de la Rive-Sud de Montréal) pour une construction clé en main sans terrain ni infrastructures.
|
1074184 $ |
| Façade | 96 pi |
| Surface habitable totale | 3701 pi² |
| Profondeur | 72 pi |
| Nombre de salles de bain | 3 |
| Hauteur | 36 pi 6 po |
| Nombre de chambres | 4 |
| Chambre des maîtres | Bain podium + Douche + Lavabo double + Penderie + Portes doubles + Toilettes |
| Chambre des maîtres - commentaires | Toilette fermée |
| Surface rez-de-chaussée | 3701 pi² |
| Finition extérieure | Pierre |
| Type de cuisine | Comptoir repas + Laboratoire + Îlot |
| Surface garage | 864 pi² |
| Garage | 3 et plus |
| Mur garage | 8 pi |
| Mur rez-de-chaussée | 8 pi |
| Inclinaison toit avant/arrière | 8/12 |
| Inclinaison toit gauche/droite | 18/12 |