Description
Avec son revêtement d’aluminium horizontal et de pierres à l’avant ainsi que son magnifique porche avec colonnes décoratives qui surplombe l'entrée, cette maison à étage se veut à la fois moderne et élégante. Elle mesure 42 pieds 10 pouces de largeur sur 48 pieds 5 pouces de profondeur, offre une surface habitable de 2 536 pieds carrés et possède un garage double de 446 pieds carrés.
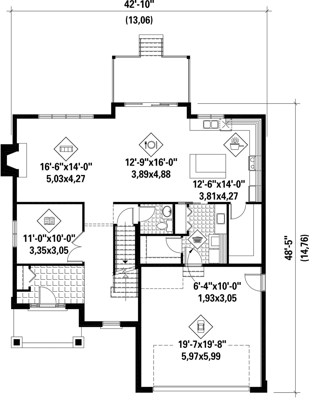
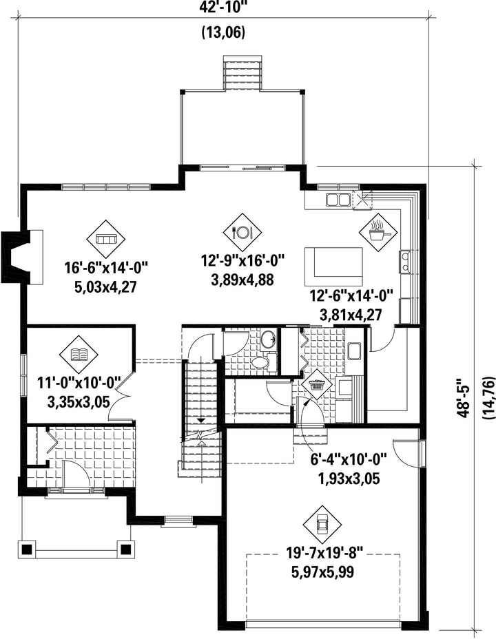
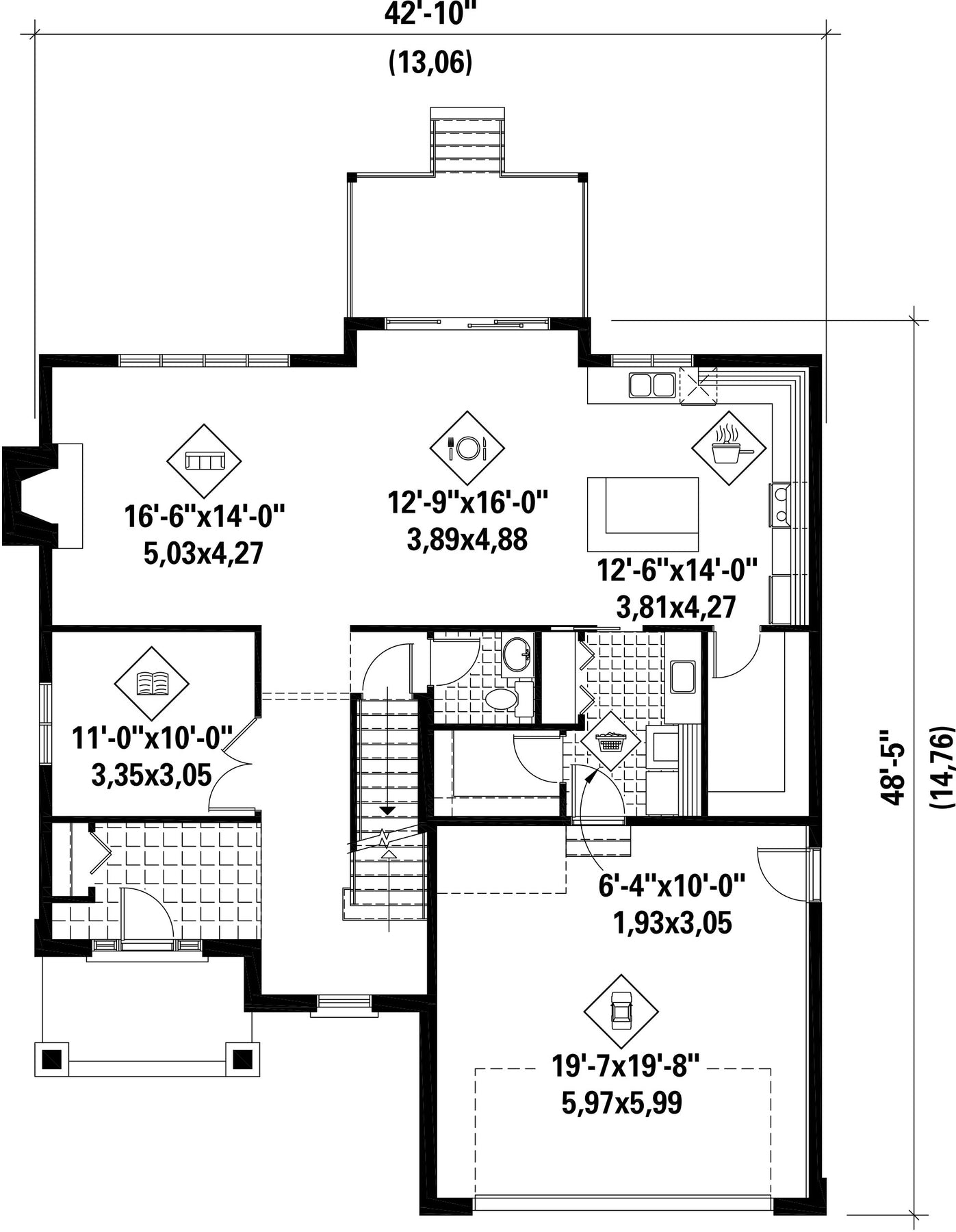
Le rez-de-chaussée, dont les plafonds sont à neuf pieds de hauteur, fait 1 274 pieds carrés et comporte un grand vestibule, une salle de lecture, une salle d’eau, une salle de lavage avec penderie, ainsi qu’une vaste aire ouverte comprenant un salon avec foyer, une salle à manger et une grande cuisine avec îlot et un garde-manger spacieux.
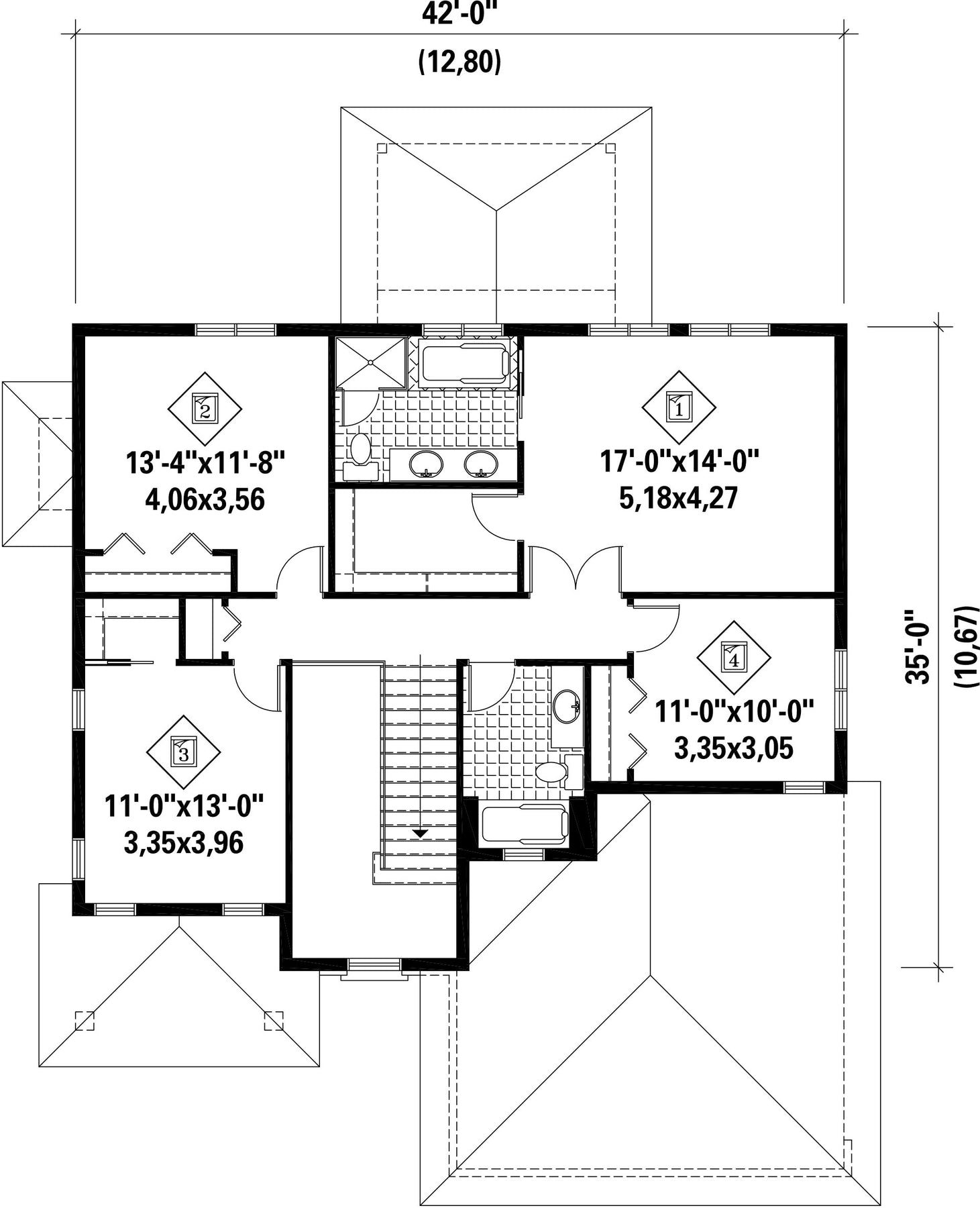
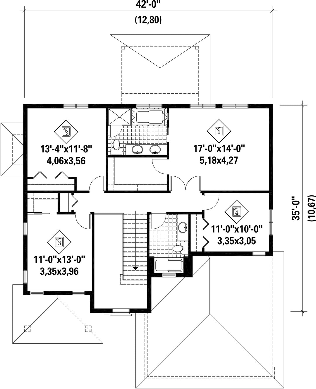
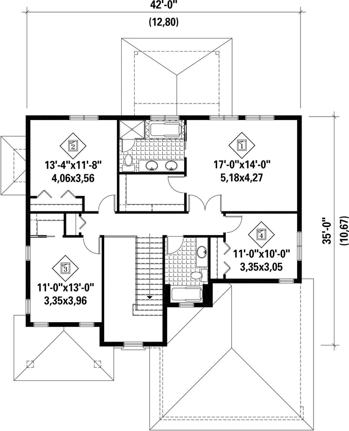
L'étage est réparti sur 1 262 pieds carrés et compte une grande chambre principale avec salle de bains privée et penderie, trois chambres secondaires, ainsi qu'une salle de bains familiale.
Le rez-de-chaussée, dont les plafonds sont à neuf pieds de hauteur, fait 1 274 pieds carrés et comporte un grand vestibule, une salle de lecture, une salle d’eau, une salle de lavage avec penderie, ainsi qu’une vaste aire ouverte comprenant un salon avec foyer, une salle à manger et une grande cuisine avec îlot et un garde-manger spacieux.
L'étage est réparti sur 1 262 pieds carrés et compte une grande chambre principale avec salle de bains privée et penderie, trois chambres secondaires, ainsi qu'une salle de bains familiale.
Caractéristiques
Mesures : Impérial| Style d'architecture | Artisanal |
Coût de construction
Montant approximatif équivalent à celui d'un entrepreneur général (région de la Rive-Sud de Montréal) pour une construction clé en main sans terrain ni infrastructures.
|
511304 $ |
|---|---|---|---|
| Façade | 42 pi 10 po | Surface habitable totale | 2536 pi² |
| Profondeur | 48 pi 5 po | Nombre de salles de bain | 2 |
| Hauteur | 28 pi 9 po | Nombre de chambres | 4 |
| Chambre des maîtres | Baignoire + Douche + Lavabo double + Penderie + Portes doubles + Toilettes | Chambre des maîtres - commentaires | Grande chambre des maîtres |
| Surface rez-de-chaussée | 1274 pi² | Finition extérieure | Aluminium + Pierre |
| Surface étage | 1262 pi² | Type de cuisine | Comptoir repas + Forme en L + Salle à manger + Îlot |
| Surface garage | 446 pi² | Garage | 2 |
| Mur garage | 8 pi | Mur rez-de-chaussée | 9 pi |
| Mur étage | 8 pi | Inclinaison toit avant/arrière | 6/12 |
| Inclinaison toit gauche/droite | 6/12 |
| Style d'architecture | Artisanal |
|---|---|
|
Coût de construction
Montant approximatif équivalent à celui d'un entrepreneur général (région de la Rive-Sud de Montréal) pour une construction clé en main sans terrain ni infrastructures.
|
511304 $ |
| Façade | 42 pi 10 po |
| Surface habitable totale | 2536 pi² |
| Profondeur | 48 pi 5 po |
| Nombre de salles de bain | 2 |
| Hauteur | 28 pi 9 po |
| Nombre de chambres | 4 |
| Chambre des maîtres | Baignoire + Douche + Lavabo double + Penderie + Portes doubles + Toilettes |
| Chambre des maîtres - commentaires | Grande chambre des maîtres |
| Surface rez-de-chaussée | 1274 pi² |
| Finition extérieure | Aluminium + Pierre |
| Surface étage | 1262 pi² |
| Type de cuisine | Comptoir repas + Forme en L + Salle à manger + Îlot |
| Surface garage | 446 pi² |
| Garage | 2 |
| Mur garage | 8 pi |
| Mur rez-de-chaussée | 9 pi |
| Mur étage | 8 pi |
| Inclinaison toit avant/arrière | 6/12 |
| Inclinaison toit gauche/droite | 6/12 |