Description
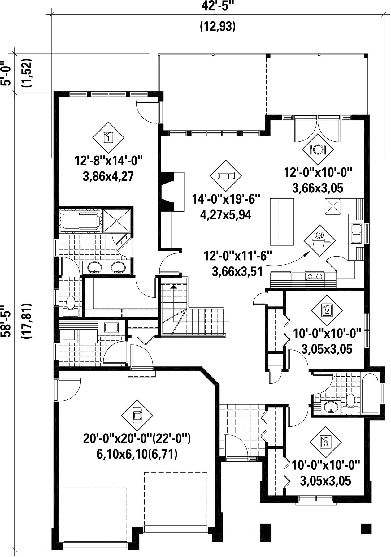
La façade avant un tant soit peu discrète de cette jolie maison de plain pied avec revêtement et colonnes en pierres peut être trompeuse. En effet, la façade arrière contraste avec cette simplicité — l'immense terrasse et la fenestration abondante confèrent à cette maison une allure des plus originales. Cette résidence mesure 42 pieds 5 pouces de largeur sur 58 pieds 5 pouces de profondeur, possède une surface habitable de 1 629 pieds carrés et un garage double de 455 pieds carrés.
De plus, la demeure, dont les plafonds font 9 pieds de hauteur, comprend trois chambres dont une chambre principale avec penderie, salle de bains privée et un accès au balcon arrière, ainsi qu’une salle de lavage, un salon avec foyer et une salle à manger à aire ouverte avec accès à la terrasse, une cuisine fonctionnelle avec îlot, et une salle de bains familiale.
De plus, la demeure, dont les plafonds font 9 pieds de hauteur, comprend trois chambres dont une chambre principale avec penderie, salle de bains privée et un accès au balcon arrière, ainsi qu’une salle de lavage, un salon avec foyer et une salle à manger à aire ouverte avec accès à la terrasse, une cuisine fonctionnelle avec îlot, et une salle de bains familiale.
Caractéristiques
Mesures : Impérial| Style d'architecture | Artisanal |
Coût de construction
Montant approximatif équivalent à celui d'un entrepreneur général (région de la Rive-Sud de Montréal) pour une construction clé en main sans terrain ni infrastructures.
|
500887 $ |
|---|---|---|---|
| Façade | 42 pi 5 po | Surface habitable totale | 1629 pi² |
| Profondeur | 58 pi 5 po | Nombre de salles de bain | 2 |
| Hauteur | 25 pi 7 po | Nombre de chambres | 3 |
| Chambre des maîtres | Baignoire + Douche + Lavabo double + Penderie + Toilettes | Chambre des maîtres - commentaires | Grande chambre des maîtres avec accès au balcon arrière |
| Surface rez-de-chaussée | 1629 pi² | Finition extérieure | Aluminium + Bardeau de cèdre + Pierre |
| Type de cuisine | Comptoir repas + Îlot | ||
| Surface garage | 455 pi² | Garage | 2 |
| Mur garage | 8 pi | Mur rez-de-chaussée | 9 pi |
| Inclinaison toit avant/arrière | 8/12 | ||
| Inclinaison toit gauche/droite | 8/12 |
| Style d'architecture | Artisanal |
|---|---|
|
Coût de construction
Montant approximatif équivalent à celui d'un entrepreneur général (région de la Rive-Sud de Montréal) pour une construction clé en main sans terrain ni infrastructures.
|
500887 $ |
| Façade | 42 pi 5 po |
| Surface habitable totale | 1629 pi² |
| Profondeur | 58 pi 5 po |
| Nombre de salles de bain | 2 |
| Hauteur | 25 pi 7 po |
| Nombre de chambres | 3 |
| Chambre des maîtres | Baignoire + Douche + Lavabo double + Penderie + Toilettes |
| Chambre des maîtres - commentaires | Grande chambre des maîtres avec accès au balcon arrière |
| Surface rez-de-chaussée | 1629 pi² |
| Finition extérieure | Aluminium + Bardeau de cèdre + Pierre |
| Type de cuisine | Comptoir repas + Îlot |
| Surface garage | 455 pi² |
| Garage | 2 |
| Mur garage | 8 pi |
| Mur rez-de-chaussée | 9 pi |
| Inclinaison toit avant/arrière | 8/12 |
| Inclinaison toit gauche/droite | 8/12 |